查看完整案例


收藏

下载
苏州蒋家班佛像展览
本次展览位于苏州寒山美术馆内,我们受佛像艺术家蒋晟之托,为他主题为“极乐”的展览设计展览空间。
This exhibition is located in the Hanshan Art Museum in Suzhou. We are asked by the Buddha artist Jiang Sheng to design the exhibition space for his exhibition entitled “Inflorescence”.
本次展览的主要展区为一个长宽约为 35m*7m 的长方形空间,原本空间大量运用了弧面处理,吊顶中间开了一个狭长的缺口,可以看到内部裸露的建筑结构。这就是我们对现场的初步印象。
The main exhibition area of this exhibition was a rectangular space with a length and width of about 35m*7m. The original space had a lot of curved surface, and a narrow gap was opened in the middle of the ceiling, and the exposed building structure inside could be seen. This was our first impression of the site.
在整个空间里还加入了一个新的嗅觉感官体验,即是满铺在地面上的武夷山黄叶,这些黄叶经过烘焙,香味在整个空间中弥漫开来。深色的黄叶在地面上形成一种像泥土一样的枯萎形态,与最初佛像上的鲜花形成鲜明的对比,象征从生命到死亡的一个命定的轮回。而白色窗帘直接落在黄叶上,形成了一种室内与室外一般的模糊界限。
A new olfactory sensory experience is also added to the whole space, that is, the tea leaves of Wuyi Mountain covering the ground, which after baked whose fragrant throughout the space. Dark tea leaves form a withered form onthe ground like soil, in sharp contrast to the original fresh flowers surrounding on the Buddha statue, symbolizing a fatal cycle from life to death. The white curtains fall directly on the tea leaves, forming a ambiguous boundary between indoor and outdoor.
考虑到佛像作为展品的特殊性,空间需要一种神圣感,而我们同时也希望空间给人的整体感受是宁静的,平和的,内敛的,正如蒋晟的作品一样。所以与佛像相比,整个空间的感受是弱化的,也就是说,最终人的视觉焦点时刻都是给佛像的,而不是给空间的。
Considering the particularity of Buddha statues as exhibits, we thought the space needs a sense of sacredness, and we also hoped the overall feeling of space be quiet, peaceful and restrained, just like Jiang Sheng’s art piece. Therefore, compared with the Buddha statue, the feeling of the whole space should be weakened, which means, the final human visual focus should be always given to the Buddha statue, not to the space.
所有的佛像展品围绕这个走道散落在明亮的外部空间里,人们在走道内侧通过墙面上的窗口或门洞去欣赏外部的佛像作品。这些洞口呼应了苏州园林的框景手法,人们在洞口前驻足观看时,佛像与洞口形成了一副副画面,尤其是走道尽端高大的白色释迦牟尼佛像在远看时被细长的门洞裁切,只能看到局部,只有走近时才得以看出全貌。
All the Buddha statue exhibits are scattered around this corridor in the bright outer space. People appreciate the external Buddha statue works through the windows or doors on the wall from inside the corridor. These caves echo the frame-view technique of traditional Suzhou gardens. When people stop to watch them, the Buddha statues and the caves form one and another pictures. Especially when the tall and white Sakyamuni Buddha statues at the end of the corridor are cut by the long and slender door when look from a distance, only part of the statues can be seen, and only when people getting closer they can see all of the Buddha.
于是我们想到在展厅中间加入一个黑暗的、狭长的体量,作为观展的主要流线空间,嵌入吊顶的开口中间。长长的、黑暗的走道其实是剥夺人感官的一个空间,人的视觉被锁定在走道尽端的两尊佛像上,在这种情况下,人们的精神也可以相对集中。这个只有 1.4 米宽的走道刚好能容纳两个人并肩而行,在走道中,走道内侧的墙壁上是深蓝色的涂料,在内部没有灯光照明的情况下微微泛出蓝丝绒一样的质感。
So we thought of adding a dark, narrow volume in the middle of the exhibition hall as the main streamline space for the exhibition, embedded in the middle of the opening of the ceiling. The long, dark corridor is actually a space for depriving people of their senses. The human vision is locked at the two Buddha statues at the end of the corridor. And in this case, people’s spirit can also be relatively concentrated. This 1.4-meter-wide corridor is just enough for two people walking side by side. Inside the corridor, the wall are dark blue painted, and the blue velvet-like texture is slightly exposed without lighting inside.
在走道外部的空间里,我们加入了弧形的平台呼应场地本身的弧形空间,一些平台用白色半透的窗帘包裹,形成私密的佛像展示空间,另一些弧形平台则完全敞开。人们通过门洞走进私密的用帘子包裹的佛像空间时,可以感受到与佛像独处片刻的宁静,而走到开敞的平台上时,又可以从外部欣赏佛像与空间形成的视觉层次。
In the space outside the corridor, we added some curved platform echoing the curved space of the site itself. Some platforms are covered by white semi-transparent curtains to form a private Buddha display space, while others are completely open. When people walk through the door and into the private Buddha space, they can feel a moment of peace with the Buddha statue alone; and when they walk into the open platform, they can appreciate the visual level formed by the Buddha image and space from the outside.
花砖空间是展览空间中触觉设计的主要部分,通过将满铺的花砖抬高到人手可以触及的高度上,使人们可以近距离的观看和触摸花砖上的美妙纹理。这些纹理灵感来自于佛像飘逸的衣摆,与淡绿色的花砖结合在一起,就像水面泛起的涟漪,使人感到内心的平和与宁静。
The tiles space is the main part of the tactile design in the exhibition space. By raising the full tile plan to the height that human hand can reach, people can watch and touch the wonderful texture on the tiles at a close distance. These textures are inspired by the clothing on Buddha statue, and with the light green of tiles, is just like the ripples on the water, which makes people feel peace and quiet.
项目功能 | 展览
Function | Exhibition
设计时间 |
2018.10-2018.12Design period
施工时间 |
2019.01Construction period
地点 | 江苏 苏州
Location | Suzhou, Jiangsu, China
面积 | 约 260 平方米
Area | about 260 SQM
设计团队 |
肖磊、滋埜悠司、王晗、Alessandra Troisi、Eleonora Nucci、PedroManzano Ruiz
Architects | Xiao Lei, Shigeno Yuji, Wang Han, Alessandra Troisi, Eleonora Nucci, Pedro Manzano Ruiz
项目类型 | 室内
Type | Interior
项目状态 | 建成
Status | Completed
摄影师 | 加纳永一、万鹏
Photographer | Kano Eiichi, Wan Peng
广州未来之丘办公楼
万科未来之丘项目位于广州市番禺区,临近广州南站,设计开始于广深港高铁通车前的四个月。
它是园区内众多新建办公楼中的一栋五层高的样板楼,我们负责其中四个楼层的室内空间设计,即地下一层、地上一、四及五层。
The Vanke Cloud Valley Project is located in Panyu District, Guangzhou, close to the Guangzhou South Railway Station. The design began four months before the opening of the Guangzhou-Shenzhen-Hongkong high-speed railway. It is a five-story model building among the many new office buildings in the zone. We are responsible for the interior design of four floors, namely the basement floor and the first, fourth and fifth floors above ground.
设计伊始,业主提出设计“具有未来感的新型办公空间”的要求。“何为未来感”,在与业主的沟通协调时,我们的想法渐趋一致。“未来感”,并非是科技的新与酷,而是空间的设计——空间触感的营造,生态与自由的气息。
At the beginning of the design, the owner proposed to design a “new office space with a sense of the future.”. But what is the sense of the future? When we communicated with the owners on this topic, our ideas became more and more consistent. The "Sense of the future" is not the novelty and cool of technology, but the design of space - the creation of spatial touch, the atmosphere of ecology and freedom.
于是在空间设计上,尽量打破室内外空间的界限,内与外的空间景致相互流通。地下一层为洽谈展示空间,室外为下沉庭院。大面积玻璃的运用,将庭院景观引入室内。并将通向一层大堂的楼梯,设计成朝向庭院开敞的大楼梯,可停留、可休憩,可观赏与感受庭院的景致、光影的变化。
So in the space design, try to break the boundaries of indoor and outdoor spaces, and let the inner and outer space scenes communicate with each other. The basement floor is the space for discussion and the outdoors is a sunken courtyard. The use of large glass panels brings the courtyard landscape indoors. The staircase leading to the lobby is designed as a large staircase that opens to the courtyard, where you can stay, relax and enjoy the view of the courtyard and the changes in light and shadow.
地下一层与一层,主要为交流、展示空间,公共性较强,因此在墙面上大量使用阳极氧化铝板材质。表面模糊、抛光的阳极氧化铝材质,既可以营造出一种类似于镜面不锈钢材质的未来感,又没有那么冰冷,而是透着些许人性化的温润感。再加上木材的妆点,又增添了空间的温馨与自在。
Therefore, a large number of anodized aluminumplate is used on the wall surfaces. The blurred and polished anodized aluminummaterials on the surface can create a sense of the future similar to mirrorfinished stainless steel, however, it is not so cold as that, but a little humane warm feeling. In addition, the makeup of the wood provides the space with a warm and comfortable feeling.
而在四层和五层,则借鉴岭南建筑中的天井院落空间,设计一个贯通两层的屋顶采光中庭——天光从上流泻而下,洒在四层中庭的景观树上、满溢在空间中,使室内产生一种宛若室外庭院的错觉。
On the fourth and fifth floors, we designed a two-story roof lighting atrium going through the two stories with reference to the courtyard space from the Lingnan Architecture – the skylight flows down from the top, spreads over the landscape tree on the atrium of the fourth floor, and overflows in the space, creating an illusion that the interior is like an outdoor courtyard.
在室内装置的设计中,我们与专业的画廊合作,根据设计概念而定制。
在设计中,亦以生态、自然为主题,材料质感与室内空间材料相仿,烘托得室内空间设计整体、纯粹。
In the design of the indoor installations, we work with professional galleries and customize them based on the design concept. In the design, ecology and nature are again taken as the theme. The texture of the material is similar to that of the interior material, which makes the interior space overall and pure.
在材质的处理上,也主要选择偏向自然质感的木材和水磨石。四、五层的白色抹灰墙面和棕色木质的地板、窗框,与中庭的绿意,搭配得恰到好处,营造着舒适而惬意的办公氛围。
In terms of materials processing, wood and terrazzo with natural texture are selected. The white plastered walls and brown wooden floors and window frames on the fourth and fifth floors are perfectly matched with the greenery of the atrium, creating a comfortable and cozy office atmosphere. The basement floor and the first floor are mainly spaces for communication and display and have a strong public nature.
项目功能 | 办公、展示
Function | office, exhibition
设计时间 |
2018.4-2018.8Design time
施工时间 |
2018.8-2018.10Construction time | 2018.8-2018.10
项目地点 | 广东广州
Location | Guangzhou, Guangdong, China
项目面积 | 1100 平方米
Area | 1100m2
项目团队 | 肖磊、杨毓琼、刘莹莹
Team | XiaoLei, Yang Yuqiong, Liu Yingying
项目类型 | 室内
Type | Interior
项目状态 | 建成
Status | Completed
摄影师 | 加纳永一
Photographer | Eiichi Kano
TEAM_BLDG
广州未来之丘办公楼图纸呈现
区位图
-1F PLAN 负一层平面图
1F PLAN 一层平面图
4F PLAN 四层平面图
5F PLAN 五层平面图
一层夹层详图
剖面图
TEAM_BLDG
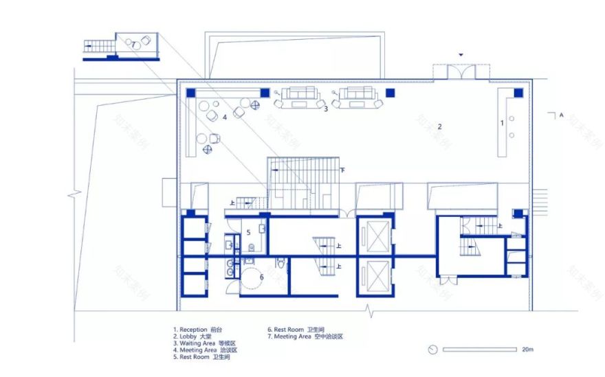
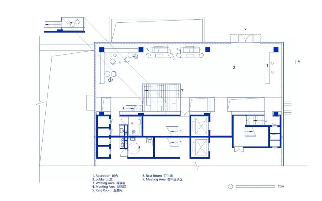
苏州蒋家班佛像展览
图纸呈现
平面图
TEAM_BLDG
公司介绍
间筑设计(TEAM_BLDG)成立于 2012 年,工作领域涉及建筑、空间、景观和产品设计。工作室的两位创立者认为,“BLDG”虽意为楼宇但更是一个动词,代表着“建造”的过程,设计概念的完成只是建筑师工作的起点,相对于表达设计理念与确立设计风格,他们更关注建筑和空间、室内和室外所营造的氛围以及带给人的感受。
TEAM_BLDG was founded in 2012, they work with architecture, interior, landscape and product. The two founders of the studio consider that the word “BLDG” is a verb than the meaning of architecture, which should be the processing of constructing, and the finished design is just a start of architects’ work. Relative to any concept or style, they are more focusing on the “atmosphere” of building and space, interior and exterior for people.
供稿 / 间筑设计
Gooobrand
品牌设计
客服
消息
收藏
下载
最近
































































