查看完整案例


收藏

下载
ArchUnits|一栋设计工作室近期完成了上海静安寺附近一处建筑更新,将一栋陈旧、拥挤的 90 年代旧式办公楼(静安商楼)转化成了开放、交流、共享的新型办公休闲社区(MORE 华山)。
Shanghai-based young architectural office ArchUnits has recently completed the exterior and interior renovation of an office building near Shanghai Jing’an Temple. The original building, built in the 1990s and packed with crowded small office rooms, has been transformed into a new type of office community of openness, communication and sharing - MORE Huashan.
建筑位于前法租界区域的边界地带。建筑本身虽然并非历史建筑,但它被葱郁的香樟树和绵延的花园里弄住宅环绕,周围平和而沉静。因为历史风貌区附近严格的改造限制,因此从设计策略上我们选择不改变原有建筑高度、建筑轮廓和主体结构。面向华山路的一大片混凝土实墙是原建筑的至高点,并且被视为此建筑的辨识标志。它被保留了下来,并且成为了设计的起点。
The building is located in the former concession area of Shanghai. It is not a historical building itself, but it is surrounded by a wild profusion of camphor trees and traditional lane houses. Due to strict renovation restrictions near the historical area, the original height, building outline and main structure is kept untouched strategically. A large tall concrete wall facing Huashan Road is the highest point of the original building, and was regarded as the symbol of this building. The tall wall is retained, and it becomes the starting point of the design.
由这面墙展开,借鉴几何拓扑的一些技术,ArchUnits 以关键部位的一些曲面变形重构了外墙面的形态关系。以局部带动整体,缓和了原来生硬的建筑边界,从而“柔化”整栋大楼的视觉观感。这使得建筑面向周边历史街区的气场更加柔和。
Starting from the tall wall, ArchUnits has re-formed the morphological relationship of the facade with some curved surface in key locations, so as to mitigate the original rigid building boundary, and soften the visual perception of the whole building. This makes the building have a softer presence in the surrounding historical district.
立面的虚实层次也进一步丰富:既有高墙为实;半实半虚的竖向格栅提供西晒遮阳,从而获得更均匀的办公光线环境;两者之间,我们留出了透明的缝隙,这一缝隙对应着室内的中庭,将室外的阳光和树影带入室内。丰富的透气层次感削弱了建筑的体积感,从而也减轻对周围老房子的压迫感。
The layer of transparency of the facade is further enriched: the tall wall is solid. The vertical lamella acts as west sunshades to provide a more even light environment for the office area. A curved transparent “gap” is created between the wall and the lamella, corresponding to the interior atrium, which brings the sunlight and tree shadows indoors. The permeability of facade make the building less volumetric, thereby alleviating the pressure on its neighbour lane houses.
在室内,ArchUnits 则大刀阔斧地使用减法。克制的材质使用和简洁的边界突出了贯穿四层的中庭的空间感。这一中庭空间也如实映射了外部立面,制造了密切的内外关联性。这使得整栋建筑有了一个面积虽小但名副其实的空间中心,人员、阳光、空气、人员、交流都围绕此密切展开。
For interior renovation, ArchUnits mainly did subtractions. The restrained use of materials and the concise atrium enclosure accentuate the spatial quality of the four-storey atrium. This atrium space is also a reflection of external facade, creating an intimate internal and external correlation. It is the small but veritable centre of the space, where people, sunlight, air, and communication closely interact with each other.
中庭作为空间中心,需要一个焦点。我们选择让楼梯扮演此角色,成为一个独特的空间装置。重新设计的楼梯逐层盘旋舞动,创造一个独属的中庭形象,吸引更多的人使用中庭,激励交流的密度,起到了画龙点睛的作用。
As a spatial center, a focal point is needed for the atrium. The staircase is offered to play such a role as a unique spatial installation. The new dancing staircase hovers from floor to floor, creating an exclusive atrium image, attracting more people to use the atrium, and increasing the density of communication.
业主 | 致灏投资
Client | Hao Capital
建筑师 | 一栋设计工作室
Architect | ArchUnits
设计团队 | 张朔炯,倪晨昊,刘林,郑思宇
Design Team | Shuojiong Zhang, Chenhao Ni, Lin Liu, SiyuZheng
结构和机电 | 上海爱建建筑设计院
Structure&MEP | Shanghai AJ Architect & EngineerLtd.
照明 | 张晨露
Lighting | Chenlu Zhang
摄影 | 苏圣亮
Photographer | Shengliang Su
地址 | 上海市静安区华山路
Location | Huashan Road, Jing’an District, Shanghai, China
面积 |2800 m2Area |2800 sqm
完工时间 |
2019.01CompletionTime | 2019.01ARCHUNITS
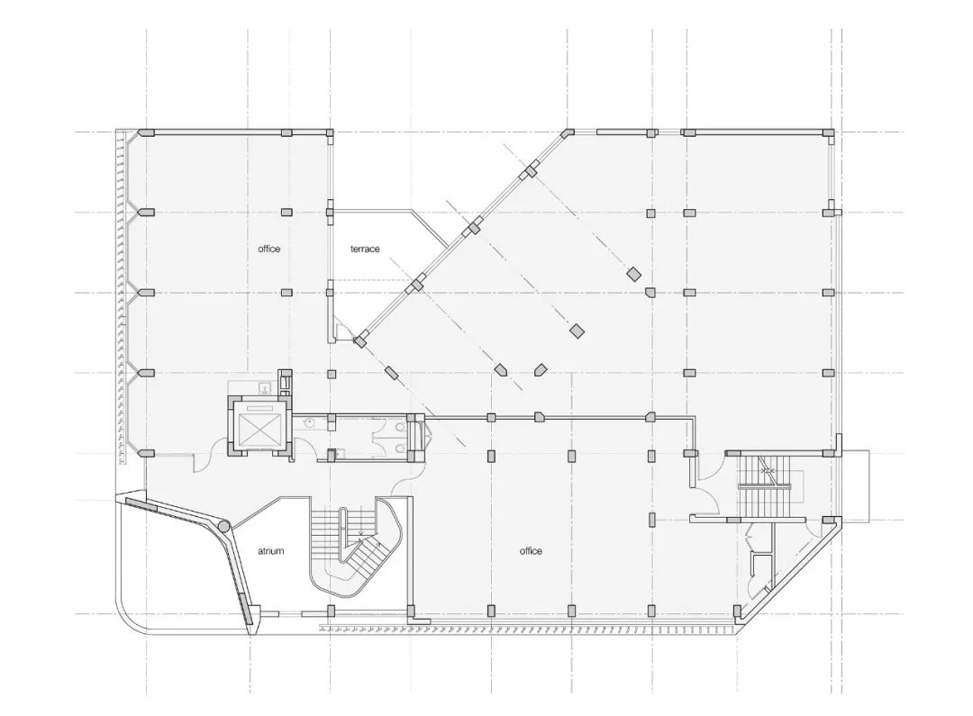
静安商楼建筑图纸呈现
外立面图纸
原立面图
新立面图
原平面图
新平面图
ARCHUNITS
静安商楼建筑
公司介绍
ArchUnits|一栋设计工作室是一家年轻的新锐建筑设计工作室。工作室如其名,将实践项目视作一个个研究小组,积极探索数字化设计与传统文化在建筑、空间、产品等设计领域的介入和融合。工作室由张朔炯在 2016 年创立。在此之前,他先后在 Zaha Hadid Architects 和 UNStudio 工作。同时他也是上海交通大学建筑系客座教师。
ArchUnits is an emerging young architectural office based in Shanghai. As its name suggests, ArchUnits regards practice as various research units, to explore the involvement and integration of digital design and traditional culture in architecture, interior, and product design. The studio was founded by Shuojiong Zhang in 2016. Before this, he worked in Zaha Hadid Architects and UNStudio. Currently he is also a visiting teacher at the Department of Architecture at Shanghai Jiao Tong University.
供稿/一栋设计工作室
Gooobrand
品牌设计
客服
消息
收藏
下载
最近


























