查看完整案例


收藏

下载
重新出发的家
The Home for a Brand New Start
这是一个单亲家庭的家,这也是一种社会课题。
空间-- 换取-- 时间
Exchange Space for Time
设计不为创造瞬间的艺术,而是用克制释放无穷的空间潜力。
Weutilizerestrictiontoreleasethespatialpossibilityratherthancreatinginstantart.
我们身处一个繁华的城市,每天忙碌工作。回到家,坐在窗边的位置,不想离开。这个房子,一天当中时时刻刻都在变化。我想好好利用这点,把每个房间的窗户做成大落地玻璃,客厅有全开放推拉门窗,傍晚时分令人惊喜的一幕上演,夕阳的金色光线充满每个空间。
当我们考虑用什么墙漆的时候,试图在夕阳的颜色中提取灵感,烟灰调子沉淀、宁静简单优雅的材料,房子夕阳城市更加协调相融。如果不想出门,可以在家待一整天。这个房子很有趣,每个区域都有许多复合功能。
美丽的落日后,天空开始变暗,城市灯光开始闪烁,夜间的归属感,让人变得越来越依赖这个房子。—— 梁穗明
Site photos 工地过程
这是一个单亲家庭的家
这也是一种社会课题
SINGLE PARENT FAMILY
社会有很多不同阶层,有困难的人需要帮忙,但微笑的人并不代表没有困难。
孩子出生后,每一位妈妈都面临一个艰巨的抉择——左手家庭,右手事业。无论选择哪一边,都会遭遇相当大的挑战和争议,要付出极大的努力和代价。
一封职场妈妈和全职妈妈互给对方的信(—摘录自水木社区 家庭生活版 文/佚名)亲爱的全职妈妈
我佩服你不求回报的工作方式——没有晋升,没有名气,没有工资。我知道你想要你的孩子感到被重视和被爱,而全职妈妈,没有人比你做得更好。我只是想让你知道我理解你,我们都是母亲,我懂。
亲爱的职场妈妈
你在为你的孩子们树立一个了不起的榜样。你在向他们展现着一个女人可以有自己的事业,在家以外的地方用一些方式做着贡献,并且仍旧是一个充满爱的母亲。你展示着力量,忍耐力,奉献,坚韧,并且带着全然的欢乐和爱去做事。我只是想让你知道我理解你,我们都是母亲,我懂。
现代社会对女性、女性对自身的要求都越来越高。
本次改造的委托人是职业女性,并承担着独立照顾孩子的责任
时间和空间对于这个家庭,成为提升生活效率的必然因素。
项目位于深圳龙华区 住着一对单亲家庭母女。东西通透的户型,三室两厅两卫,面积足有 120㎡,入户区是开发商附赠的 20㎡入户花园,且带有 6 米多的挑高空间的商品房。
房型本身条件不错,使用却没有得到合理规划。
1)委托人房子的原有效空间使用率低,根据原来的生活方式,房子有效利用率仅 55%;2)原来设计风格杂乱;3)女儿没有成长空间;4)委托人作为职场女性,需要兼顾家庭和事业,兴趣爱好也需要空间来发展。
希望这个项目,通过委托人母女生活特点,进行针对性改造,治愈人的心灵。
设计师手稿
改造前平面图
前期分析
Preliminary Analysis
改造前的平面分布:粉色区域母亲房间女儿房间,每天使用 8 小时;
卡其色区域餐厅、厨房、卫生间,每天使用 1-2 小时;
灰色区域入户花园、客厅、每天使用低于 1 小时;
黑色区域客房,全年基本空置!
这样的数据对这个家显然是非常不合理的,委托人房屋的面积足够,但实际的格局和使用尺度却存在很大的问题。每天使用 8 小时的空间仅仅 30%,每天使用不足 1 小时空间也占据 30%,客厅与餐厅的空间过大,常年空置的客房,占据房子 10%。
这样一个家,对于职场女性连自己的生活爱好,女儿的成长空间都不能满足,生活品质大大影响,更谈不上兼顾全方位。
空间-- 换取-- 时间
Exchange Space for Time
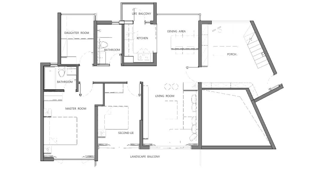
改造后的平面分布,每个区域都有复合功能,粉色区域每天使用 8 小时占据全屋 50%,分别为母亲和女儿卧室、书房、瑜伽。
卡其色区母亲和女儿日常空间和兴趣复合,分别为空中花园、中西厨房、植物种植墙、兼备客房和闺蜜聚会功能的空中床吧、卫生间。
重新梳理功能的分布:把母亲和女儿生活空间延展,设计两人喜好兴趣空间,去取空置空间用复核方式解决客房需求,提高空间的使用率。
足够生活空间延展,用空间换取生活时间,提高生活品,兼顾全方位生活需求。
改造后平面图
入户花园,是一个巨大的空间,亦是空中花园、植物种植墙、闺蜜床吧、花园餐厅。还是一个可以做米其林星级餐的厨房,早上起床,可以尽情的享受早餐。
The indoor garden is a large space. It plays various roles including a hanging garden, a plant wall, a guestroom and a garden dining room. In addition, it is a kitchen, in which Michelin-starred dishes can be cooked. Get up early and enjoy breakfast to your heart’s content.
中空花园
一个疯狂的空中花园,入户花园 5500mm 层高,考虑做成双层还是保留中空这是我们前期设计中关注的重点。设计是一个环环相扣的逻辑过程,中空的位置可以做成两层,这是最简单不过的。二层的空间也只有一张床的尺度。简单来说,笔一下去一个客房的设计就出来。
但这样对这个家会出现两个问题
1) 一个小阁楼被搁置掉只有偶尔客人来的时候才会使用
2️) 遮挡住光线,使整个入户空间显得压抑暗淡
我们希望给这个家一个港湾的小空间,因为弧形的延伸这个夹层也变得非常有趣,还能作为闺蜜聚会、做瑜伽的秘密花园。
如果两层空间都做空调一层的层高会更矮。楼板可以往上升高,一层的层高可以解决?这样楼梯的踏步就会增多而且承重梁刚好在 2300 的位置,所以这是环环相扣的问题。
最终经过层层问题剖析,得出我们的最后呈现的设计。
一个是经常被搁置的阁楼,一个是同时兼备卧室和休闲功能的床吧,两者的使用率谁会更高?
关于空中床吧鸡蛋造型问题,汽车以前是方形的现代是流线型的。改变一种既定轴承的思维生活变得更美好。如果你家有个这样的空间你的小孩更愿意在这里阅读?还是在一个直板书桌上阅读?如果你的闺蜜来做客,你更愿意带她到客厅?还是在一个空中花园聊天?
入户花园
入户花园蛋型装置内部
一个可以做米其林星级餐的厨房
客厅、主卧的复合,客厅还有瑜伽房功能。与主卧可开可合的移门连通,形成一个公寓套间。
Combination of Living Room and Master Bedroom
The living room can also be used as a yoga room.
A sliding door connects the living room and master bedroom.
Like this, an apartment suite forms.
客厅和主卧的设计
主卧和客厅的套间设计
房间数量不等于生活质量。在大数据时代,出现很多以房间数量占据市场优势的商品房,比如 90 平--100 多平三房小三房甚至四房。
大部分的家庭从户与户之间的门分隔后,到家中,又是墙与墙分隔。房间数量越多,则墙体越多
在三代同堂的家庭,满足刚需要求,但在只有 2 人居住的时候,房间数量和房间墙体慢慢的成为家庭一部分功能和活动的枷锁。家中无人却独困墙中墙,对房间数量做减法,提高空间的功能复合等于提高空间使用率和最终提高生活品质。
孩子在家里的隐私非常重要,幸运的是,我们有一个房间足够私密,可以做成孩子的成长的秘密花园。
The child’s privacy at home is very important.Luckily, we have a room which is private enough. It can be made into a secret garden for the child’s growth.
秘密花园的女儿房间
卫生间地暖设计
卫生间是一天放松下来的洗礼空间,。这里有宽敞双人洗手台、化妆间、宽敞淋浴间,除了优雅的设计,还卫生间地暖形成干湿分区
为什么卫生间做地暖,不是全屋。深圳这个城市不需要做全屋地暖,因为气候的原因。为什么卫生间坚持做?
我曾经因为手断住骨科医院,旁边床的都是一些在家摔倒的老人,主治医生告诉我南方到了回南天(广州话,就是发霉和潮湿季节)家里即使再防滑的砖都很难解决卫生间潮湿和带水的问题。
在南方,回南天的时候,即使是高层,一整天墙身和地面都是湿淋淋的。
有一次住国外民宿,卫生间做了一小块地暖,当洗完澡,脚踩上去暖哄哄的,每块地方都很干爽。我是一个脚寒的女性,洗完澡踩在冰冷的地砖上,脚凉甚至睡不着觉,这温暖的设计感受非常强烈。不仅仅是我,我的丈夫和我的女儿也非常喜欢这一小小的温暖。
那刻我在想这才是真正解决卫生间干湿问题,以后的卫生间如果都这样设计,可能老人和小孩滑倒的概率更小。女性大部分有脚寒,洗澡后踩在冰冷地砖上,温度骤降,会引起身体的问题。所以如果设计在细节的改变,生活会更美好!
—— 梁穗明
每一寸不起眼的角落
都酝酿着巨大的生活能量
Every humble corners is brewing huge life energy
设计的价值在于能成为社会进步的工具,为个人与社会的福祉而努力。不仅是设计上漂亮,更让大众能更美好生活。增一分太多且减一分太少,完全无法加以更动改变的境界。—— 路易斯·康
作品名称 | 重新出发的家
所属类别 | 住宅
设计单位 | PONE 普利策设计
施工单位 | 广州普兑森建筑装饰工程有限公司
特别参与 | 何思玮
主笔设计 | 梁穗明
设计团队 | 邓江蜜 梁颖 华月柳 江键韵 林晓亮 刘亚平
助理设计 | 梁嘉欣 符振星 陈展鹏
项目摄影 | 陈铭 张华祥
项目视频 | 李童
案例面积 | 123
重新出发的家
设计师介绍
梁穗明 / 创始人&首席设计师
尊重本原、多元、多样;扎根文脉凝练,融合与进化。设计关注挖掘人与空间的交互潜力。
从本能需求,到感知体验进行系列研究实践;使功能、体验延伸出更丰满,又回归最本质的状态。从而开展一场关于创造与再创造的思考。
PONE 作品曾获得德国红点奖 Best of the Best、德国 iF 年度最佳设计奖、意大利 A’DesignAward 全球最高荣誉铂金奖、香港 APIDA 金奖、美国 BEST OF YEAR Winner、美国 American Architecture Award 金奖、加拿大 AZ 全球唯一最佳室内设计奖、加拿大 GRANDS DU DESIGN 特别奖等过百项国际荣誉。
供 稿 /PONE 普利策设计
Gooobrand
品牌设计
客服
消息
收藏
下载
最近




















































