查看完整案例

收藏

下载
我相信有情感的建筑
I believe that emotional architecture
“建筑”的生命就是它的美
"Construction" of life is that the beauty
这对人类很重要
This is important for humans
给使用者传达美和情感的就是建筑
What conveys beauty and emoton to users is architecture
——路易斯。巴拉干
Luis Barragan
客厅 / Living room
“东方、简约、均衡,建筑与艺术五大元素是 LWD 梵池设计的核心设计理念。”LWD 梵池设计运用简约之笔勾勒东方美学艺术,基于现代生活理念,并以东方文化元素的思维来平衡传统与现代的辩证关系。
The LWD Fanchi Interior Architectural Design Corporation’s core idea is the East, Simple, Balanced with Architectural and Artistic. LWD Fanchi is based on the concept of modern life that has used minimalist concept to depicting Oriental Aesthetic Art, and balanced the tradition and modernity’s dialectical relations from the thinking of oriental cultural element.
餐厅 / Dining room
在开放式空间设计中,客厅、餐厅既保持互通相连,又体现出每个空间的独立性。灵活运用木色,给予空间温暖的触感,秩序谨然又不失温度。
The design of open-plan space, the living room and dining room should stay connected, and exhibit the independent space. LWD Fanchi could flexibly use wooden paneling to warm feeling in the space that well-ordered and warmth.
娱乐室 / Lounge
现代画搭配清水混泥土扩大了空间层次感,创意的采光设计与冷暖色调结合使空间和谐立体,凸显简约与现代,使空间变得自然灵动。
It enlarged with the modern painting and raw exposed concrete on the level of sense of space. The space appear to be simple and modern that harmonious stereoperception and smart nature, it's combined with creative daylighting design and cool and warm tones.
主卧/Bedroom
绵密柔软的地毯和淡雅温润的灯光在不打破现代感的基础上和谐镶嵌在简约之中,为空间的现代感赋予柔和静谧的色彩。绿植点缀其间,凸显自然和谐的现代之美。
It will be combined the soft carpet and the elegant light that is based on the simple style with gentle multi-coloured without to break the modern. The green plants make space to have modern beauty of natural harmony.
书房 / Study room
巨大的落地窗让人的视觉维度无限延伸,移门将书房与卧室巧妙隔开,化繁为简的设计体现出开放空间的现代感与层次感。
The large French windows make people to infinite extension of visual dimension.The sliding door between the bedroom and study room.According to the simple design,the open space have more modern and layering.
儿童房 / Children room
儿童房以灰白为主色调,搭配动感的地毯,风格简约而不失趣味。室内门帘将睡眠区与活动区简易分隔,使空间格局井然有序。
Children room uses greyish white to dominant hue with dynamic carpet which have simple style included to interest.
The door curtain separate the sleeping area and active region,it makes dimensional pattern orderly.
阁楼 / Attic
阁楼依据黄金分割比完美分割,塑造深层次空间立体感,蚕丝艺术吊灯加以点缀,配合良好的采光,将现代与古典完美结合,狭小的空间蕴含着舒适简约的生活理念。
According to use the Golden Section to split the attic perfectly and create to deep space and third dimension.
The Silk art chandelier with the best daylighting will be combined with modern and classical.
The narrow space is including with life notion about soft and simple.
楼梯/Stairs
吊灯自顶楼垂至底层,光线衔接在阶梯之间,现代感深入浅出地融于艺术之中。
钢化玻璃嵌入实木踏板之中,光线穿透楼梯,房间明亮柔和。
The chandelier hung from the top floor and the light connects the steps that the combination of modernity and art. The tempered glass inlaid the solid wood pedal, when the light penetrate the stairs, the room will be bright and soft.
"见微而知著",设计师不断平衡宏观的格局与微观的细节,将现代风格与东方之美、将细微的感情与绝佳的设计完美结合,创造出简约而有温度,现代而不失生动地作品。
"See bigthings through small ones."The designers are balanced the macroscopic pattern and details constantly.They have used the modern style and Eastern beauty,subtle emotions and excellent design into the production that creative the easy and warm with modern and lively.
项目名称 | 中国南京仙林私人住宅
Project name | Private residence in Xianlin, Nanjing, China
项目区位 | 中国南京
Project location | Nanjing.China
项目面积 | 500
Project area |500
设计公司 | LWD 梵池设计
Design company | LWD Fanchi Interior Architectural Design Corporation
主创设计师 | 吕林林
Chief designer | Lv Linlin
设计周期 |
2018.4-2018.5Design cycle竣工2019.3 Be completed | 2019.3
摄影师 | 程得得
Photographer | Cheng Dede
LWD DESIGN
Private residence in Xianlin
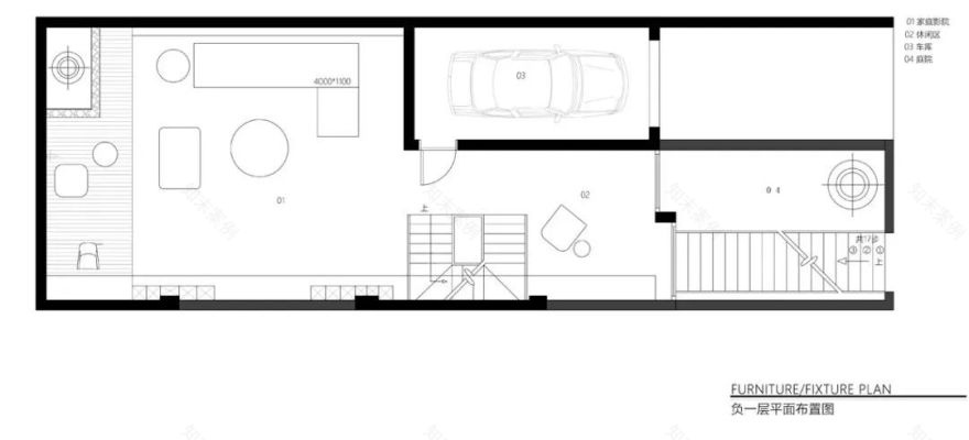
图纸呈现
LWD DESIGN
Private residence in Xianlin
公司介绍
LWD 梵池设计专注于为国内外高端客户提供建筑空间设计的优质服务,致力于成为国内最具活力与专注的设计团队之一,孜孜研发独有的空间设计服务体系,并打造具有行业标杆的软装设计与高级定制服务,在全球范围内搭建顶级供应体系。力求设计从“人与空间,自然与环境”的视角出发,通过空气、光影、音律、温度等艺术提取,为空间环境关系重新定义,以前瞻性的视角将生活形态和艺术意识定制于美学空间。
LWD Fanchi design focused on building space design for high-end customers at home and abroad with quality services, is committed to be one of the most dynamic and focus the design team in China, working on research and development the unique space design service system, and makes the industry benchmarking the soft outfit design and advanced customization services, build top supply system on a global scale. From the perspective of "man and space, nature and environment", the design strives to redefine the relationship between space and environment through the artistic extraction of air, light, sound and temperature, and customize the life form and art consciousness into the aesthetic space from a prospective perspective.
Gooobrand
品牌设计
供稿 / LWD 梵池设计
客服
消息
收藏
下载
最近








































