查看完整案例


收藏

下载
从以往到现在,圣安德鲁斯海滩别墅展示了建筑的持久潜力及其对气候和自然沙丘多样性的反应能力。
圣安德鲁斯海滩别墅经过 20 年的增建和大型扩建、各种调整,加上饱经风霜的铜绿,已融入自然中。
结合调整后的景观,成为一个整体的大环境背景。别墅既是起伏的景观的主要框架、又自然成为起伏景观的一部分,根据快速变化的天气模式,通过执行各种阴影序列来即兴并调整其个性。其主要思想是对自然环境的联系和回应,即自然与建筑之间的对话与交流。
圣安德鲁斯海滩别墅是一个令人信服的案例,说明随着时间的推移,项目进展缓慢,超出了最初构想的意图。在第一期建设中,住宅被分割成两个主要部分(居住和睡眠),有一个 3 米的分叉入口,用于横流通风,并在到达时向游客展示其广阔的位置。入口门廊通向一个 24 米的大甲板,沿甲板全长向下台阶。雄伟的规模,它适当地降落在柔软的沙滩上的房子。通透的主西南面的金属和玻璃立面,在三十米高的奇异之处吸收沙丘景观,使室内的每个点都可以感受到压倒性的自然体验。
别墅其余的电枢则是装在一个 Jarrah 雨幕上,雨幕上有旋转和铰链,可以让北极光渗透到室内。
二期撤退到北面防风区,增设了一块甲板延伸到主入口槽,包括一个游泳池,小屋和远处的温室。
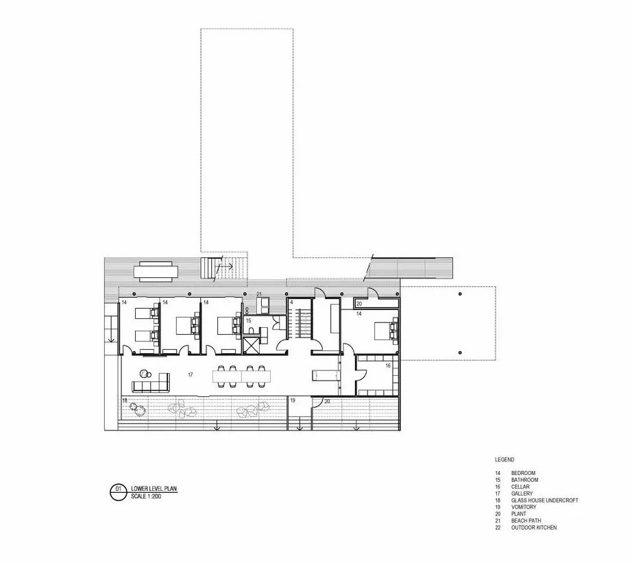
渐进式设计的高潮是占据了地下空间,在那里,第三个小气候被创造在几乎被淹没的空间。宁静,完全被保护,这是一个完美的休憩之所,有四个额外的卧室,一个连接画廊和一个内部的温室占据了楼梯下空间。在玻璃围墙内,Jarrah 台阶支撑着周围的沙子和在挖掘过程中发现的软石灰岩巨石。Jarrah 铁路轨枕既用作裸露的固定物,又用作楼梯拱腹和天花板衬里,这是由金属包裹的卧室的衬托,每个卧室都带有较低的北部庭院。
具有讽刺意味的是,在最后阶段,建筑材料的不断恶化反而激发了室内材料的选择和细节。许多生锈的内衬变成了墙面和复杂的细木工构件。稀有的饱经风霜的木材在内部被重新利用。每一个细节都被不断地借用和重新诠释——从内部未经处理的木材衬里的斜边到超大尺寸的 45 度折叠的钢板楼梯栏杆扶手,这些扶手反过来又成为折叠的图书馆桌子和柴火仓库。
这三期建设使项目达到平衡,让居住在这里的人体验到南方狂暴的天气,幸福的北方日光和保护性的地下掩体。
WOOD BAGOT
St Andrews Beach Villa
图纸呈现
区位图
解析图
一层平面图
二层平面图
WOOD BAGOT
St Andrews Beach Villa
公司介绍
Woods Bagot
是一家人性化的建筑公司。把人性化设计放在首位,以交付吸引人的、面向未来的项目,响应人们实际使用空间的方式。
Woods Bagot is a People Architecture company. We place human experience at the centre of our design process in order to deliver engaging, future-oriented projects that respond to the way people actually use space.
拥有超过 850 名专家组成的团队,在澳大利亚、亚洲、欧洲、中东和北美开设 15 个工作室。
We do this as a global design and consulting studio with a team of over 850 experts working across 15 studios in Australia, Asia, Europe, the Middle East and North America.
全球工作室模式允许我们跨越时区和边界,使用最新的智能技术来共享设计,并加强我们在世界各地的知识储备。
Our Global Studio model allows us to work collaboratively across time zones and borders, using the latest technology to share design intelligence and strengthen our knowledge base around the world.
Gooobrand
品牌设计
客服
消息
收藏
下载
最近


































