查看完整案例


收藏

下载
写 在 前 面
电影《The Weather Man》里有句台词说:
Easy doesn’t enter into grow-up life.
年少的时候我们害怕孤独。呼朋唤友,寻觅伴侣,建立家庭,有了孩子。但是年岁渐长,成年人的疲惫,往往来自不断叠加的身份。
从外面纷繁的世界回归家庭,在这个家人共享的空间中,我们依旧努力去想象:是否有一个场所,可以完全卸下“妻子”“妈妈”“女儿”“职场强人”...的标签,还原内心的宁静与自我。
这是一个顶楼复式,设计摒弃了所有纯装饰的线条和色彩,从功能角度出发,直白的柜子、楼梯、阁楼,它们呈现了一个简单又原始的空间体验。白色、木色、灰色和黑色的组合,静谧又质朴。
通过对坡顶的精确计算,对楼梯踏步以及阁楼上下不同空间所需层高的精准控制,我们在层高非常有限的坡顶,为女屋主加出了一层,作为她独享的衣帽间,同时一侧留出了木质平台,是提供给女主人的独处空间。
户 型 改 造
▲1F 改造前后的户型图
▲2F 改造前后的户型图
▲增加的阁楼户型图
原户型有几处痛点:▪餐厨空间非常拥挤。对热爱烹饪的女主人来说,厨房太小且空间过于闭塞,大大小小几十个锅子没有地方放。冰箱挤到了餐厅。
常常会在家里处理工作。没有一个相对舒服的地方自己呆着。
女屋主的包包和衣物非常多,储物空间严重不足。
针对这几个问题:我们首先把厨房与客餐厅之间的非承重墙拆除,作为开放的中厨;餐厅与相邻的阳光房合并,成为西厨和客餐厅一体的 LDK 空间。
客厅与阳台之间设置了吧台,闲暇时光可以晒着太阳喝茶看书。
女主卧床尾增设整排顶天立地衣帽柜、梳妆台。同时利用顶楼的坡屋顶空间,加出了一层约 16 平方的衣帽间。
改造前客餐厅
▲改造前厨卫
餐 厅
餐厅与阳光房合并之后,有了很好的采光和通透性,成为中厨与客厅之间的枢纽。
岛台和很大的餐桌——女主人享受烹饪乐趣,同时也是一家人看电视、享受美食的地方,是这个家中最重要的共享活动区域。
改造后的户型,从北侧的厨房,到南侧的客厅阳台,一览无余。
西侧岛台餐桌,与南北的厨房客厅连接,形成巨大的 T 形公共活动区,公寓获得了大平层的尺度感。
儿童卧的门换到了客厅一侧,餐厅和岛台面对的墙面得以延展到足够的长度,挂上电视。岛台操作和吃饭的时候,可以看电视。
客厅
楼梯由原先的实木楼梯换成了钢结构,书架底部架空,暗藏有灯带。吧台、餐桌、椅子的脚也都是精心挑选细细长长的,整体创造出一种悬浮的轻盈感。
书架前方的吊顶里有一段凹槽,用来放置投影仪的电动幕布。
客厅沙发后的深灰色的背景墙一直从楼梯洞口延伸到二楼。深灰色整面空旷的留白,孤单的树影,形成独特的视觉张力。
沙发的旁边设置吧台,它可以是客厅的一部分,与沙发上的人一起看电影。它也可以独立出来,泡上一杯咖啡,一本书,静静品味一个人的阳光和时光。
客厅有一个木箱子,是女屋主多年前从乌鲁木齐路的小店淘回来,正好可以作为茶几用。经过岁月抚摸的温暖木质和斑驳的结疤,中和了黑白灰的硬朗,为整个客厅空间带来了恰到好处的故事感。
厨 房
中厨是利用率最高的 U 字型,一边是灶台一边是冰箱和高柜,高柜可以放下各种杂物和锅子。
西厨紧邻餐厅。布置了烤箱,并为咖啡机、养生壶、吐司机等小电器提供了足够舒展的操作台。
儿童卧
儿童卧依旧是木色、黑色、白色的空间,干净又淳朴。床头半墙的地板上墙,作为床靠。
写字台和书柜延续了客厅的风格,“悬浮”起来,房间显得更加通透干净。
主卧
二楼没有继续开辟共享的家庭活动空间,而是更注重大人的生活私密性,保留了双主卧的形式,形成携手又独立的生活形态。
女主卧床尾沿墙布置一圈整体储物柜,收纳当季的衣物、包包、香薰、以及各地旅行带回来的帽子、摆件等。
柜门和开架的设置,在立面设计上精心调整比例,形成了虚与实的对比,使得整面的储物柜不至于太过沉闷。另一方面也在功能上满足了不同物品的收纳需求。
▲女主卧
▲男主卧
将原来的衣柜区扩大形成了独立衣帽间。男主卧的空间非常清净整洁。
卫 生 间
▲1F 卫生间
干湿分离的卫生间虽然正在流行中,但并非每个户型都适合。
本案中一楼的卫生间,原户型的干湿分离,马桶和淋浴区非常狭窄局促。改回一体式之后,采光和舒适度都得到了大幅提升。
▲2F 卫生间结合墙排马桶的水箱设置了壁龛,可以放置大量的洗浴用品。
楼梯
全屋的顶部都比较规则。唯一保留的坡顶线条出现在楼梯间,我们未加修饰。楼梯的斜线更增加了这种无秩序感。在相对规整的房子里,杂乱的线条汇集在此处,形成一个极为生动的画面。
阁楼
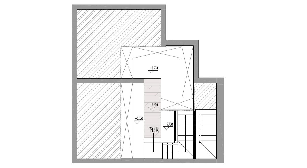
顶部为斜屋坡顶,最高点高达 4.2 米。原户型对这一块未加利用,邻居同户型大部分也只是顶部开了个洞,梯子爬上爬下取物,极为不便。
设计在保证 2F 起居正常高度的情况下,扩大了原 2F 男主卧的衣帽间,衣帽间的层高适当降低,给阁楼匀出了人站立行走的足够高度,而层高不够的两侧则作为挂衣储物区。
为了避开顶部坡顶的梁,顺应坡度,使人在行走的时候遇到梁不需低头不碰头,楼梯做了三折的处理,整个搭建的阁楼楼板面标高变得非常复杂。
所幸现浇楼板的团队非常专业,不仅精准的按设计要求完成了现浇,在各需要的转折处也做了相应的加固措施,保证了结构的稳定性。
写 在 后 面
在很多的项目中,我们都强调开放、共享的家庭活动空间的重要性。但是本案的设计过程中,我们更体察到大人对于私密空间的需求。
适度的寂寞,更有利于成年人的深度思考。
女人是情绪化、感性的动物。很多时候,治愈她的,可能只是家里专属的“几平方”。
家是港湾,愿我们在其中能体会到热闹的欢愉,亦能找到内心深处的平静与自我。
案例地址:上海
建筑面积:
166m
户型:顶楼复式 三室两卫
关于理想猫空间设计
理想猫空间设计,由两位同济大学毕业的建筑师和结构工程师联合创办。
living your way——创造个性化的居住空间,是理想猫的设计理念。
材料商/地产商/设计公司/空间视频
15365133087
本案由理想猫空间设计提供,为授权稿件点击阅读原文,查看更多设计案例~
客服
消息
收藏
下载
最近


















































