查看完整案例


收藏

下载
人生和电影不同人生辛苦多了如果你不出去走走你就会以为这就是全世界---《天堂电影院》
2020.7.20CHINACINEMA RESTART
今天不聊电影
聊聊电影院设计
01
马德里 Matadero de Legazpi 电影院中心
翻新旧屠宰场,并将其改建为公共电影院,其中设有电影资料馆、电影和电视演播室、两个电影院、办公室、食堂和夏季电影院。
照明的橙色结构主导着电影资料库的三层楼,否则它们暗淡的灯光和衬有深灰色油漆的木材。
在工作室区域,百年历史的建筑物的现有砖墙大部分都暴露在外,尽管有些砖墙还部分覆盖着木板。
电影的魔幻般的背光和对比度,以及童年时对编织品和人类无限的几何形状的着迷,是感官三角形……其余的就是将这种氛围,这种感觉螺旋地包围起来,并以富有建设性的方式定义它。电影档案区被一个可渗透的、巨大的、可行走的篮子覆盖,该篮子过滤光线并用作灯,巨大的数字是一个无限编织的普通橙色软管。
在小型的放映室中,只有当观影者打开窗户时,一个黑色的篮筐槽在黑色的太空船队中几乎是黑色的木头。
因为视线和感知极限最终是电影史上真正的主角。
结构解析后,连续的灰色松木地板地毯覆盖了墙壁、地板和天花板,定义了新的空间建筑。
02
日本新宿电影院改造设计
内藤新宿成立于 1699 年,是沿着江户大道(东京旧名)的主要通道的一个停靠站。
在 1920 年,该区开始被称为新宿,同年武藏野馆出现在新宿三越店的新宿区大道上。
当地商人在三层木结构中开设了一个拥有 600 个座位的电影院,铺有瓷砖外墙。
1928 年,武藏野新宿迁到现在的一个新建的电影院,拥有 1,115 个座位,位于三层混凝土建筑内。
三层电影院利用增强的剪力墙作为隔断,极大地改善了声学环境。座位布局的改变和座位梯度的改善使得屏幕比以前更容易看到。购买饮料和小吃,小书店的茶点柜台与洗手间和吸烟区看起来像是电影里的场景,吸引着行人的注意,使得气氛更像是一个电影工作室。
购买饮料和小吃,小书店的茶点柜台与洗手间和吸烟区看起来像是电影里的场景,吸引着行人的注意,使得气氛更像是一个电影工作室。
03
OMA 为 Kanye West 设计的七屏展馆
坎耶·韦斯特(Kanye West)的第一部短片是在 2012 年的法国戛纳电影节上,由建筑师 OMA 设计的金字塔中的七个影院屏幕上的观众周围观看的电影。
展馆旨在将观众沉浸在由七个具有电影比例的屏幕(17’x 17’,17’x30’’)所定义的空间中。用定制的 7 台摄影机进行拍摄,因此该空间的构想是通过屏幕的配置将投影群围绕观众包围。
金字塔的檐篷位于棕榈滩沿岸,打开了戛纳和地中海的全景背景,同时在红地毯上产生了悬浮感。电影观众沿着连续的红地毯升入金字塔,红地毯扩大到 200 个座位的礼堂。OMA 与位于戛纳的生产团队 Ar’Scene 合作设计了优化的三角钢框架,以适应展馆的独特技术要求。
负责人 Shohei Shigematsu 评论说:“金字塔巧妙地将自己与戛纳白色活动棚的背景区分开来,同时实现了能够悬挂复杂的屏幕,声音和投影装置的结构。”“我们很高兴能与其他创意实体一起参与开发该原型以获得新的电影体验。”
04
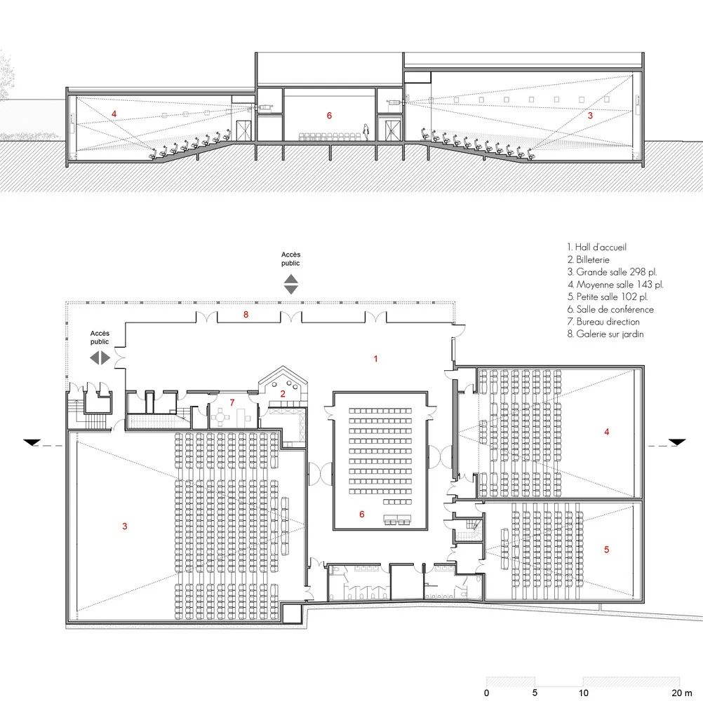
Riom 修道院电影院
多功能影院项目建在未来的“文化公园”场地里,靠近历史悠久的 Riom 中心。这里曾经是“Redemptoristine”修道院的花园,是这个地方的文化中心。这个新项目提供了:多媒体图书馆、音乐学校 (旧修道院的改造) 和电影院。
此项目的第一个体块与原有围墙的高度持平,构成现有墙体的“Volvic 火山石”提供了一种可用作矮体块的外帆混凝土的大骨料使用。立面以暗色调处理,在不同的高度上部分被植被覆盖,部分显露,老墙的石头碎片使人想起了传统的砖石结构。因此,立面标志着该地区新的历史足迹,并通过美学对话,以当代的方式诠释当地传统材料的新使用。
大型的展厅,提供雄伟的输入量并且充分向“文化公园”开放。这个宽敞而连续的空间由拱门穿过的带顶棚的户外走廊延伸。
观众可借用会议室外沿的走廊进入电影院,旨在组织通过围绕电影世界主题设计出一条高质量的路径来管理观众流。
05
尼勒姆剧院
尼勒姆剧院(Neelam Theatre)是勒·柯布西耶(Le Corbusier)昌迪加尔(Chandigarh)建筑的一部分而建成的三座电影院之一。
Neelam 剧院建于 1950 年代初,坐落在现代主义城市的商业区 17 区,该区由独立后印度的勒·柯布西耶(Le Corbusier)精心策划。
拥有 960 个座位的电影院的陈旧内部,蓝色瓷砖装饰层在墙壁和席卷的礼堂天花板上形成山脊。
剧院的墙壁上装饰着巨大的钢制切割图案,形状像声波。楼上在阳台上、天花板上滚着穿孔的檐篷。
使用的装饰细节,呼应了典型的现代主义几何图案,其点缀来自设计师自身艺术品味的影响。
看这个建筑作品,是在寻找具有底层形式的自由流动的线条。
尽管建筑物的外壳功能严格,但内部却是一种现代主义的自由流动方式。
Neelam 电影院和它前面的广场是城市的标志,在大众的想象中,它代表着城市的心脏。
入口上方喷出凸出的曲线,混凝土轮廓是通过剧院内部预期的声波曲线的连续产生的。
两扇巨大的无窗墙在开放式门面的正上方,门面位于城市主要公共广场的西端。
06
莫斯科的高尔基公园“车库影院”
"车库影院"(Garage Screen)夏季影院,坐落于莫斯科的高尔基公园内,与雷姆·库哈斯于 2015 年设计的莫斯科车库当代艺术博物馆相对。此项目旨在对大众的观影过程进行重新诠释,并予以全新的观影体验。
此项目的核心概念是打造一个“开放的电影院”。也就是说,与其设计一个封闭可控、与外界相隔的观影空间,建筑师更希望去拥抱并调和影院周边的环境因素,以避免其与所处广场的公共活力格格不入。
此外,建筑师不光使得周边的环境元素有机地融入到影院的空间功能中,同时也让影院空间向外延展,渗透到广场的公共环境里。
这也在无形中给这个夏季影院以一表演属性,使身处其内的观众感受到“看与被看”的独特体验。围绕影院四周设置的可伸缩窗帘,不光实现了空间的完全开放,也使观众在观影的同时,可以直接看到广场上的来往者。而与此同时,路人自然也可以看到影院内的观影人。
就周边环境的条件来说,此项目的挑战在于如何选择合适的建造材料、系统和形态。
当窗帘升起,影院空间就是一个完全透明的状态,但天鹅绒材质的运用极大地提升了影院内部的声学环境质量。而当窗帘降下时,影院内部则是一个安逸幽静的氛围,观影者可以完全地放松身心迷失在电影情节中。
而除了可升降窗帘,可变屋顶的设计,也保证了观众在莫斯科高尔基广场夏季影院内的观影体验。
雨天,闭合的屋顶可以为观影者提供遮挡;而晴天,敞开的屋顶则可以让观众于星空下观影,别有一番风味。
同时,建筑师还对影院的形态进行了计算机优化处理,以让影院大厅始终处于光照的阴影区,旨在给观影者提供更舒适的观影体验。
项目的设计灵感源于影院核心空间的物理功能。影院的外形类似于投影仪的发散光束,而其外壳,则使人想起电影胶片在播放过程中所发生的的反射与折射现象。此外,影院入口以“星球大战”为灵感,给人以无限的视野;而霓虹灯的配色则源于电影“银翼杀手”,旨在塑造一个特殊的空间氛围。
FUTUREAI
据外媒 7 月 16 日报道一部价值 7000 万美元的好莱坞科幻大片《b》正在紧张筹备中电影首次邀请日本 AI 机器人担任影片主演 AI 技术的机器人将真实地走进科幻电影这将是全球首部真正意义上的机器人电影为电影行业开辟一个新局面
AI 演员 Erica
随着科技的发展 AI 机器人会不会是下一个好莱坞影星?
AI 融入各行各业的趋势显然已经无法改变那电影院会不会消失?
未来电影行业会是怎样的呢?...
要尊敬上帝
他在两、三天内创造世界
而我花的时间会更久些、更久些
但我很谦虚
我愿做好我的一切
《天堂电影院》
欢迎投稿作品
不忘点击
客服
消息
收藏
下载
最近

























































