查看完整案例


收藏

下载
哲学的空静之境,不是由于其对生活创造的无力,而是其本身就是深邃的海洋,一个看似虚无却也实在的价值构建,可触摸,可谛听,可演绎。
——《新论语》
本案是一个住宅的改造项目。
从住宅的改造前我们可以感受到业主对中式及实木家具的情怀。
设计师想从传统厚重的设计美学中脱颖而出,融入当代设计元素,在理性中择取禅意,重新解构、重组、碰撞出一种素净雅致的东方美学,体现当代轻奢理念。
运用全屋智能及灯光控制系统,以及恒温、恒湿、恒氧及无噪音的健康高品质生活系统。
位于深圳后海,坐拥建筑高层优势,纵览整个四海公园景观,生活在此,是静谧高雅、舒适自在的体验。
通过对生活的体验、感受和对文化的思考、琢磨,再到更深层次的物外精神追求来呈现作品。
温暖的中性色调与木质感相得益彰,演绎可触摸的空间温度。
我们所运用线条与木质体块来雕塑空间,引导并连贯行为动向,由开放区到私密区域,不做过多的结构,让其回归空间纯净简单,低调内敛的精神所在。
家具以传统木作精神为里,现代美学范式为表,再与背景的水墨纹大理石结合,迸发出不一样的中式韵味。
加上客厅放置了一些当代雕塑与复古饰品,即能激发空间能量,又能让空间气场跃动,灵思涌现。
餐厅以现代和原木家具之间的搭配,多了一些自然韵味,在一种微妙的状态下将空间营造的颇为动人,弥漫出自然的温润质感。不失设计的同时又满足了业主对东方文化的追求。
主卧空间墙面以对拼木材包裹,低调柔和的配色与品质家具,延续整面落地玻璃窗,以简单的形式出现,营造出简约、温馨的睡眠状态。
衣帽间采用开放式木质衣架,地面木地板朴实无华的温馨色调大面积铺开,展现着自然肌理与质感,来满足业主日常生活的习性 。
改造前
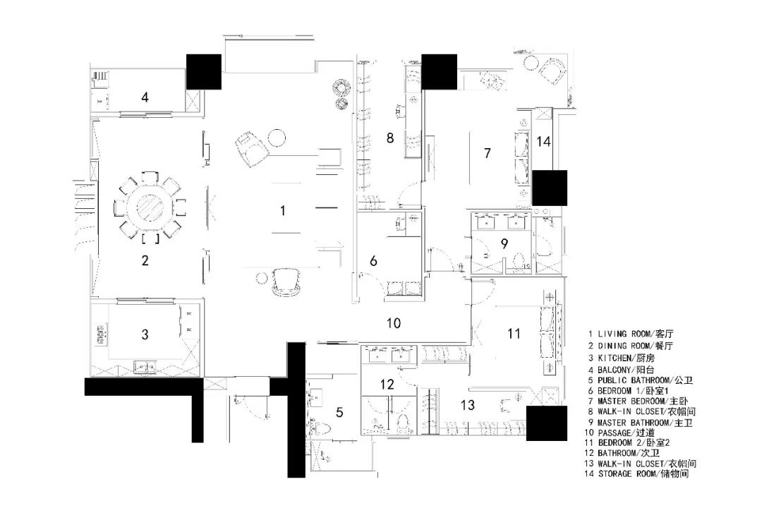
平面图
项目名称:深圳天海豪景苑C户型
设计机构:AD ARCHITECTURE∣艾克建筑设计
总设计师:谢培河
设计团队:艾克建筑
施工团队:艾克工程
项目地点:广东深圳
建筑面积:205㎡
主要材料:大理石、木地板、墙布、白色乳胶漆、KD板、超白玻、金属
设计时间:2018年3月
竣工时间:2018年12月
摄影师:欧阳云
谢培河
高级室内建筑师,AD ARCHITECTURE∣艾克建筑设计创始人及总设计师,致力于室内建筑空间的创造及空间体验性的营造。
设计从生活中来,提取感性的设计灵感与理性的设计手法,让每一个设计都从零开始,打破惯性的设计思维,让人感受每一个空间不同的体验与乐趣。
关于AD ARCHITECTURE∣艾克建筑设计
AD ARCHITECTURE∣艾克建筑设计,成立于2015年,以共赢、共存、共识为理念。
意在聚集有共同理念的设计人。组成一个富有协作精神的设计团队,发展本土设计事业。主要业务内容包含建筑设计、室内设计、软装设计。
专注于豪宅、售楼处、办公、会所、公共空间。以专业的立场、创新的设计理念,致力为市场提供高水平的建筑及室内设计专业作品
AD ARCHITECTURE,力图让自己创造出更多富有创造力以及关心到人的作品。
则灵艺术丨以“童·游”为足迹,探寻儿童视角下的美好世界
于强设计 | 富有生命力的办公设计,为工作方式创造更多可能性
羽果设计 | 果壳中的宇宙,引领未来高端生活方式的人居美学展示空间
客服
消息
收藏
下载
最近







































