查看完整案例


收藏

下载
“建筑师所创造的空间应该是和谐的,是其用线索把生活的视线和时间编织在一起的世界。而用来编织的最基本的经纬就是人纷繁的情感之线与包括人在内的交流与互动。”——阿尔瓦·阿尔托
原建筑套内面积 369 平,一层 218 平,地下室 151 平。地下室近 6.4 米高,被几个高而窄的房间分隔,有天窗的地方被墙壁围起来,透光性差,空间显得十分压抑。
针对这些情况,设计师重新规划了空间布局和动线。新的空间消解了原建筑中的“体块”感,是“反立方体”的,空间界限被超越,内部变得灵动、通透。
-1F 原始平面
-1F 改造后平面
-1F 改造后夹层平面
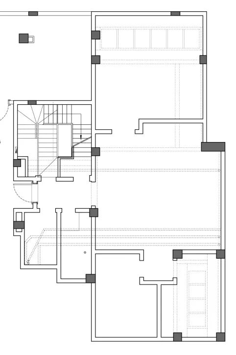
1F 原始平面
1F 改造后平面设计对地下室的改动较大。首先,推掉了不必要的墙体,将柱间梁隐去,空间变为“板柱结构”的模式,这样有助于平面自由化,地下室成为一个统一且纯粹的空间。
-1F
楼梯的改动对空间影响很大。设计师移动了楼梯位置,空间动线更为流畅,透光性增强。日光与树影通过顶面和侧面的窗户柔和地洒入楼梯间和地下室,人的起居活动伴随自然光影变化而进行。另一方面,一楼客厅的空间也变得更为开阔。
阳光洒入地下室楼梯间
▲ 一楼下至地下室
▲ 山水背景
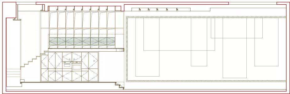
楼梯——空间之眼地下室改造从水平空间和垂直空间两个维度进行考虑,水平空间主要有沙发休闲区、吧台料理区及麻将室、客卧、卫生间、储藏间等功能房间;垂直空间主要是一个图书馆和山水背景墙。从平面去看,整体分为两个区域,一侧为挑高开放的公共空间,另一侧为双层功能房的私密空间。
▲-1F 会客区
▲ 西厨柜体、图书馆结合
▲ -1F
空间里最有意思的地方是坡道的设计。设计师通过坡道来组织和活跃整个空间的流线(卧室、图书馆、吧台料理、会客区、麻将室、山水背景),达到了可以“边走边欣赏”的室内空间状态。
▲ 中空夹层增加了室内使用面积
私密区域望至公共区域
▲ 坡道组织和活跃了整个空间的动线
▲ 坡道望至会客厅
设计师吸收了柯布西耶“建筑漫步”的设计理念,同时,并在新的层面上对它进行了发挥。半围合的坡道创造了一个中空的空间,串联了隐私空间和公共空间的动线,同时使坡道对空间的干扰降到最低。
▲ 楼梯++ 坡道,营造变化的室内场景
▲ 以现代手法将中式元素融入空间
▲ 坡道望至吧台料理区
▲ 空间的层次性与趣味性
▲ 空间内坡道的多种表现形式
坡道使图书馆墙产生了一些微妙的形态变化,结合铁艺格栅的走廊,空间更具层次感与趣味性。坡道与楼梯的组合,营造了变化的室内场景,丰富了空间视点,人的视线得以穿透和变换,人在空间内可以自由互动与交流。
▲ 坡道图书馆
▲ 由坡道图书馆望至另一侧
▲ -1F 坡道图书馆
▲ 坡道图书馆
▲ 由坡道图书馆下至地下吧台螺旋形楼梯和缓步上下的坡道并置,在有限的空间中戏剧性地设置了两个功能相近的元素,人在两种方式中酌情选择,形成一个自由空间。空间的中心变得没那么鲜明,新颖的形态和组合之间形成了一种张力和摇摆不定的联系,设计的唯一性和确定性因此存在于它们的平衡之中。
▲ -1F 夜景
▲ -1F
墙体细部
天花和天窗倾泻而下的弥散光线经过折射,到达地面,然后再一次轻柔地反射回到空间里。设计与自然的关系延伸至材料的使用。房间内的墙壁、地板和天花均覆盖以天然质朴的材质,营造出舒适而温馨的室内氛围。
▲ 由--1F 上至 1F 客厅
▲ 由--1F 上至 1F 客厅
▲ 由--1F 上至 1F 客厅
仿水泥艺术涂料、大理石、柚木格栅和仿古黄铜等材质共同营造出一个清雅大气、求实兼蓄的人居空间,胡桃实木家具、灰泥艺术涂料、岩石锈痕纹理壁纸……将自然元素映射入室内,厚重质朴和轻盈通透并行,增加了材料细部的可读性。
▲ 1F 客厅
▲ 一楼客厅至餐厅过道
▲ 一楼玄关
▲ 1F 餐厅、中厨
▲ 1F 餐厅、中厨
设计师将现代化的居住体验同传统设计元素结合起来,使住宅得以展现出一种理性、精致、和谐的美感。整个空间利用结构、材料、室内外关系激发身体感知,人与建筑在这样一个空间维度里复焕生机。
▲ 1F 主卧
▲ 1F 主卫
▲ 1F 主卫
▲ 主卫望至主卧
▲ 1F 主卧
▲ 主人自制根雕作品
▲ 1F 次卧
▲ 1F 儿童房
▲ 1F 儿童房
空间以简洁而不张扬的形式重新定义了奢华与舒适的含义。从水平和垂直双向上进行整合与拓展,充分利用层高优势植入夹层空间,使空间的物质体验和精神享受达到统一,形成一个“逻辑清晰、尺度自律、弹性多义、暧昧融合”的趋于匀质化的流动场所。
▲ -1F 改造前后对比
▲ 1F 改造前后对比
▲ -1F 改造前后对比
▲ -1F 改造前后对比
▲ -1F 改造前后对比
▲ -1F 改造后立面
▲ -1F 改造后立面
▲ -1F 改造后立面
项目名称:建筑漫步
设计单位:上海黎李设计事务所
设计师:黎波
项目地点:无锡宜兴
建筑面积:369 平米
主要材料:橡木、柚木、大理石、艺术涂料老钢门窗、艺术玻璃等
摄影:Lilly
项目时间:2018 年
—— 往期推文 点击图片 ——
钢筋、混凝土、混合物,极简主义才有的平静诗意
TOP 系列顶级公寓 : 优雅格调的灵魂居所
这座只属于艺术与自然的“宫殿”,才是真正的奢华!
瞬间点燃罗曼蒂克 情人节 10 大终极“爱巢”
看点笔记小程序
无需电脑,只要一部手机最新尝鲜还不赶紧来试试!
客服
消息
收藏
下载
最近







































































