查看完整案例


收藏

下载
©Shin Kyung Sub
这是一个改造项目,将原有的住宅结构改为韩国领先的时尚品牌之一 thisisneverthat 的办公大楼。大约 40%的墙体已经被剥离并重新排列,以适应新结构的需要。
Shin Kyung Sub
Shin Kyung Sub
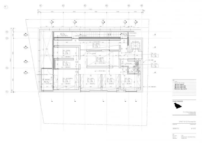
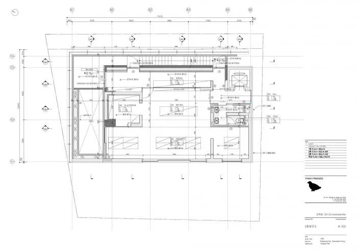
平面索引图
Shin Kyung Sub 具有不同材料和层次的多层墙体被结构化为一层层的皮肤,包裹着一个预先存在的核心。通过一次一层的剥皮行为,构建了一个光线和亮度的梯度。这种梯度既与光的运动有关,也与身体的运动有关。
Shin Kyung Sub 通过外部幕墙和内部核心之间的缝隙,构建了一种垂直感。这个缝隙通过引入光线、空气和雨水来突出垂直度,这为结构增加了另一个维度。外层幕墙的半透明性使其能够表达隐藏在背后的垂直度。
Shin Kyung Sub
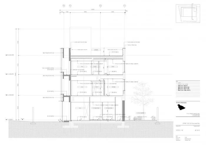
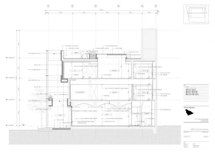
剖面图
Shin Kyung Sub 每一层皮肤都体现了不同的物质性,表达了不同的质地和不同的个性。最外面的一层表达了一种平面性,通过内部具有原始和未完成的核心感的层,保留了深度。
Shin Kyung Sub
Shin Kyung Sub
Shin Kyung Sub
Shin Kyung Sub
Shin Kyung Sub
Shin Kyung Sub
Shin Kyung Sub
Shin Kyung Sub
Shin Kyung Sub
项目图纸
▲剖面图
剖面图
剖面图
▲立面图
▲立面图
▲剖面图
立面图
平面索引图
剖面图
▲平面索引图
▲立面图
立面图
剖面图
剖面图
剖面图
平面索引图
▲剖面图
项目信息
建筑师:FHHH FRIENDS
面积:157 m²
年份:2019 年
照片:Shin Kyung Sub
制造商:AutoDesk, Byucksan, FILOBE, Hanil, Samnam Window, Trimble Navigation
景观:Atree Landscape
负责建筑师:Han Yang Kyu, Han Seung Jae, Yoon Han Jin, Kim Hak Seong, Hong Hyeon Seok "Jerry"
设计团队:FHHH FRIENDS, FHHHFriends, Han Yang Kyu, Han Seung Jae, Yoon Han Jin, Kim Hak Seong, Hong Hyeon Seok "Jerry"
客户:thisisneverthat
工程:LEEGAK 建筑公司
合作者:STUDIO COM
城市:西大门区
国家:韩国
客服
消息
收藏
下载
最近





































