查看完整案例


收藏

下载
© 秦伟
感谢
中衡设计
金阊体育场馆所在区域江苏省苏州市姑苏区金阊新城,是苏州西北部的城市副中心、金阊区的行政中心和苏州市的物流园区,是集居住、商贸、行政办公、物流等功能为一体的综合片区。地块位于虎殿路西南,金政街东北,占地面积约4.67万㎡,总建筑面积3.38万㎡。
▼鸟瞰金阊新城体育馆 © 秦伟
虎丘塔和金阊
苏州自古为生产锦绣之乡,积聚绫罗之地,其中尤以金阊地界出土的宋代锦、绫、绢、绸闻名遐迩。于是在建筑形态控制上,建筑师有意将金阊这一美誉融入设计。鸟瞰整个体育馆,屋顶层叠交错,鳞次栉比,宛若一匹稠密织锦。
▼鸟瞰体育馆观景平台 © 秦伟
▼层叠交错的建筑形式 © 秦伟
金阊新城体育馆与其东南方虎丘塔风景名胜遥相对望,是以在场地南侧设置相对静谧的观景平台。另有缓坡引导游人蜿蜒而上,好似虎丘山林小径曲折绵延。各观景平台高差分明,进退有序,每行至一处都可休憩身心,或远眺风景。屋面活动与室内活动与对面体育公园的活动及流线相呼应,打造室内室外一体,与各城市节点呼应的建筑。
▼体育馆概览 © 秦伟
▼丰富的景观空间 © 秦伟
自然生态向度的叙述
外部广场作为引入体育公园绿地的景观空间,可以起到集散人群的作用。丰富的景观植物装饰以及地面铺装的变化增强了广场地面层次感,同时还配置足量的树池、座椅分隔空间,供人休憩。
▼由足球场看建筑 © 秦伟
▼由室外步道看建筑 © 秦伟
一层多个庭院空间是金阊新城体育馆的“露天起居室”,既是建筑空间的室内延续,又是外部自然的内向延伸。这些开放空间提升了自然采光及通风,在过渡季节节省了大量能耗。庭院内植物景观的广泛运用减弱了建筑给人的压迫感,是建筑尺度更为舒适,为市民提供了灵动的室外活动灰空间。
▼直立锁边屋顶 © 秦伟
▼屋顶下方是体育馆的“露天起居室” © 秦伟
▼庭院内的植物景观减弱了建筑的压迫感 © 秦伟
水岸边的材料美学
体育馆立面采用白色波浪形的GRC板,与螂桥港水面的波光粼粼形成场景上的呼应。在其下方的大面积玻璃幕墙映射出周边自然环境,建筑以一种消解的姿态与城市进行对话,实现建筑在环境中的多维度布陈。
▼体育馆立面采用白色波浪形的GRC板 © 秦伟
直立锁边的屋面顺势而下,形成与白色GRC板对比强烈的金属板材立面,给人视觉上通畅的下落感和线条感。此中材料的组合运用既是现代性语境的创作与创新,又利用材料的美学感观充分表现文娱建筑的文化特质。
▼立面细部 © 秦伟
多元功能的有机聚合
考虑到金阊新城体育馆不同于单职能建筑而呈现的多元综合、集约配置的特性,建筑师用一个整体化的建筑语言——统一的屋顶和基座平台,将零散的功能元素组织成具有规模性优势及整体性优势的空间集聚体。沿河布置商业,一层以商业培训为主,二层以上以大型场馆为主。功能方便相对复合,将城市的稀缺资源做整合,探讨城市文体综合体的发展。
▼宽敞明亮的室内空间 © 秦伟
▼楼梯与连廊 © 秦伟
▼游泳馆 © 秦伟
项目图纸
▼总平面图 ©中衡设计
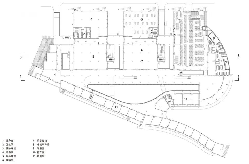
▼一层平面图 ©中衡设计
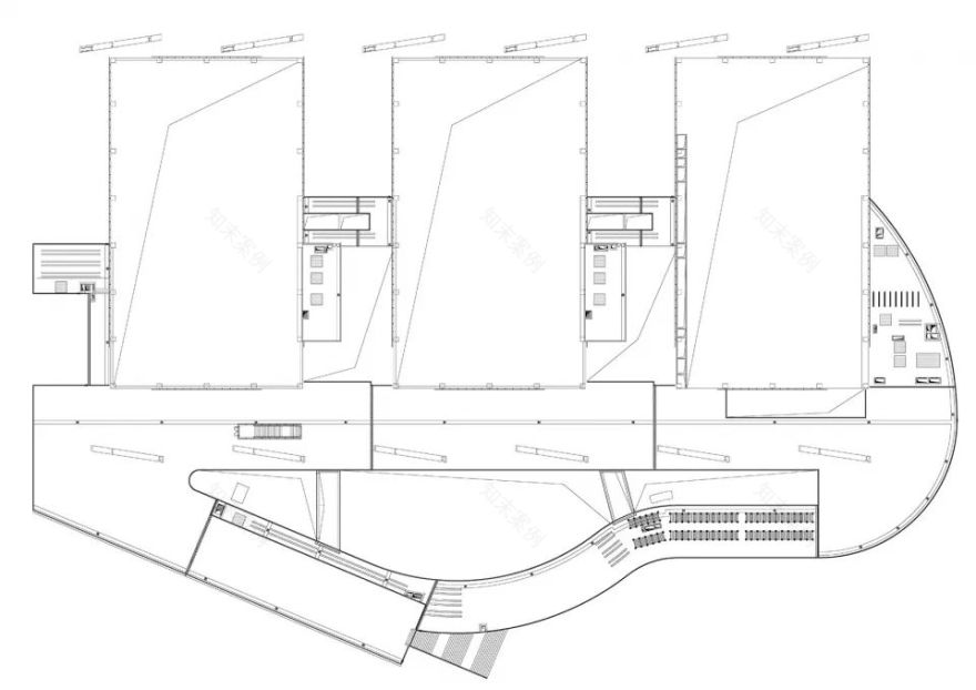
▼二层平面图 ©中衡设计
▼三层平面图 ©中衡设计
▼立面图 ©中衡设计
项目名称:虎丘山麓,新城北部 – 金阊新城体育馆
设计方:中衡设计集团股份有限公司
公司网站:
项目联系人:
文稿联系人:
项目设计 & 完成年份:2014,2019
主创及设计团队:高霖 冯正功 黄琳 胡湘明
项目地址:江苏省苏州市姑苏区虎殿路999号
建筑面积:3.38万 m2
摄影版权:秦伟
客户:苏州综合物流园开发建设投资有限公司
客服
消息
收藏
下载
最近


























