查看完整案例


收藏

下载
极简主义设计,通过建筑的思维去梳理空间与间隔之间的关系。在多空间场景的切换中、不断的探索和实践强化变量的认知,对外试图呈现我们自己独到的美学视角,赋予空间多重意义上的诉求。在满足物质条件的同时,力求对精神层次的满足,理性伴随感性的继续,打破传统的生活方式和根深蒂固的思维。
本次案例来自千上设计。
01. 独 白
独向于内,述演其形
有结合的对外方式梳理,且伴有对空间的留白平衡,传达体验值的同时,思考其存在的合理性,再就多维度的分散区位来探讨日常与空间所关联的互动间隙,进而提升私宅对外所阐述的情感共鸣。
通过空间的多维思考来探索生活的不同层次定义以及私宅更为贴切的功需,也希望透过表面的呈象,我们可以看的更为深入些,不只是来自设计层面的认知,更多的可以体会到生活的真实。
对于私宅所提炼的生活方式传达,更倾向其脱离外饰后的本真面貌呈现,以相对质朴的设计语言来叙述空间所要传达的心绪变化,考量其背后的真实发生。
用重组的方式来衔接彼此相邻的分区,尝试突破框架界限的二次组,结合日常的行为来让空间建立更多元化的关系。
结合居住者的情绪体验,转而到对空间的呈象思量,对生活的深切关注,慢慢到对所处空间的反向思考,再结合内心的情境,述演其常态。
在保证细分功能的前提,优化空间界面,让相邻的区间建立更多的互动关系,来强化日常带给居住者的心绪变化。
空间与使用者所建立的场景互动。尝试重新定义单向区位的功能,让其更具交流和互动性,也可以更好的感受空间给予日常的不同体验方式。
以留白的方式来梳理日居常态的空间关系,记录着所发生的帧帧场景及其遗留的面貌和痕迹。
在明确功能区间分布的框架内,尝试释放分区本身,让相邻空间彼此更能实现其该有的具象分则。
打开是基于界面封闭后的二次推演,也更能考量不同维度的空间思考,让其自述,还原本体所要兼容的有乃性,也在反向的验证空间的可变性,再结合功需的前提,让其连贯的更为彻底。
试图通过贯彻空间的多维面貌来反映和诉说日常,重拾被定义的情感建立和发现。尝试在空间中去融合和记录被生活过的常态轨迹,把更多反馈后的体验值带到日常的累积过程中。
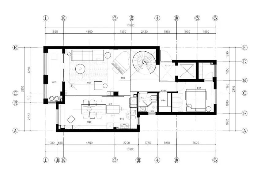
▲1F 平面图
▲2F 平面图
▲3F 平面图
项目类型|| 私宅
项目面积|220 m²
项目地址|| 温州平阳香湖壹号
设计团队|| 千上设计
主创设计|| 姜万静 兰斯
设计参与|| 蔡丽君 潘琪靖
02. 自由趣味人生的映射
“自由应是一个能使自己变得更好的机会。”自由的精神下,物象之美纳入眼帘,直击灵魂生命,引起共感。因而此处的设计以空灵反衬境界的丰实,使人在摇曳荡漾的律动与谐和中,引发无穷的意趣、绵渺的想象。精致、清爽,更有几分精神的寄托。
燕侣莺俦的业主,一开始便对这张人生的第一张画纸充满了动笔的欲望,而原始建筑上的空阔结构,给设计师和年轻的业主都预留了更多的创造空间。没有过多划分空间的承重柱,使得空间在入户处便四通、灵动。
暖色的沙发撞色烘托了几分幸福之气,闲暇之际与家人相聚,更是一种精神的寄托。回归现实,对于年轻的一代,生活不仅需要诗和远方,也需要温柔的亲人陪伴。客厅墙壁的设计摒弃了电视机之后,切实的感受真火壁炉的温度,闲看三两书,犹如那雕塑——“我看到了幸福”。
以简约明快的色调,搭配灵活的建筑空间,营造轻松活跃的舒适空间,以浅色调为主色调,个性鲜明的装饰画,造型别致的装点物,淋漓尽致表达着主人心中的自由与率性。那些对生活充满热情的人,内心便是诗,所以他们总能在小细节中感受到生命的美好,那些对生命的热忱,都换回了无数的岁月静好。
简约温馨的浅绿金属椅搭配干净的白色圆桌,让餐厨空间加上了一层生活的色彩,精致的生活,就在日常的细节中。餐桌旁简单的置物区为午后那杯香浓醇厚的咖啡,提供一隅操作的空间。随手随心的享受自由。
门框、书架的纯粹的黑白营造理性的质感,透露出优雅与迷人的气质,空间排除一切冗余的线条,力求大气沉稳。
卫生间打破了以往洁白如净的概念,引入热烈的红元素在小空间内绽放着他的异彩。菱形黑白大理石的拼接奇妙地注入了复古摩登的元素,无章、无法,是属于业主独特的性格。
主卧承袭公领域的素色风格,由灰调铺陈,传达出温情而平和的情绪。通过空间内形状、虚实、远近的合理配置,强调质感,既显时尚新颖,又为其增添动感活力。映着白色窗帘透进的日光,让卧室简约中带有变化。
热情自由的灵魂,在夜晚,也渴望栖息在宁静的港湾。卧室空间更多的在素雅的色彩基调下,去寻找肌理的质感。
卧室和浴室相连,串联起空间动线,满足实际需求。简洁干净的主卫由雅士白大理石整体铺设,与卧室相得益彰,美学与经典的融合。
光线在此不止为了照明,也提供精神上的光合作用,让休憩更轻松自在就能恢复气神。空间并没有过多的装饰,却营造出一种尤为特别的氛围和体验,给人带来舒悦的清新之感。
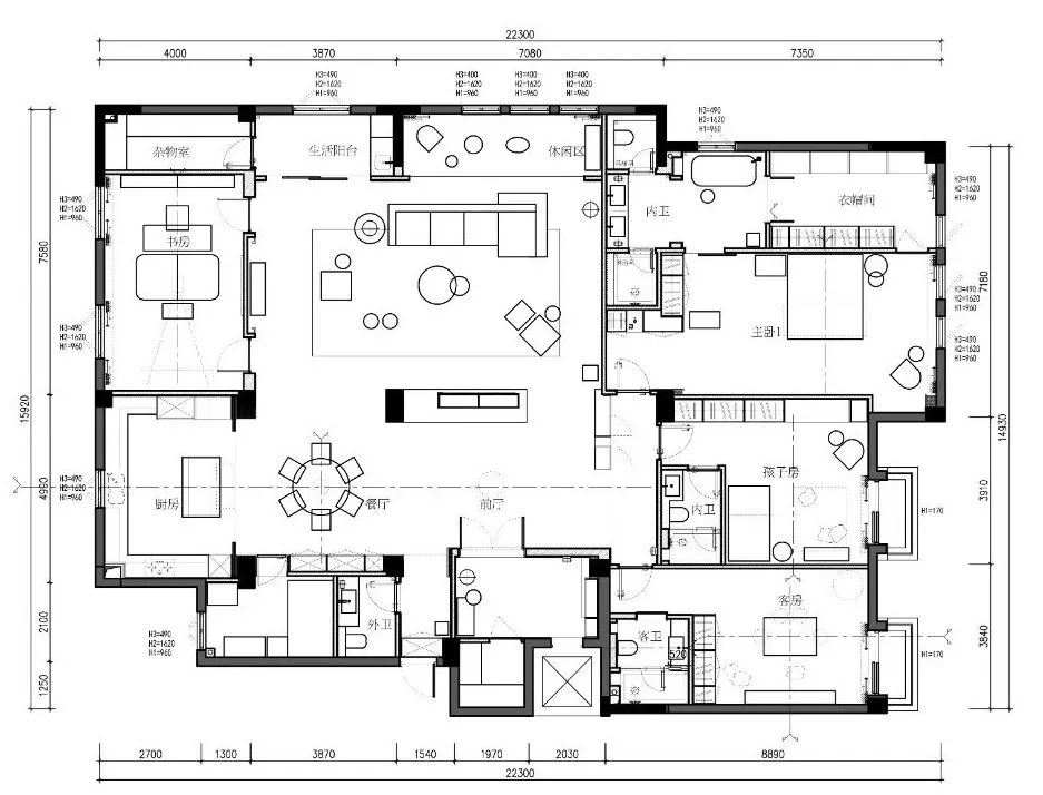
▲平面布置图
项目名称 /趣味人生的映射
项目地址 / 浙江 · 温州
项目面积/ 300㎡
设计公司/ 千上设计
主创设计/姜万静、兰斯
软装执行/蔡丽君
项目摄影/ 吴昌乐
主要材料 /鸿联卫浴、艺术涂料,白色乳胶漆,木地板,金属收边条,染色影木木皮
03.构 叙
形喻褒贬,由心而涣
“活得越久,生命就越加美丽。如果你愚蠢地忽视美感,您很快会发现自己失去了它,生活将陷入困乏。但如果你是明智的追求者,它将伴随你一生。”——弗兰克·劳埃德·赖特
对于私宅生活方式的提炼,更注重由格局再出发的整体性考虑,再结合实际的功能需求,转而控其主氛围的营造到最终的气质输出。
于内场的处理渲染。更为关注其内外的双重精神塑造再反馈到对功能诉求的理解。
常态关注的背后,加强对于生活层次的深入和再剖析。由日常作为切入点,来作为空间及理念传达的基点。
以重组的方式来重新定义空间与间隔的界限。试图梳理其内在可串联的隐藏关联性,力求有分而联。
围绕人为的日常变化及所处空间的叙事性来作为情感寄托的可延展点,去探讨生活方式更多可能性的存在,意图打破某种内定框架的规则输出。
相比较更为直接的阐述,更倾向富有隐喻的褒贬。
其空间多延用竖向转换思维的方式来梳理,着重点多在于对相关材质整体性的衔接考虑。
对于分区的界定,不再仅仅局限既定的格局性。更多的思考其动线的贯穿及空间趣味性的梳理,让彼此相邻空间保证独立的同时,也可以发生日常的联系……
使其归于常态,归于实际及生活,让空间更为真切的融入当下的状态,不再是生硬脱离空间的虚幻。
对于我们自身的诉求,我们更希望脱离外饰的直观表达。也许外在的形式普遍会作为人视的焦点,但透过人视,我们希望可以看到的更深、更远……由此带来的思考,也是我们更为关注和反省的。
不再是单一的功能诉求切入,更关注其与相邻介质的关联性。无谓显与隐,让沉浸发现的眼光可以更具独到性。
动静较分明的流线分布;公区的思维设定,则意在记录更多日常惬意的随时发生。
▲平面布置图
项目名称 |构叙
项目地址 |浙江。乐清
主创及设计团队 |千上设计
施工单位 |乐清石头装饰工程有限公司
主创设计 |姜万静、兰斯
协案设计 |蔡丽君。林思思
摄影师 |吴昌乐
建筑面积 |215 m²
04.置 构
由形而演,于量则变
当充满活力和意义的内容处于中性状态时,结构的形象和设计就显得更加清晰,这有点像在自然或人为灾害的破坏下,城市的建筑遭到遗弃且只剩下骨架一样。人们并不会轻易地忘记这种再也无人居住的城市,因为其中所萦绕的意义和文化使她免于回归自然。——德里达
原木作展厅内局部区域的翻新。原意更多的是想要推翻传统以产品为主的展厅落点,以一种变相的方式来阐述空间与产品的多方面结合。由于是局部的翻新,在内流线及相邻空间的衔接上,我们做了更多的思考,使其可以存在的更加自然而然,而非有大动干戈的痕迹。
这是我们在确定格局前所需要多加思考的点位。诸如产品与空间如何更好的相辅相成?产品对于空间内的存在方式以及产品本身情绪化的控制再到后来的反向思考。空间与产品的必要性是不是可以通过另外一种方式得以诠释。
由原动线进入翻新区的心理转换过程。不仅仅只是考虑局部翻新的跳脱,更多的会从心理转换的角度去分析原动线进入翻新区的落差平衡。
以切内的方式来重组物件与间隔之间的关联性。通过某种介质的脱离来实现黑匣的可独立性,再以灯光阴影作为脱离,使其实现分明的悬浮感。
于光线交织物件与空间的叙述性。
以片墙的方式来间隔主次动线的分流,让其行为反推其心理变化。
以体块的方式来整合松散的部件关系,使其贯穿于分区内形成自定的边界。
意打破某种既定的内序和规则,尝试打乱后的再重组,使其内部的元素更具多样化,再借由现空间被呈现。
▲图纸呈现
▲轴测分析
客服
消息
收藏
下载
最近




























































































































