查看完整案例


收藏

下载
点击蓝字“知行 Design 中华优秀作品第一发布平台!
静,自然的意念;空,自然的灵性。Quiet, natural ideas; Emptiness, natural spirituality.
在纯粹的现代主义设计中,静与空是两种相互依存的设计境界,两者皆是美的化身,前者强调自然之美,后者强调灵性之美。
In pure modernism design, static and empty are two interdependent design realm, both of which are the embodiment of beauty. The former emphasizes the beauty of nature, while the latter emphasizes the beauty of spirituality.
别墅整体分为地上两层、地下室一层和夹层,配有红酒区、品茶室等休闲区。合理有序的空间层次划分,如画卷般徐徐展开。
The villa is divided into two floors on the ground, one floor in the basement and a mezzanine. It is equipped with leisure areas such as wine area and tea tasting room. The space level is divided reasonably and orderly, which expands slowly like a picture scroll.
天然大理石的背景墙面,在木质、金属、大理石构建的几何介面中,每一种肌理、色彩,让所见并不止于静态。
The background metope of natural marble, in the geometrical interface that constructs in wood, metal, marble, every kind of texture, color, let what see and not only at static state.
同时加入珊瑚橘的明亮、活泼、充满热情,让家居风格轻量化、个性化、简约化,更能承载丰富多彩的生活。
At the same time, coral orange is bright, lively and full of enthusiasm, so that the home style is lightweight, personalized and simplified, and can carry a rich and colorful life.
餐厅吊灯流线型线条,纯粹的空间结构和在细节上的考究,是设计师对 Aston Martin 的精髓领会。
The streamlined lines of the dining room chandelier, the pure spatial structure and the meticulous detail are the essence of the designer’s understanding of Aston Martin.
流线线条呼应至餐桌造型花器,家具的每一处动线皆是首尾呼应,空间中处处是对流线的着墨讲究。
Streamline line echoes to table modelling flower implement, every place of furniture moves line all is head end echo, the ink that is opposite to streamline is exquisite everywhere in the space.
二层开放式的空间充盈着光和宁静,主卧室层次分明的织物布置,营造出暖意和质感,让居住者体会到一直以来都被精心打理着的亲切。
The open space on the second floor is filled with light and serenity, while the master bedroom’s layered fabric layout creates warmth and texture, allowing the occupant to experience the kindness that has been carefully managed all the time.
通过对多元化的空间功能规划,打破传统布局,以开放式设计打造办公收纳为一体私人区域,满足都市生活所需。
Through the planning of diversified space functions, it breaks the traditional layout and creates a private area for office storage in an open design to meet the needs of urban life.
通过成规模的空间造型,原木的颜色与质感显露出不一样的内敛与优雅,从功能出发,赋予空间舒适的感受。
Through the spatial modelling of the scale, the color of the log and the simple sense of texture reveal a different inner collection and elegance, starting from the function, give the space a comfortable feeling.
素雅的色彩、自然的材料、粗糙的肌理,带有岁月痕迹的家具陈设,体现一种静态的时间流逝,让身处其间的人们感受到一份宁静的淡雅和沉淀的安然。
The color of simple but elegant, natural material, rough texture, the furniture furnishings that contains years trace, reflect a kind of static time elapses, let the people that be in between feel a quiet quietly elegant and precipitate enron.
多功能室人字形的挑高空间,纵向与横向线条自然组合,呈现出一个富有旋律的简洁空间,素雅的背景和装点,赋予空间谦和宁谧的气质。
The multi-functional room has a herringshaped high space, and the natural combination of vertical and horizontal lines presents a simple space full of melody. The simple and elegant background and decoration endows the space with modest and quiet temperament.
现代茶室设计清雅低调,回归空间自然质朴的天性,低调而真实的肌理变化、沉静清淡的色彩,设计通过材质与质感的对比、器物的语言,隐喻了“少言、行远、去杂、至巅”四种富有禅心雅韵的人生境界。
The design of modern teahouse is elegant and low-key, returning to the natural nature of the space, low-key and real texture changes, quiet and light colors. Through the contrast of material and texture, and the language of the objects, the design metaphors the life realm of "less words, far lines, miscellany, to the top", which is rich in Zen heart and elegant charm.
楼梯/The stairs
一直以来,探索宇宙是一件很酷又很浪漫的事情,只要你用心去探索,那么你就是最酷的探索者!
Exploring the universe has always been a very cool and romantic thing, as long as you put your heart to explore, then you are the coolest explorer!
儿童房是一个富含趣味性的存在,灵感来源于《星际旅行》,巧用太空漫游定制墙面、火箭、太空人等元素,塑造一个儿童小世界。
Children’s room is an interesting existence, inspired by Star Trek, which skillfully creates a small world for children by customizing walls, rockets, astronauts and other elements in Space Odyssey.
亲子互动空间的设置,是关于家最美好的存在,热烈、思考、解放天性,这是一个有交互、有沟通的空间。
The setting of parent-child interaction space is about the best existence of home, warm, thinking, liberating nature. This is a space with interaction and communication.
△一层平面图/Plan of the first floor
△二层平面图/Two-story plan
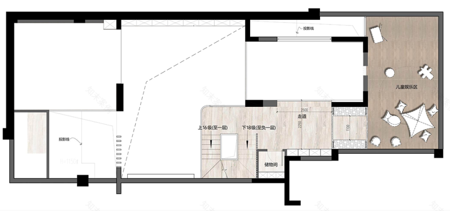
△夹层平面图/Interlayer plan
△负一层平面图/Plan of the negative first floor
项目名称:Project name: Fuqing Rongqiao Jinjiang Phase III Foreign House
项目地址:Project address: Fuqing
设计面积:Design area: 420
竣工时间:Completion date: 2020
室内设计:深圳市昊泽空间设计有限公司
Interior Design: Shenzhen Haoze Space Design Co., Ltd
设计团队:韩松、邓恒果、朱建勇、王凌敏、李勇
Design team: Han Song, Deng Hengguo, Zhu Jianyong, Wang Lingmin, Li Yong
Special thanks: Rongqiao Real Estate
创始人兼设计总监--韩松先生
创始人兼执行总经理--吴海蓉女士
合伙人--周文祥先生、朱建勇先生、柳倩女士
深圳市昊泽空间设计有限公司由韩松先生、吴海蓉女士于 2005 年创立。创业之初取名「昊泽」,立意:「平地而起,心怀广大」。立志于用设计改变生活,用设计改善人心。
公司聚集了一批志同道合的设计精英,秉承「快乐设计、快乐生活」的设计理念,专业服务于地产、酒店、高端会所、私宅等,提供最专业的设计服务。
内容策划 /Presented
策划 Producer:知行
排版 Editor:Tan
校对 Proof:Tan
图片版权 Copyright:原作者
知停而行
客服
消息
收藏
下载
最近







































