查看完整案例


收藏

下载
即便是经过了一轮老旧小区改造,将阳台包了起来,扩容了近 10㎡,这个位于北京二环边上,房龄接近 50 年的小户型,也只有堪堪 46㎡的使用面积。两大两小,老人还要来带孩子,一家五口挤在这样一个田字格里腾挪都费劲,更别提还有一只从小养大的猫了。将 46㎡改两室一厅,满足五口人居住,还要有超大落地窗阳台,功能区当然一样不能落下,设计师如何做到?
项目视频
01 本案设计
亮点 1. 空间华容道,厨房卫生间大移位,让出宽敞客厅;
2. 收纳空间全隐藏,塞下一家五口生活用品还不显乱;
3. 落地窗最大化利用,吊顶巧设计,放大视觉空间;
4. 人有人居所,猫有猫公寓,五口人同宠物乐融融。
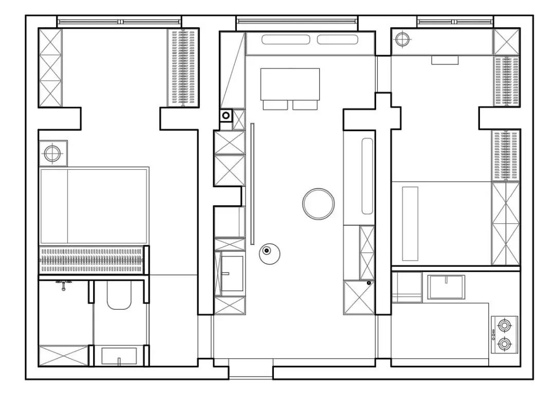
02 平面布局
原始户型是个一室一厅格局,厨卫玄关客厅一应俱全,空间动静分离,浪费面积极少。除了装修陈旧了亿点点,这个户型放到现在的设计里面,没太大毛病。真要挑刺,那就是厨房卫生间在房屋正中央,又因为管道吊顶等原因,使得完成面层高只有两米多一点点。
原始平面问题出在,50 年前房屋设计之初是给小两口住,现在却要承载至少两代四口,这个户型就不再合适了。常驻人口的增多可不像吃饭多一双筷子的事。除了床外,储物、活动、清洁等要素,无一不需要空间,然而空间就这么大,怎么办?
·只能改·要住三代人,那至少要有三个生活空间。而原始户型把客厅算上,也就只有两个。该如何解决呢?我们把眼光放到了卫生间外通向厨房的过道。这间屋子,如果像玩华容道一样,将堵在房间中间的曹操(卫生间)挪到角落,那么它占据的位置,就可以和其他多出来的边角空间一起,组成额外一个大房间。
·说改就改·在合规的情况下,我们对房间进行了布局重整。承重墙将空间纵向分为三份,我们再将每个空间一分为二,按功能区和生活区划分,一共分为 6 份:朝南靠窗的是生活区,自东向西分别是主卧、客厅和次卧,北部则是功能区的三个空间,自东向西分别是卫生间、玄关和厨房。
由此,原本浪费面积的单一功能的走廊、空间分配不合理的客厅和卧室都被重新分配,利用率得到极大提升。
平面设计方案
平面方案里面,值得一提的细节有两点:1. 卫生间设置在远离儿童房的位置。孩子如果要上洗手间,需要从儿童房出来,穿过客厅,经过玄关才能到达卫生间,为什么要这样做?
动线,这是因为男女业主经常上夜班,将卫生间放在远离儿童房的位置,可以避免深夜出门或回家时,洗漱吹头发的噪音影响到老人和孩子的正常休息。
2. 玄关处增加了一处洗手池,算上厨房水池,这个小户型一共有三个水池,为什么要这么做?
三处水池
进入房间后,一共有三个移动方向:向前进入客厅,向左上卫生间,向右抵达厨房。在家人入户并换完鞋服之后,三个洗手池确保了无论去往哪个方向都有洗手的功能,这在疫情的大环境下能最大限度地保证家人安全。同时,因为猫厕所藏身于玄关洗手池下方,在收拾完猫砂盆之后,顺便就能洗手,有助于家人健康习惯的养成。
猫厕所位置
同时考虑到未来二胎长大,早高峰有三人(爸爸、大宝和二宝)争抢卫生间洗漱,两个洗手池可以显著改善这个场景。
03 玄关
除了用木作打造了一组玄关柜,配合玄关洗手池实现无尘入户(做医生的男业主把它叫消杀流程)之外,我们还在玄关处做了一面洞洞板墙,方便小件的收纳,包包、帽子、围巾甚至雨伞都可以临时性地挂在这儿。玄关洗手池旁还装了穿衣镜,方便业主出门前整理衣着仪表。
入户玄关
在靠近厨房的位置设置了蒸烤箱,并通过蒸烤箱将定制木作的食品柜一分为二,上方为人食品柜,下方是猫食品柜。
食品柜·猫公寓·没错,我们把猫公寓也塞到了这个玄关中。房屋原始状态空间杂乱,管线奇多,猫咪在其中活动很容易卡住或者被缠绕,因此上家住户多数时间不得已笼养。
猫公寓,滑动查看改造前上家住户猫咪状态。改造后的空间物品都收纳入柜,猫咪也可以放心在家中活动。而它们活动的中心就是玄关处的猫公寓:玄关入口处是猫爬架和食盆水盆,旁边就是猫食品柜。猫厕所也在不远处的洗手池下方,有活动门板只能猫咪进出。猫的空间宽敞了,人收拾起来也容易。和宠物相关的工作只需在玄关这一个区域就可以完成,更加省时省力。
04 客厅
客厅区域是由两堵承重墙隔出来的,因此我们就围绕着承重墙做文章。
客厅一览
沿东侧承重墙,我们打造了一排收纳柜,三米的柜子分别设置了换季衣柜、洗衣柜和家政柜。同时,每排柜子都安装了柜门,在视觉上显得更加敞亮。业主闲暇时间会看投影,因此仅靠柜门安装了投影幕布,在柜子全部关闭时投影幕布可以降下,配合对面投影组成家庭影院。
东侧收纳柜落地效果
东侧收纳柜设计方案
洗衣柜
客厅南部靠窗的位置,我们让木作定制了卡座榻榻米,除了预留好扫地机器人的仓位外,侧面还给折叠餐桌设计了收纳位置,在不使用餐桌时可以完全收纳入侧面,视觉上和柜子组成一个平面。
卡座落地效果
西侧承重墙业主选择了宜家的折叠沙发床,老人来可以暂住。利用沙发和食品柜直接的位置我们做了半高的小电器柜,业主可以直接在小电器柜台面操作厨房小家电。沙发床上方也打造了半深的吊柜,用以安置路由器、投影仪、dvd 和机顶盒等设备。
折叠床
折叠床收纳
由于设计相较原始户型有较大的改动,天花管道和空调风机设备集中于客厅,再加上有一根横梁贯穿,因此做了较多隐蔽工程。相较直来直去的吊顶形式,我们使用了一些简单的斜面造型,弱化阴角,让天花板光影更有趣些。同时,夜间灯光照上去,斜面漫反射也能让空间的光线更加柔和,提供舒适的光环境。
天花斜面吊顶
05 主卧
常住人口四人,换季被服收储是个问题。垂直空间要留给当季衣物还勉勉强强,我们便把目光放到了水平空间。
主卧地台抬高 30 公分,做整屋榻榻米,储物扩容 3.8m³,接近一辆金杯车的容量。
主卧整屋榻榻米。为了尽可能保证层高,除了卧室入口做了局部吊顶放置空调出风口外,全屋无吊顶,保证了主卧层高 2.38 米,常待也不觉得压抑。
无吊顶设计。同时我们利用原有天花的电源点位安置两盏射灯打亮房间西侧和北侧墙面。东侧墙面暗藏灯带,并用台灯作为氛围光源打亮空间东南角,补足空间灯光之外,照亮房间远角,消除阴暗角落造成的不安感。
无主灯方案。此外,主卧阳台的衣柜下探到榻榻米底部,充分地利用垂直空间,将双层短衣区放在使用便利的中下层。衣柜开放格摆放书籍和音响,是男业主休息的小角落。
主卧阳台东侧收纳落地
主卧阳台西侧收纳落地
06 次卧
次卧做了双层儿童床,为了确保层高,采取局部吊顶的形式,将灯带藏于吊顶内向上照明,通过天花板漫反射形式照亮整屋。儿童床下方选择尺寸合适的二级收纳箱,补充收纳空间,并填满缝隙,减少卫生死角。
儿童床
次卧书桌和柜体结合,深入柜体内部,桌面宽度达到 2.4 米,能实现大人辅导的学习场景,暗藏插座满足照明和上网课需求。
2.4 米书桌
游戏
学习 07 阳台房间位于低楼层,开窗朝南临街,窗外绿树如荫。如果能最大限度地借景,让窗外世界成为小室点缀,那么就可以放大小户型的空间感受,给业主带来更好的居住体验。
家人为此,设计师在设计之初就将主卧榻榻米和客厅卡座与其对应位置的窗台拉齐,有意制造落地窗观感,并为业主更换了更大的窗户,能将窗外美景以更大画幅圈入室内。
榻榻米营造的落地窗感受
更好的风景
这三个区域的吊顶也并没有做到窗边。预留了一部分空间暗藏窗帘盒,让窗帘更自然下垂下,视觉更显清爽。
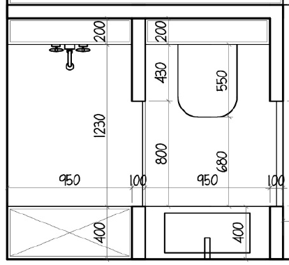
08 主卫
主卫选择了干湿分离,在卫生间面宽比较有限的情况下,将龙头侧装,业主还选择了有抽拉功能的龙头,早起洗头也不受影响。
侧装水龙头
龙头侧装后不占用卫生间宽度,节省出来的空间可以让对面马桶的位置更宽敞些,足有 680mm 宽,上厕所转身等动作丝毫不受限制。设备方面,我们选择了带灯的换气扇,一举两得解决照明和排气问题。
干区尺寸示意
干区落地效果
09 厨房
厨房是标准的 L 型台面,洗切炒动线顺畅,并通过木作打造了充足收纳空间,将食品调料、厨房用具等收纳其间,方便清洁打扫。
标准的 L 型厨房
总结
我们对旧房改造的关注点并不在老房翻新的 before&after。让我们更在意的,是在新的住居需求下,如何将小空间以更加合理的状态交付给业主一家。而这个落地项目,就是我们本次的答卷。
客服
消息
收藏
下载
最近




































