查看完整案例


收藏

下载
苏州中建荷岸晓风高层复式样板间
Suzhou Poetic Palace Showflat
苏州,中国
Suzhou, China
苏州荷岸晓风的高层复式样板间是SWS Group突破样板间设计的一次案例,这是一次带有突破意义的样板房设计,设计团队尝试通过设计干预空间的布局及视觉体验,从而呈现一个具备自身个性的样板空间,也是疫情发生之后反思居所空间的一次设计实践。
人的一生会把大部分时间和理想安放在自己所生活的居住空间里,而近十几年,居所作为都市人最重要的生活场所,风格大多表现得趋同化,多数人最终更愿意选择保守的设计方案,反而忽视了个体的需求,其实居所是应该通过设计来反哺自己,创造更多意想不到的可能性。
项目的设计概念以建筑大师Zaha Hadid的“曲线”为灵感,“曲线”作为重要的视觉线索包裹、贯穿在空间中,打破了对称、端正的规律,取而代之的是一个流畅、韵律、通透的格局。在这里,视线跟随着曲线的起伏变化,徜徉在“流动”的空间里。
曲线在空间中的“运作”也同时带来了化繁为简的效果,勾勒出一个有着优美框架的室内空间,而这样的干净、有序和极简的状态下,也意味着对每一个设计的精准计算,包括室内的软装设计,均需要以定制的方式介入。
例如,一层Mini bar根据空间的条件,做了嵌入式的设计,在细节上也不断呼应着曲线的变化。
在这次案例中,设计团队为户型做了几个关键性的改动,如,一层空间打通了原有空间布局,实现了一个更大的客厅;客厅背景墙的样式突破传统的扁平化,通过悠长的曲线拉伸客厅的空间感;不仅扩充了门厅和厨房,从玄关处的吊顶到客厅的吊顶,都分别做了特殊的开模设计,以尽可能提高层高为前提;楼梯踏步的延伸线条与背景墙巧妙地连接,形成一个圆弧的台面,玄关柜和酒柜也以曲面贯穿相连;在娱乐区,音乐主题的设计强化了律动的概念,空间的布局在富有节奏的韵律中起承转合。
空间设定的居住角色为追求生活品质,关注艺术与时尚的三口之家,对家居也有着自己的审美主见,所以在这次家具的定制上也尝试了大胆地拼配方式,例如客厅的沙发与边几,让不同风格的家具搭配组合,形成一个充满居住者个人审美趣味的生活氛围。
进入二层空间,半开放式的衣帽间最先映入视野,玻璃橱窗的设计消弭了视线的阻隔,一个反传统的半圆式衣帽间散发着女主人个人的品味和性情,让原本只满足储物的衣帽间实现了新的演绎。
遍布于四处的采光设计,为光线不受限制地从四处照射进来,整体二层空间都控制在一个通透的格局和有情调的设计感之中。
主卧打破常规,与衣帽间形成流线型空间,也摒弃了传统的电视柜而使用了智能壁炉系统,赋予了卧室空间别致的情调,床头背景墙也随空间的线条变化做成了不对称的设计。
充分利用过道空间扩大了原有的卫生间区域,让主卧、衣帽间和卫生间都控制在一个流畅而通透的动线中。每一个空间各司其职,分划合理,却相互密切、连贯地组合分布,洗手池、浴缸等形状都经过严格地定制,每一个功能的设计都沿着轴线停靠在属于它们的定点。
儿童房围绕6岁女孩的居住角色的设定,让大胆而舒适的配色把卧室空间带入一个童趣的世界。
将原本的阳台区域改成了书房,为二层增添了一个可以灵活应用的空间。
书房的设计也没有采用传统的书桌和书柜等软装方案,而是提供了一个相对拥有更多留白的多功能空间,居住者可以根据自己的生活方式对这里自由安排。
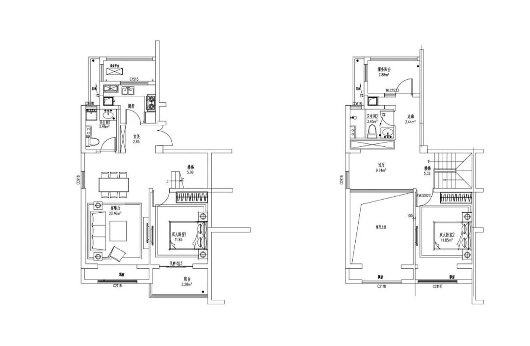
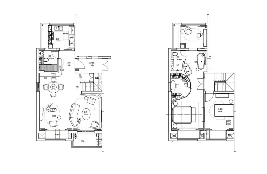
人性化的空间设计会引发人们去思考和回味其中的一个个伏笔,事实上对于SWS Group而言,思考往往比最终结果有着更丰富的意义与使命。FloorPlan 改造前后户型图
▲ 改造前的户型图可以看出原有的空间布局比较封闭,空间感和采光条件都有待提升。
改造后的一层空间打通了原有的布局,实现了一个超大客厅,也扩大了门厅、卫生间等每一个功能空间,让空间功能更齐全,动静分离而互为一体。
Renderings
项目信息
业主:中建东孚
项目地点:苏州
硬装与软装:SWS Group
设计总监:孙炜
硬装团队:朱天雨,庞秀云
软装团队:朱天雨,庞秀云,童思萌
|SWS Group 建筑室内设计
SWS Group 是一家立足于中国上海,在伦敦,阿姆斯特丹和吉隆坡设有分办公室的多元化建筑室内设计事务所,由HD Studio, WS Architects 以及 Yee Home 等多个品牌组成。
SWS Group 提供国际化的建筑、室内、整体规划、平面以及产品设计服务。公司目前的项目涵盖文化项目、度假酒店、教育建筑及高端会所及住宅。
REVIEW
SWS作品:上海外滩花间堂露台酒吧
SWS作品:武汉凤起听澜生活美学馆
SWS作品:上海滨江凯旋门样板房
SWS作品:沈阳联美河畔新城售楼处
SWS作品:丽江俊发售楼处
阅世集的设计库房已经开始上货,点击阅读原文浏览库房货品
客服
消息
收藏
下载
最近
































































