查看完整案例


收藏

下载
精致优雅
阿拉木图ESENTAI CITY住宅区项目
,
总面积372㎡,
由Forms Architects设计。
多层次的设计手法,内敛兼具知性的氛围,赋予品味和独创
性,延展出无限的美感。
客厅大面积的落地玻璃窗,光线充足,电视背景墙以黑色大理石装饰,电视柜和地板都是以木色为主,整体沉稳舒适,同时以深蓝色的沙发搭配,
让空间氛围更具有律动感。
餐厅客厅和厨房在同一直线上的开放式设计,餐桌和地板同样是以原木为主,搭配浅灰色的沙发和造型吊灯,同时使用嵌入式的照明,丰富空间的光景变化,
构成了这种舒适氛围的室内设计
。
厨房
大面积的水磨石地板,结合黑白色调的搭配。橱柜、厨具和各种厨用家电按其形状、尺寸及使用要求进行合理布局,巧妙搭配,使科学和艺术的和谐统一在厨房中体现得淋漓尽致。
主卧床头深色木制板文理漂亮,贵气有质感
,
配上温婉雅致的软性装饰
,让整个房间看起来更加的舒服大气,给人以温馨的生活氛围。
次卧
简洁精雅,
既有现代的时尚和简单,又有古典的优雅和韵味。
儿童房以舒适为主,简洁的配色风格更加实用。
书房延续了整体空间的简约质感,木质床架,光线充足,运用沉静简美、简洁有力的设计语言创造出一个独具厚度的舒适空间。
大型户外露台是最大的亮点,把日子过成诗中所说的形式,在午后享受着懒洋洋的阳光,坐在这里感受到那种惬意的舒适感。
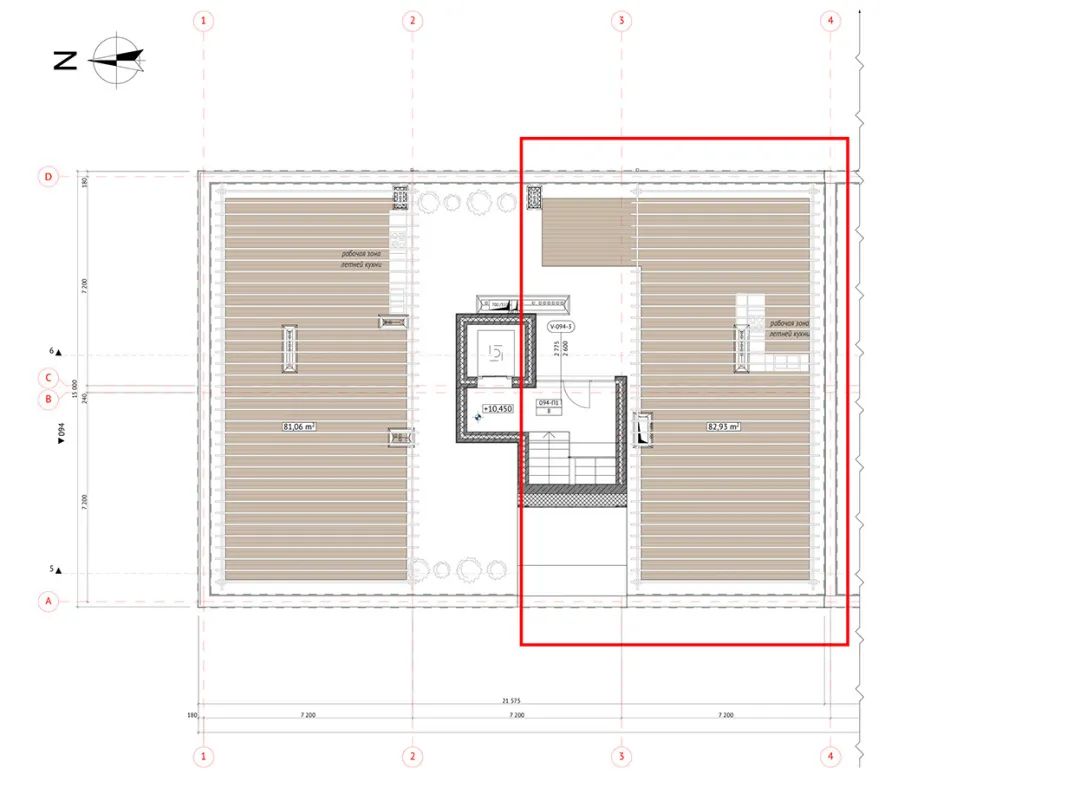
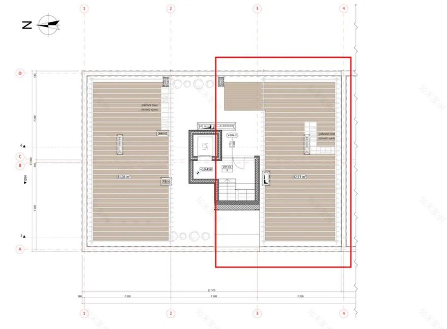
平面图
▽
关于
Forms Architects
Forms Architects,坚持以简约的设计手法和原始自然的材料,以
及装饰细节来凸显质感,让平淡的空间显得更为精致,处处透露着不俗的品味。
其他佳作
Contemporary Bar
124㎡酒吧设计,
Forms Architects根据建筑物的使用性质、所处环境和相应标准,运用物质技术手段和建筑设计原理,创造功能合理、舒适优美、满足人们物质和精神生活需要的室内环境。
客服
消息
收藏
下载
最近






























































