查看完整案例


收藏

下载
在近6米的层高中 置入一个山景秘境 可观 可游 可歇 可眺 移步换景 步步生花 为沉浸式营造提供了一个极佳的空间载体 控制空间的尺寸和节奏 让行走之间享恣意游山之乐趣 展厅内部同样融入了 大量的地域 历史和文化元素 七里半山 七彩祥云 峨壁 古岩 金石名岩等 特色元素让人无限憧憬 完美诠释了自然与艺术的融合
基于岩板跨界运用的深度思考 设计团队还邀请广东非遗文化艺术家陈建珊 创作了 《金石名岩》 既吸收了中国画的传统山水风格 又将青花黄釉 鸡油黄 青冥 色等构筑其间
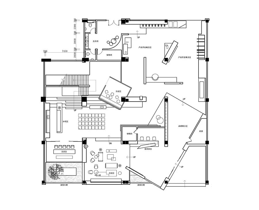
02 EXPERIMENTAL ART 实验艺术 展厅融合了品牌展示区 产品开发概念区 洽谈区等不同功能空间 产品开发概念区遵循道法自然的设计本心 无论是哪一纹理类型的产品研发 石材 纸也好 木 水也罢 皆能于此找到灵感的溯源所在 地面以峨眉山金陶岩板的不同产品铺设 流水 山脉 岩层等丰富纹理自然汇聚天然雕饰 在材料与工艺的媒介实验 用质感美学铺陈出一个实验的艺术空间
03 MAGIC PEN FLOWER 妙笔生花 游览的主旨所在上梯 下阶 回转 驻足 墙体塑就的视线阻挡 营造出明与暗 隐与现的展示之妙 立体盒子轻灵地漂浮于空中 山清水秀依山而上 绿色山石纹岩板以巍峨险峻之姿瞬间 攫取了人们的视域焦点
幻彩不锈钢化身为七彩祥云 登高远眺 错落的石块装置与户外的景致遥相呼应 恰若半山腰停驻的小景 供休憩之用的小亭若隐若现 闲坐其间
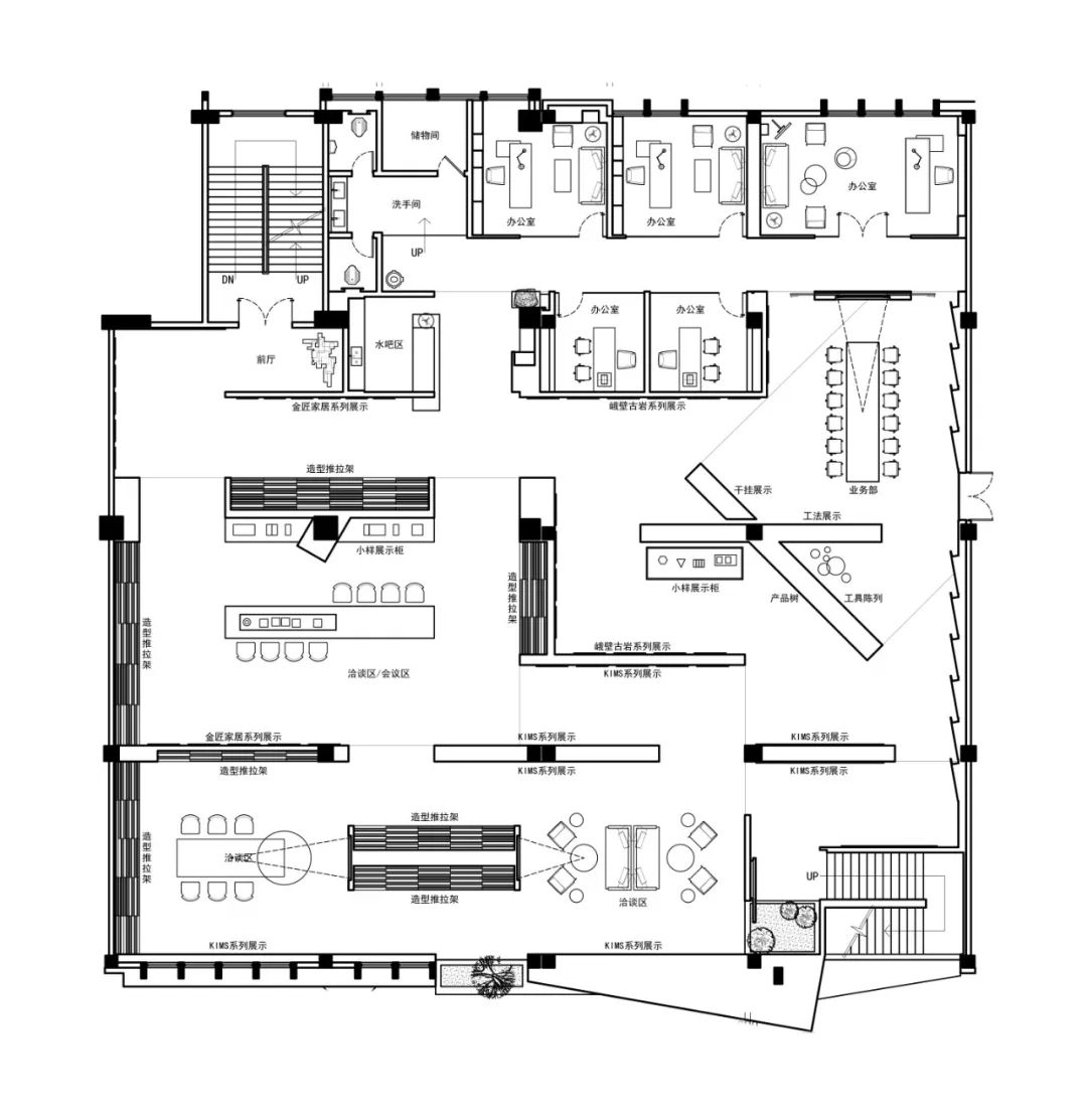
04 MERGE TOGETHER 场境融合 - 二层为峨眉山金陶岩板的产品运用展示区 聚合了客厅 卫浴 餐厅等不同的展示场境 它既为经销商模拟出终端展厅 也为工程板块高端家装板块预留出展陈空间 呼应了岩板营销体系的发展态势 无论是空间营造还是软装配饰 设计团队都恪守峨眉山在地文化的烘托和打造 一场在地性的文化和商业的尝试结合
三层为产品选材区和办公区 岩板超大尺寸的选材墙 让每一次的驻足都能自成一景
05 ANALYSIS DIAGRAM 分析图
客服
消息
收藏
下载
最近

































