查看完整案例


收藏

下载
南立面概览 © 章勇
感谢
上海交通大学设计学院奥默默工作室
江川路街道电机片区是一个典型以工薪阶层老年人为主的大型居住区,存在如部分公共服务设施荒废、适老化设施不足、老年人的餐饮问题无法解决等问题。在前期广泛听取周边居民及居委会等管理部门的相关意见后,确定建设老年社区呼声最高的“社区食堂”,为避免单一的餐饮功能产生空间浪费,本项目将提供一个行为交织的多义空间,同时满足老年人的精神需求。
▼项目鸟瞰 © 章勇
▼从河岸看建筑 © 上海交通大学设计学院奥默默工作室
▼路与桥位于项目的南侧 © 章勇
从老年人步行全流程进行适老化改造,在关键部位设置社区慢行系统、全场地扶手系统、全场地地面导视系统,同时也在小区楼道内部做了无障碍改造试点,满足其日常性外出辅助的需求,保护老年人不受意外伤害。进行社区食堂的精细化设计阶段,在煤气站的结构限定内重新进行空间梳理与划分,旨在充分回应场地周边景观道路资源。
▼由道路看建筑 © 章勇
▼南立面概览 © 章勇
建筑场地北侧窄边朝向围墙,东侧长边仅面向居住区开放,南侧窄边最公共,路桥正对其南面;最有景观价值与公共性的西面,却又受限于西晒,玻璃窗不宜开过大。在本项目中设置了三次转折,从一层主入口进入穿过室外连廊;转向进入到西向室外活动区;最终通过嘈杂的城市环境进入温暖的社区食堂内部。
▼东侧长边仅面向居住区开放 © 章勇
▼东侧主入口 © 章勇
社区食堂不仅可以具有日常性的餐饮功能,也能满足非日常性的唱戏、演讲等老年人喜欢的活动,进一步弥补周边住区内外空间类别乏善可陈的缺陷。在老年人的漫游全过程中,我们不仅设置了全套的适老化辅助设施,并且对于沿路径过程中的景观也进行了相应设置,旨在丰富沿途的空间体验。
▼食堂室内空间概览 © 章勇
▼温暖的社区食堂内部环境 © 章勇
▼厨房与取餐处 © 上海交通大学设计学院奥默默工作室
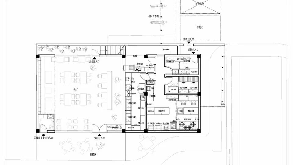
项目图纸
▼平面图 © 上海交通大学设计学院奥默默工作室
▼剖面图 © 上海交通大学设计学院奥默默工作室
项目名称:宾川路502号悦享老年食堂
设计方:上海交通大学设计学院奥默默工作室
公司网站:
项目设计 & 完成年份:2019年12月到2020年7月
主创及设计团队:张海翱、李迪、徐航、孙佳颖、渠基建
项目地址:上海市闵行区江川路街道宾川路502号
建筑面积:232m²
摄影版权:章勇
合作方:北京中元工程设计顾问有限公司
客户:上海液化石油气经营有限公司
客服
消息
收藏
下载
最近














