查看完整案例


收藏

下载
高级
别墅
MONO architects新作,INFINITY VILLA是一个私人绿洲,与城市的喧嚣隔开
,
设计师采用了极简主义的方法,直达重要的核心: 每个房间的美丽景色。
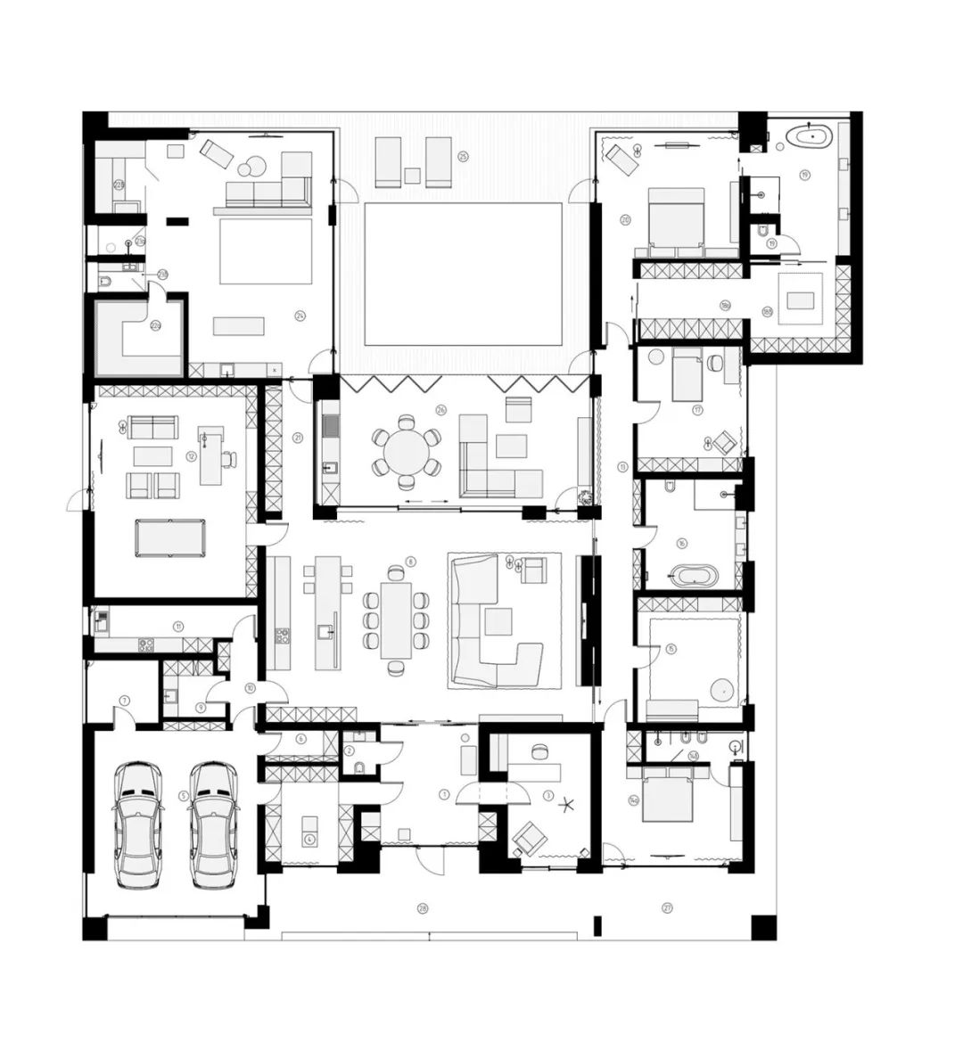
平面图
▽
这座占地725平方米的住宅与自然环境保持紧密联系,
从住宅的入口到相邻的房间,
无数美景尽收眼底。
除了一整套乡村别墅的房间外,别墅还有一个家庭温泉浴场,配有大理石浴室,盐蒸汽浴室,按摩浴缸和一个独处的空间。
“回到有禅意的家” 这是设计INFINITY VILLA时所使用的口头禅。灵感来自丰富的松树林景观和自然景观构成,这个家体现了自然之美。
房子有三个内部区域:厨房,客厅,饭厅的日间区域,可使用带烧烤区的露台,由于采用了折叠式玻璃隔断,可以在此舒适地度过时光,设有三间卧室和一间卧室的夜区游戏室,带土耳其浴室的家庭水疗中心,盐桑拿浴室和带按摩浴缸的休闲区。
房屋配备齐全:两车位车库,厨房,洗衣房和第二个厨房。每个房间都经过精心设计,以提供舒适,舒适和统一的氛围。中性色的自然色调在整个别墅中占主导地位,使用天然的装饰材料:石材,玻璃,贴面墙板和Weitzer品牌的德国镶木地板。家具,水暖,照明和装饰,全部由一些世界上最好的品牌和质量可靠的品牌设计。
宽敞的厨房配有Minotti沙发,大理石贴面餐桌和Poliform椅子,Minotti茶几和Midj酒吧凳。从厨房可以进入露台,您可以在露台上花时间在Varaschin沙发上看书,或者在Minotti桌上用餐时与朋友举行烧烤派对。
主卧室配有Giorgetti床,Poliform长凳,Minotti边桌,茶几和Poliform扶手椅。所有管道均由Cea提供,Flos和Davide Groppi设计的装饰照明,卧室和起居室的窗户均由独家的Dedar纺织品制成。
别墅的窗户给人与自然一体的感觉,目的是提供整个房屋的清晰视线
,
居民有机会享受户外的自然通风,同时仍能保护自己免受蚊子和其他昆虫的侵害。
客服
消息
收藏
下载
最近










































