查看完整案例


收藏

下载
FASHIONABLE ROMANCE
OF THIS ARTICLE © MILLO CASA
本案把东方哲学与艺术融入设计之中,摩登东方用时光的痕迹刻画出温润与澄静,艺术表达生活和对细节的精到把握。它不拘于中式风的浓墨重彩,而是在传承中国传统文化精髓的同时,吸纳现代生活的主流。在传承东方美学框架之上,在东西方文化碰撞中,我们看到,一个精睿阶层,他们有温文儒雅的礼度,独具文化鉴赏力和审美力,怀抱对过去的重温与铭记,怀抱对未来的畅想与人居探索的执念。
客厅 LIVING ROOM
新中式风格承载着中国传统文化的精神、气质神韵,在追求朴实安宁的同时,为生活营造出一个平和、轻松、写意的港湾。客厅整体风格大气简雅,低调却不失人文底蕴。
The new Chinese style carries the spirit of Chinese traditional culture, temperament verve, in the pursuit of simple and peaceful at the same time, for life to create a peaceful, relaxed, freehand harbor. The whole style of the living room is simple and elegant, low-key but without losing the cultural heritage.
亚克力金属灯饰如云如松,线条简洁分明,勾勒出新中式独特的诗意美学生活。莹白石狮相伴而立,红枫簌簌摇曳,典雅气韵十足。
The acrylic metal lighting is like clouds and loose, with simple and clear lines, outlining the unique poetic aesthetic life of new Chinese style. Ying bai shi lion accompany and stand, red maple swaying, full of elegant charm.
餐厅 DINING ROOM
餐厅在极大程度上满足了中式的对称美学,同时注入现代金属元素,两抹朱红分呈两边,将一幅山水绵延的水墨丹青藏纳其间。冬青红果意喻圆润美满,红火相伴。银灰色花瓶采用流畅的曲线勾勒出柔美饱满的造型,简约素雅的装饰让空间随之静谧,身心享受安静惬意的生活,满室风雅长存。
The restaurant to a large extent meets the Chinese aesthetic of symmetry, while injecting modern metal elements, two strokes of scarlet on both sides, a landscape stretching ink and blue hidden in the meantime. Holly red fruit meaning metaphor round and happy, red accompanied. Silver gray vase uses smooth curves to draw the outline of the beautiful and full shape, simple and elegant decoration makes the space quiet, body and mind to enjoy a quiet and comfortable life, full of elegant forever.
主卧 MASTER BEDROOM
主卧空间利用简单利落的线条与低饱和度的简雅灰,打造出一间清逸明雅的温馨居室。亦古亦今中展示出家居家具的层级之美。绵软素简的床饰与水墨山水画地毯构造出温润如玉的自然歇息之居。
Master bedroom space uses simple and agile lines and low saturation of simple and elegant gray, to create a clear and elegant warm bedroom. Also in the ancient and the present show the beauty of the hierarchy of home furniture. The soft and simple bed decoration and the ink landscape carpet create a warm and jade natural resting place.
次卧 SECOND LIE
次卧在延续主卧的风格上更添几分隽永之风,红蓝点缀出空间不一样的古典风情。圆形艺术装饰画呈现的静默山水绵延不绝,金属镶边让古今艺术达到融会贯通。木质地板与纯黑大衣柜,都为空间增添几分稳重非凡气质。
Second lie in continuance advocate lie on the style that lie more the wind that adds a few minutes meaningful, red blue dot bead gives the classical amorous feelings with different space. The circular art decoration painting presents the silent landscape is continuous, and the metal edge enables the ancient and modern art to achieve a comprehensive study. Wooden floor and pure black wardrobe, add a few minutes for the space stable and special temperament.
儿童房 CHILDREN ROOM
以音乐世界为主题的儿童房童趣存真,浅色系作为整体空间的基底,海蓝色彩的点缀宛如跃出海平面的鲸鱼,活泼可爱且趣味性十足。传统床头灯与现代化主灯形成恰到好处的古今相融,用光传递新的生活美学。
The children room tong qu that is a theme with music world is true, light color fasten the base that regards integral space, the ornament of aquamarine colour just like the whale that jumps sea level, lively and lovely and interest is dyein '. Traditional bedside lamp and modern main lamp form a proper blend of the ancient and modern, light transfer new aesthetics of life.
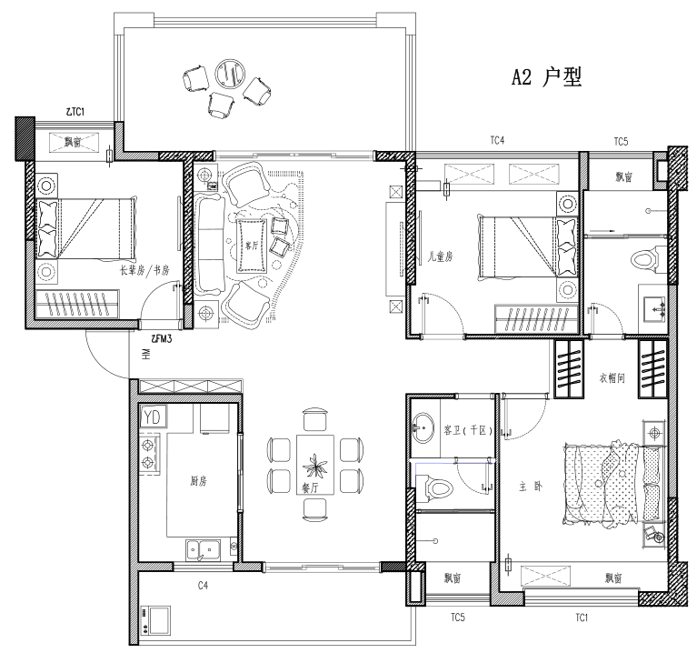
【平面设计图】
PROJECT INTRODUCTION
项目名称
|华一美达家园新中式
Project Name | Hua-meida home new Chinese style
项目类型
|样板间
Project Type | Prototype Room
软装设计|
米洛映象
Soft outfit design | Millo Casa
项目地点
|湖南郴州
Project Site | Hunan Chenzhou
项目面积
|131.8㎡
Project Area | 131.8㎡
米洛映象,是一个以设计为驱动力的高端软装美学品牌;专注为精品私宅、别墅豪宅、样板间、售楼处、酒店会所等空间,提供深度、全面、专业的全案软装设计与实施落地服务。公司成立以来,已在全国打造了诸多美好生活空间,致力于成为中国软装设计第一品牌。
—
END
—
壹新设计·新作 / 现代中式样板间·山水画境 诗意隽永
田艾灵新作|当代中式,君子如玉「星作」
新中式营销中心:古今相持,文心画境丨 明德设计 x 招商 「星作」
新中式轻奢,专属中国人的优雅与奢华
客服
消息
收藏
下载
最近





























