查看完整案例


收藏

下载
©Andrew Pogue
One North是一个创新的商业开发项目,其设计有一套明确的价值观,涉及社区、环境和复原力。该项目在一个棕色场地上提供办公和零售空间,重点是最大限度地提高能源效率,减少浪费和消耗,并与社区共享资源。再加上对社区价值和合作的坚定承诺,One North代表了一种完全不同的商业建筑方法。
©
Andrew Pogue
©
Andrew Pogue
©
Andrew Pogue
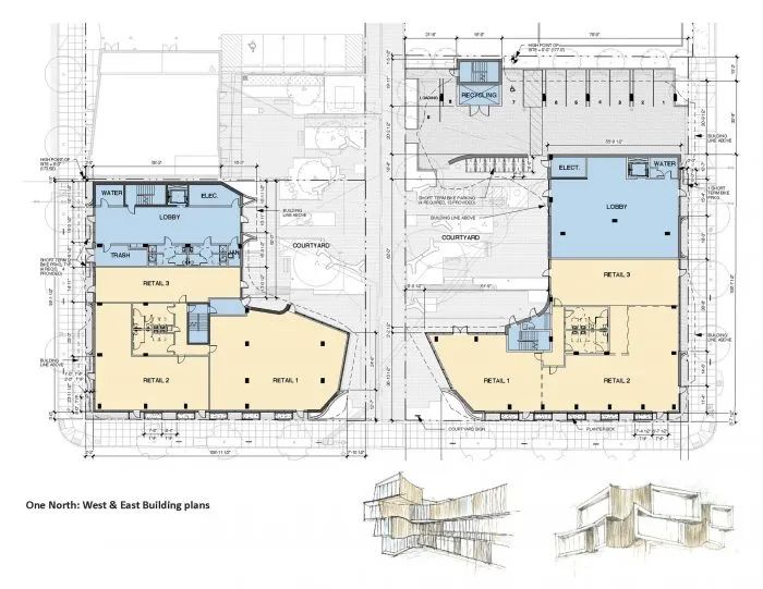
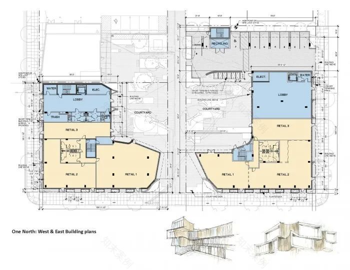
该项目由三座带有底层零售的多功能办公大楼组成,围绕着一个新的14000平方英尺的庭院,旨在创造一个充满活力的社区空间,供租户和社区使用。卡鲁纳东楼(4层)和西楼(5层)的建造目的是通过融合领先的战略来实现卓越的能源效率,其模型比俄勒冈州的典型新建筑要高效50%。它们的效率也有望比美国平均办公建筑(包括现有建筑)高出60%。
©
Andrew Pogue
©
Andrew Pogue
可持续发展战略包括一个超级绝缘的气密性建筑围护结构,外部遮阳,以及当地采购和可持续收获的木质壁板。设计团队还实施了高效的机械系统和几乎消除了热桥。卡鲁纳东楼和西楼都有用于现场发电的光伏阵列(71千瓦),为了提高能源效率,门窗都有热断裂,建筑物的所有侧面,包括地基都有隔热层。
最小的现场停车位鼓励公共交通、步行和骑自行车。Instrument是一家独立的数字创意机构,占据了东楼的2、3、4层,底层是零售店,西楼是几个商业办公和零售店的所在地。
©
Andrew Pogue
©
Andrew Pogue
©
Andrew Pogue
©
Andrew Pogue
©
Andrew Pogue
©
Andrew Pogue
©
Andrew Pogue
©
Andrew Pogue
项目图纸
▲平面图
▲平面图
▲平面图
▲立面图
项目信息
建筑师:Holst Architecture
面积:42940 m²
年份:2015年
照片:Andrew Pogue
制造商:Dryvit, Kawneer, Prosoco, Timber Pro Coatings
其他参与者:Karuna Consortium, Froelich Consulting Engineers, KPFF Consulting Engineers, McKinstry
城市:波特兰
国家:美国
赞
客服
消息
收藏
下载
最近






















