查看完整案例


收藏

下载
作为维系地方社区的场所,澡堂一直受到人们的爱戴,如今浴室的拥有率超过95%,虽然有很多忠实的粉丝,但实际的顾客却减少,关门的澡堂不断。其中,这一黄金汤特意选择了翻修来决胜负,让我们在设计上帮忙。
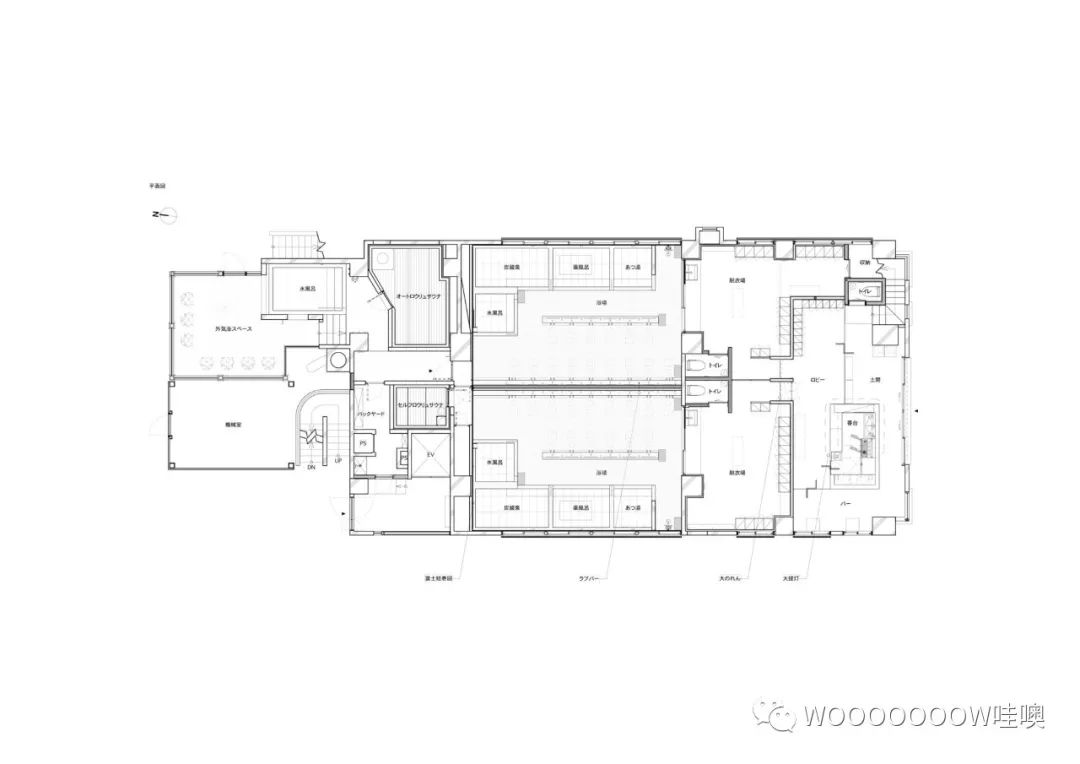
因此,首先为了担负连接现代社会的作用,将既存的浴池直接按原来的大小不再使用的焚烧场、库存、机械室等有限的场所再利用,啤酒和桑拿浴+外气浴的添加新的功能,年轻情侣或地区聚集的同伴们回来等工作场所设定的。
Architect: Jo Nagasaka / Schemata Architects
Project team: Kotaro Shimada
Produce / Graphic design: TAKAHASHIHIROKO
Structural Consulting: ladderup architects
Number of stories : 6 floors above ground / 1 floor under ground
Total floor area: 1113.34㎡(1F 269.72㎡)
Type of structure: RC
Completion: July, 2020
Opening: August, 2020
Photo:Yurika Kono
客服
消息
收藏
下载
最近

































