查看完整案例


收藏

下载
【项目名称】:Passo Novita
【项目位置】:日本·千叶县
【合 作 方】:LGROW lighting planning room
【项目面积】:497.0㎡
【项目时间】:2015年
【创意阐述】
这是将一家意大利餐厅转移到跨越 Yachiyo Midorigaoka 车站的一家商业综合体的设计项目,位于东京郊区地带,出自 Oska&Partners。餐厅的目标是为人们提供一个空间,拥有多种不同的个性,以适应每个顾客的需求。
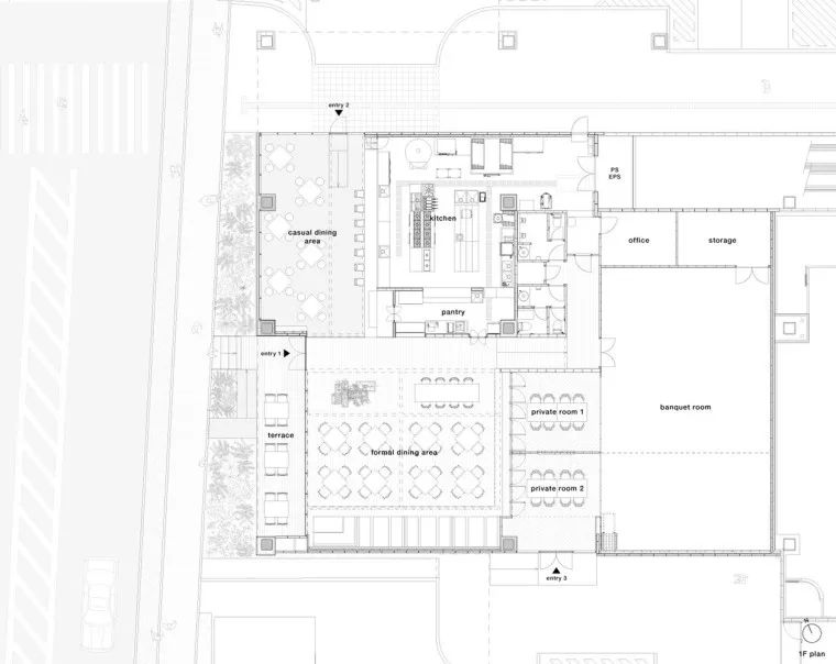
【设计图纸】
【空间简述】
餐厅和宴会厅有时会来举办人数众多的聚会,最多时可容纳250人。考虑到这点,通过保持固定墙最低限度的使用,我们利用现有的长柱距大空间,设计了一个宽敞的餐饮空间,用灯光和拼块天花板来进行分区。
没有墙壁的宽大场所有时让人觉得不安。
为了避免这种情况,我们用天花板和灯光分区来设计餐饮空间,从而产生了舒适的、对规模和温度敏感的餐厅,又不破坏开放空间的优点。
在桌子上方,悬挂的“墙”附着在拼块天花板上,降至离地板2.2米的高度,将餐饮区分成八个部分。
每个天花板块的高度和形状经过仔细设置,来配合藏在原来天花板之后的房屋的基础设施。
拼块天花板的装饰颜色和照明也是多种多样的。
尽管天花板下的餐饮区实质上是一个空间,八个分开的区域根据每天的时间和光线显示各种各样的面貌。
层层重叠或者模糊桌子之间的边界,光线和时间创造了充满多样性和深度的房间。
我们的目标是提供不同个性的空间来适合每个客户的需求,不管其年龄和年代,这使得餐厅有很多回头客。
自从开业以来我们已经多次拜访餐厅,看到餐厅受到所有年龄段客户的喜爱,这正是我们所设想的。
我们确信,这个有20多年历史的社区餐厅将不仅是吃饭的新地方,而且作为当地社区的新基地,将成为公众喜欢的地方。
时
系删除
----------------------------------
:
---------------------------------
客服
消息
收藏
下载
最近























