查看完整案例


收藏

下载
1966年成立的杭州电焊条厂,于2015年引入创新转型机制,改造而成凤山拾遗创意园。整个园区充满浓郁的文艺气息,而我们设计的店铺位于园区东南门入口处,业主把闲置的保安亭一并租下,计划将这里打造成“欢牛蛋糕屋工厂店”,吃下午茶的休闲打卡圣地。
我们去现场勘测发现原厂房的楼梯、外墙无法拆改,整体的采光,通风,功能,动线都受到了极大的局限。我们经过多次沟通,商讨后确定把三层厂房做了功能规划:一层主零售,二层主工厂,三层主休闲。设置客梯将三层联系互动起来,增设货梯将工厂和零售区紧密对接,提高送餐效率。除此之外,把保安亭改造成水吧亭面朝马路,满足客人饮品需求的同时,巧妙的把行人引导进来选购蛋糕点心。保安厅与主楼结合在一起形成了风雨连廊的灰色空间带,模糊了室内外的空间,让空间变得更加自然,包容。
▲外立面结构分析图
▲空间轴测图
我们认为建筑无论外空间或内空间都有它的情感。空间的使用者理解感受空间历经岁月而积淀的情感,重新赋予空间新的表情。开始设计的时候,我们发现楼梯核心筒不能拆,承重墙和外立面墙体形成一种像蛋糕盒子的体量感。
因此,我们把蛋糕屋的外立面改造成蛋糕盒的形式,将室内的楼梯核心筒塑造成铺满白色奶油的蛋糕胚,空间里的人和物件,象征着蛋糕的果粒,人和空间交融在一起,赋予空间新的表情。进入空间的那刻开始,层层拆开蛋糕盒似的惊喜感,搅拌器,奶滴,糖珠融于白色的空间里,让空间像奶油一般得温柔,人,物,被温柔的包裹在“蛋糕”空间里。
<奶花>
<奶滴>
<糖珠>
我们将必要的通道及办公区留出来,其余空间留给了工厂,弱化二楼商业空间,营造一种先抑后扬得空间体验,引导客人踏足三楼。
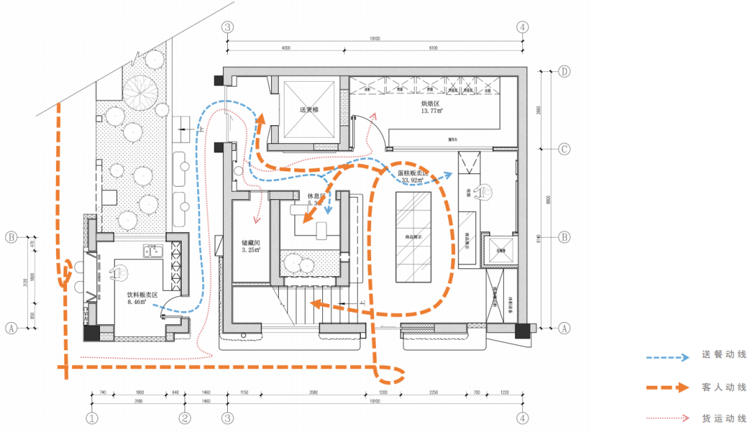
商业空间最重要的就是动线的设计,它看似无形却又定义了商业行为的有效性,及效率。
一楼分为外部动线和内部动线两部分,考虑外部动线是因为一楼的空间有限,需要烘焙区,楼梯间的隔墙及楼梯还有电梯占用了大部分空间。所以我们将水吧,饮品的部分考虑在独立的保安厅位置,然后改造成水吧亭的概念,同时它又面向马路,如此这个空间在不做招牌的时候就已经起到引流导客的作用。
因为是工厂店所以我们有个货物运输的通道。功能区规划实现最高效,便捷的运动路线是我们的侧重设计点。
▲动线图
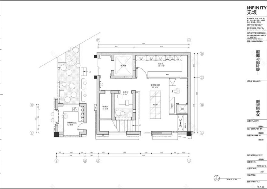
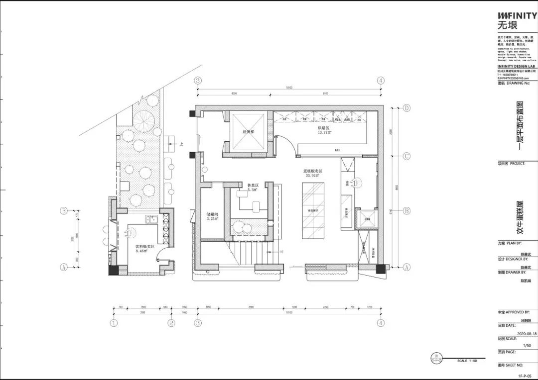
▲平面图
项目名称:欢牛蛋糕屋(馒头山店)
项目地址:杭州上城区凤山拾遗创意园
项目设计:无垠设计研究室
设计主创:陈善武
设计团队:叶阳阳,陈凯琪,金马
陈设设计:陈善武,李静文
项目摄影:瀚默视觉-麻一高
完工时间:2020年7月
主要用材:艺术涂料,蜂窝阳光板,芝麻白荔枝花岗岩
陈善武
杭州无垠设计创始合伙人
无垠设计研究室
成立时间:2018年
90后设计团队
致力于建筑,空间,光影,肌理,人文的设计研究。
坚持努力创造有温度,有情感的叙事空间。
Founding Time:2018
90s design team
Infinity design is Committed to the design and research of architecture, space, light and shadow, texture, and humanities.
Keep working hard to create a narrative space with temperature and emotion.
NEW ARRIVAL
【阅世集的设计库房】上货啦!
客服
消息
收藏
下载
最近















































