查看完整案例


收藏

下载
【项目名称】:晟永兴烤鸭/五道口店【项目地点】:中国·北京【项目面积】:610平方米【设计单位】:北京蕴形于间工程设计咨询有限公司【主持设计】:吴蕴鹏【项目摄影】:本末堂
【创意说明】火焰,让食材有了温度,让食客有了回味的空间;光影,让空间有了变幻,让时间有了传承的更迭;何谓经典,如何诠释经典;融合、升华、交错,在层次和进阶中通过空间的穿插和元素的解构来表达;时间的流动,将不变与万变在一个凝聚点交汇;有了烟火,才叫人间。
对于北京最具代表性的传统美食,烤鸭是被解读最多也最脱离不了本源的一道菜。烤鸭本身自带的烟火气,传递的就是一种炙热,同时也成为一种可创造的接纳感。
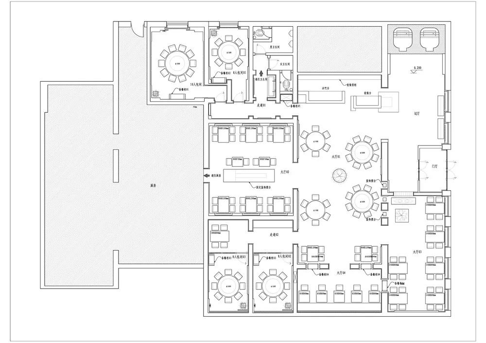
【设计图纸】
【空间详述】迎宾区移步借景,中式传统的翠柏碧绿和炙热红火铺陈在眼前,人、自然、光三重情感的呼应。青阶白墙,吧台山水纹氤氲缱绻,空间的色彩在火红与黄铜的韵致中晕染开来。∇主入口
∇ 迎宾区
∇ 前厅入口
设计美学呈现生命力的变量,行为入画,在变与不变之间两极流动,让空间的美感更有趣。
∇ 明档烤鸭炉
对于烤鸭店的改造,传承经典,又对经典注入现代的灵魂升华,让传统美肴与现代艺术于空间中融合,传递人间烟火的故事,是本次设计的终极主题。
∇ 前厅
在空间演绎上,设计师借鉴中式庭院概念,以大量留白的墙壁,通过顶部天窗抛洒下的光,营造一种半通透质感。设计师用光的变换讲述一天、一年,当光透过天井垂撒下来,映照在室内陈设周围,并随着时间的转换变换不同的角度和映像,光与影的交织,给无形的时间赋予“可视感”。
∇ 就餐区01
红与火所代表的中国传统思绪,将内心的欢愉和包容浑然托出。
红色细线解构成装饰符号铺满整个屋顶,灵感来源于传统流苏。
红色丝线将火的跳跃感和生命力用具象的方式表达,虚实冷暖都在对比中感知。
∇ 就餐区02
深入的幽蓝之气,将潮流的锐感引入传统,柔美中带着坚硬的质感,行云流水,在光影下相互交叠,使空间灵动而富有诗意。
就餐区03
中式厅堂最典型的符号,中轴线两边对称,将敦睦井然的气场,在通透和进深中铺陈,用光的引入,让空间的层次分明,在深处凝聚一个集中点,所谓风水,正是如此。
∇ 就餐区01
∇ 8人VIP包房
古木的幽谧与垂纹玻璃的精琢,从材质上产生碰撞,使过去与现在,光和暗这些对立元素叠加出微妙的状态。
∇ 就餐区04
穿过廊道和前厅,多重色彩和材质以写意手法在纯白色的背景之间,透过光映衬出象征生命的纹理和质感。
∇ 就餐区04
∇ 8人VIP包房
作为空间分割媒介,半透明的窗刚好将室外空间的树竹光影流动巧妙托出,虚实相生,心生意境。
∇ 8人VIP包房
生命力的若隐若现,让空间有了幻想的光。树影婆娑透过纸幔,仿佛水墨质感揉进心间。
∇ 8人VIP包房
朱红色与金色线条的碰撞,形成视觉上的色彩调动,让私密空间更具有情绪的流动。
∇ 10人VIP包房
诗酒趁年华
让光照进现实
保留经典 难以磨灭岁月的痕迹
空间让传承有了新的欢愉
设计的生命力
有了脉动
更有了传递的力量
∇ 卫生间洗手池
时系删除
客服
消息
收藏
下载
最近






























