查看完整案例


收藏

下载
地点:中国云南省丽江风景区(玉河广场)
项目面积:418平方米
楼层数:2
业务属性:餐厅
客户:YUMCHINA
材料:3种当地的编织线,老榆木板,灰色水泥瓦,红灰砖、黑色金属
设计公司:ROOMOO
设计团队:ROOMOO
影印权:ROOMOO&skylook(摄影师)
该项目位于中国西南部的纳西族聚居地——丽江。作为中国传统建筑中的项目所在地,设计以传统建筑语言的转型为中心。
这家必胜客餐厅的设计灵感来源于20世纪50年代当地独特的手工编织结构,其特点是编织结构的当代翻译和极简主义结合的复古美学。空间以原有的木质建筑结构为主,以自信、沉着的姿态,拥抱了编织结构的新的现代转型。
事实上,局部织物和图案的使用建立了与局部敏感性的联系。白色和黑色是空间中使用的主要颜色,用来区分现代和旧的感觉,但除此之外,它们之间还增加了另一个灰色层次,作为现代化最经典的作品和带来更多有趣的记忆点的代表。
采用一系列的杀虫,防腐,防水处理方法,使原建筑材料、木梁、柱结构在延长使用寿命的同时,能反映出原有的自然状态。在织物结构研究的基础上,增加红、黄、蓝三种颜色的线与不同的顶棚梁连接,形成一层顶棚三种颜色线对应的织物带。由当地织物拼装而成的彩色品牌标志位于一个线组端点上,用于引导顾客从底楼到一楼。
一系列的交叉模式赋予空间一种当地熟悉的细节感,而竹子和砖墙的广泛使用是一种很好的像素化展示,给人以编织过程的印象。 楼梯由当地的老榆木板制成,楼梯采用原木色的饰面,以加强两层楼之间的关系。
我们的目标是,当顾客踏上木地板时,通过听到“嘎吱”的声音,唤醒他们对童年的记忆。
▲分析图
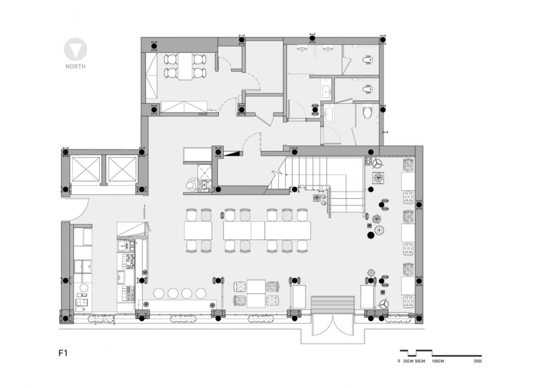
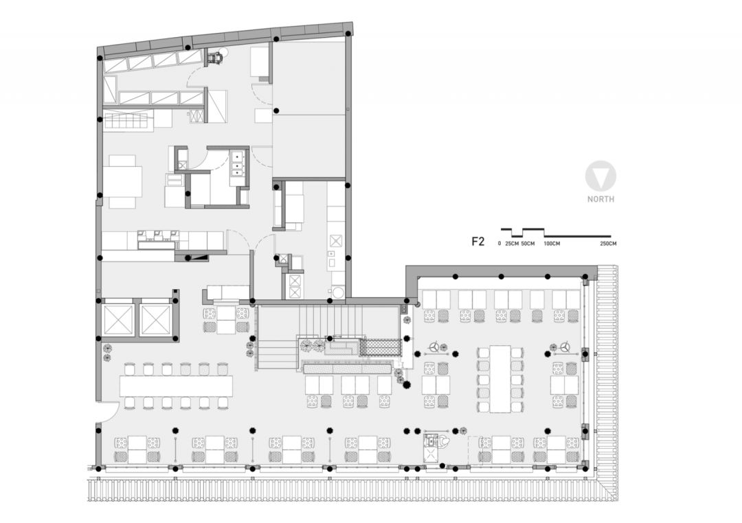
▲平面图
客服
消息
收藏
下载
最近


















