查看完整案例


收藏

下载
元禾大千
长沙宝能公馆
位于浏阳河西岸
与市政公园一面之隔
,项目延续山林水系的自然脉络,是繁华都市中难得的低密墅居。
在这样的好境中,元禾大千认为好的设计就是将室内与环境深度融合再创作,打造人与空间、与环境的和睦关系。
△图片源自网络
今下因自然生情的创作多是表现温婉、柔和的调性。如何更深度地展现自然的内涵,诠释最原始的生命力,我们在奢华的本质上找到突破点。设计师不加掩饰地将自然的野性面展现,这种比朴实奢华更有张力的狂野之美,从物质到精神层面匹配高端生活格调。
室内主色由温厚大地而来,我们将野奢美学融入室内,营造菁英人群梦想中的生活。
始于自然,忠于生活
装饰空间与人打扮一样,空间性格是什么,它适合怎样的搭配,一切都基于其本身。
室内的地板与墙面大理石奠定了都市野奢的基调,陈设设计融入富有层次的大地色,搭配以皮革、绒面、镜面等丰富的材质,营造出灵动逸趣的生活场景。
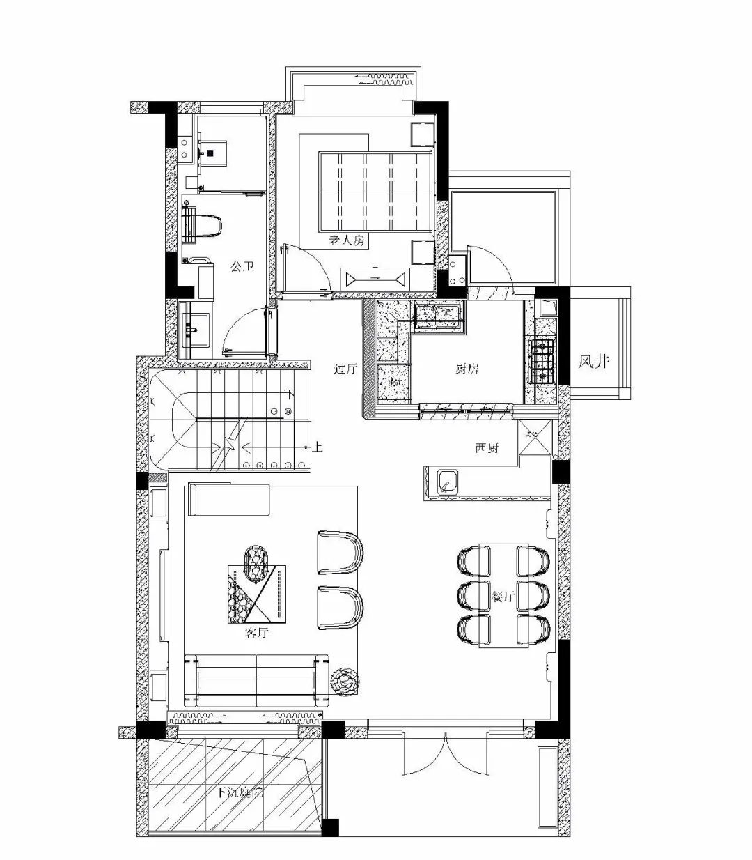
△一层平面图潇洒笔触,绘制自然之美
广袤天地的原生色彩最是能给人安全感。卧房床头两侧褐茶色大理石由转角形式的围造,像是大地母亲的环抱,睡眠自当安心。
设计师在床品与地毯的织物上选择皮毛质地,它们与墙面硬朗的触感纵横交织,唤醒自然情致,治愈人心。质地间的对垒使得整个空间扑面而来一股原始的自然气息,进一步加深都市野奢的气质。
每个空间都或多或少地点缀了动物图腾,粗狂的纹案附着在柔和的丝绵材质上,也是一种冲击。在这种反差对撞下,空间碰撞出别样的原生野趣,淡化了生活场域固有的既定。
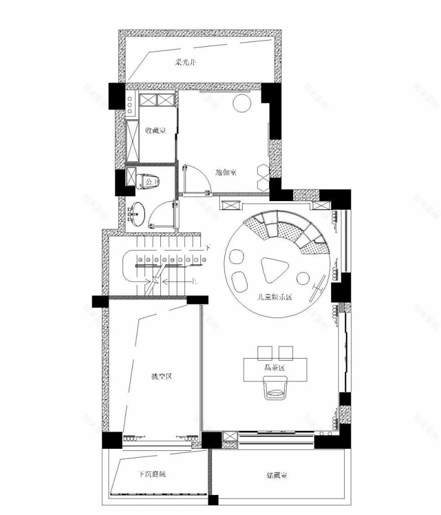
△二层平面图
慵懒假日 宅家的乐趣
「自由随心」是野奢的灵魂之一。
宅家度假是每个都市人心神向往的生活状态,我们把家打造成趋于自然的模样,同时兼具生活功能性,模糊城市与野外的界限,让居住者宅在家中享受慵懒假日。兴趣爱好是这两层的设计原点,孩童与成人的喜好集于一室又各自有序陈列,自由可变的模式消除辈分之间的距离,亲子趣味互动可收可放。
墙面灰色大理石搭配的挂画,营构远山近马的悠然意境
△夹层平面图
设计不仅要承担美的责任,更要关照每一个居住者的内心。
娱乐区域延续整体空间色彩,轻松惬意的家庭氛围流动至此,实现自然与生活的无间交融,梦想中的住宅不过如此。这般经得起推敲的好品味,以完整的场景感释放着纯粹的天然力量。
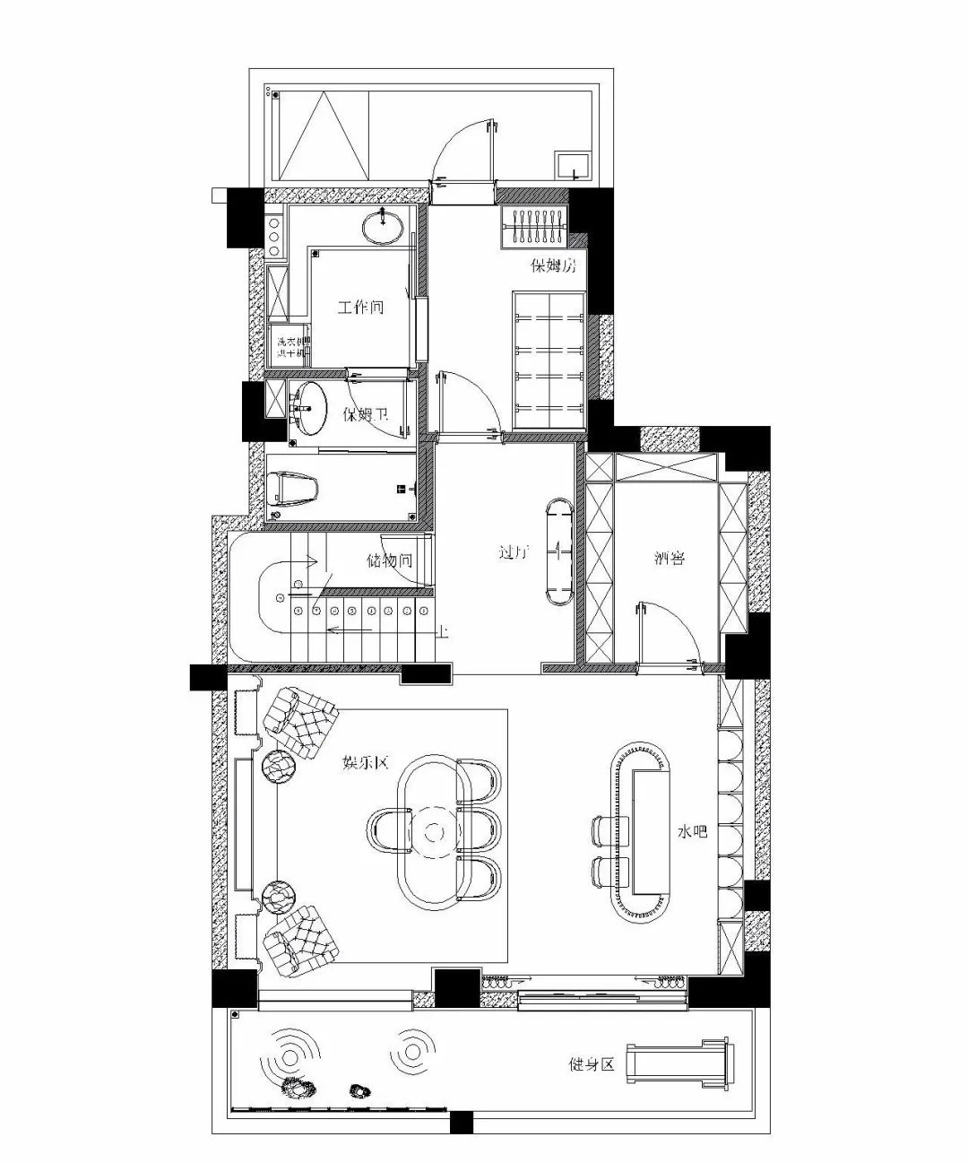
△负一层平面图
项目信息
项目全名:宝能公馆下叠别墅样板间
项目地址:湖南长沙
软装设计:元禾大千
硬装设计:奥迪室内设计
设计时间:2020.06
完工时间:2020.09
空间面积:310㎡
特别支持:深圳节奏置业有限公司长沙分公司
摄影团队:三棱镜建筑景观摄影
元禾大千,是一个以艺术为驱动力的软装设计品牌。专注于售楼中心、样板间、酒店、会所等公共空间,以深度、全面、专业的态度提供从空间装饰设计、艺术定制化生产、采购到落地布场、推广宣传等各环节的整体项目设计管理服务。元禾大千诞生自2007年,前身为大千画廊,在空间装饰领域沉淀20余年,目前总部设在重庆,拥有深圳、成都、杭州三家分公司,员工逾300人,项目遍布全国。本着艺术成就空间价值的服务理念,多年来长期与国内知名房地产开发企业共同发展,用艺术化的空间装饰助力项目价值成就。
近期项目
建发北大珑廷共享空间
中南华宇君启样板间153户型
大连新希望锦麟玖玺·底跃样板间
宁
波涌潮印销售中心
科华北辰天璞艺术中心
长沙建发央著S户型样板间
祥生光明金麟府94户型、123户型样板间
弘阳徐州公园大道销售中心
客服
消息
收藏
下载
最近

















































