查看完整案例


收藏

下载
作为一个深赋浪漫的海滨城市,大连极具包容性和人文性,人们对生活有着美好的期许。
宋代造极生活美学,将“雅”推行到了极致,宋徽宗更是向往诗意栖居,在他的《瑞鹤图》中,恢宏的帝王居所都是至雅至美的。
《宋徽宗坐像轴》宋 台北故宫博物院藏
《瑞鹤图》 宋·宋徽宗辽宁省博物馆藏
元禾大千以《瑞鹤图》为灵感,通过设计将人文美好实现在大连新希望锦麟玖玺样板间中。
整体气韵取其雅
主空间取其形
其他空间取其色
《瑞鹤图》局部图
蔚蓝的天空下,白鹤墨尾,木檐金描,祥云微醺,气韵清雅华贵,和平宁静。画卷之灵,“鹤”我们“鹤”的形象作为空间的开篇。在挑空的客厅,通透的水晶鹤羽吊灯盘旋而下,高低错落,和巨幅垂立的云纹大理石、铺满的海浪纹地毯相得益彰,有云海腾飞之意,画面感极强。主体黑白的大背景下,设计师用鹤顶的朱红点缀空间,在克制中增添了一丝惊艳。
《瑞鹤图》局部图
水晶鹤羽吊灯由人工吹制,羽片间的纹路根根分明,极具温度。
计白以当黑,奇趣乃出
留白,是中国书画独有的妙境。在徽宗笔下,《瑞鹤图》构图疏朗而空白,以少当多,予以人更多的想象空间。得感于此,我们在空间做减法,大量留白,将空间疏密有致地呈现出来。
餐桌选用传统圆形布置,充分体现安和团圆的氛围,赋予空间生活的温度。
质朴的木图卷中恢弘稳定的木制宫殿屋顶给了设计师灵感,提取屋檐的鹤灰色,用木的质朴温和、简练浑厚,打造典雅、有厚度的空间。
桌旁铂金镶嵌的木墩与水晶吊灯相呼应,光线在透明的材质下折射粼粼,打破了硬朗沉闷的空间,多了一分空灵之气。
天空的遐想
《瑞鹤图》中,缭绕的祥云蕴含着宋徽宗对和平安宁的理想。在宁静的休憩之所,设计师提取云的意象,用鹤身的荼白色渲染,大量使用绒面材质,整个空间蓬松柔软,氛围娴和。
墙面若隐若现的花瓣缓缓绽放,随着地毯轻描淡写的水墨,给空间带来了一种动态的生机。
将天空放入空间,延续画卷的颜色,以中国传统的暗蓝为主色调,采用简约形制的家具,空间舒朗雅致。
意外穿插的几何元素,构出现代都市的质感,勾勒出使用者稳重、精炼的形象。
典雅而时尚
提取宫殿四周祥云华贵而优雅的金茶色,空间雍容优雅。家具线条简洁,现代雕塑和几何挂画自由而有力,与豪放的泼墨奇异地融合在空间中,淡化了传统和现代之间的界限。
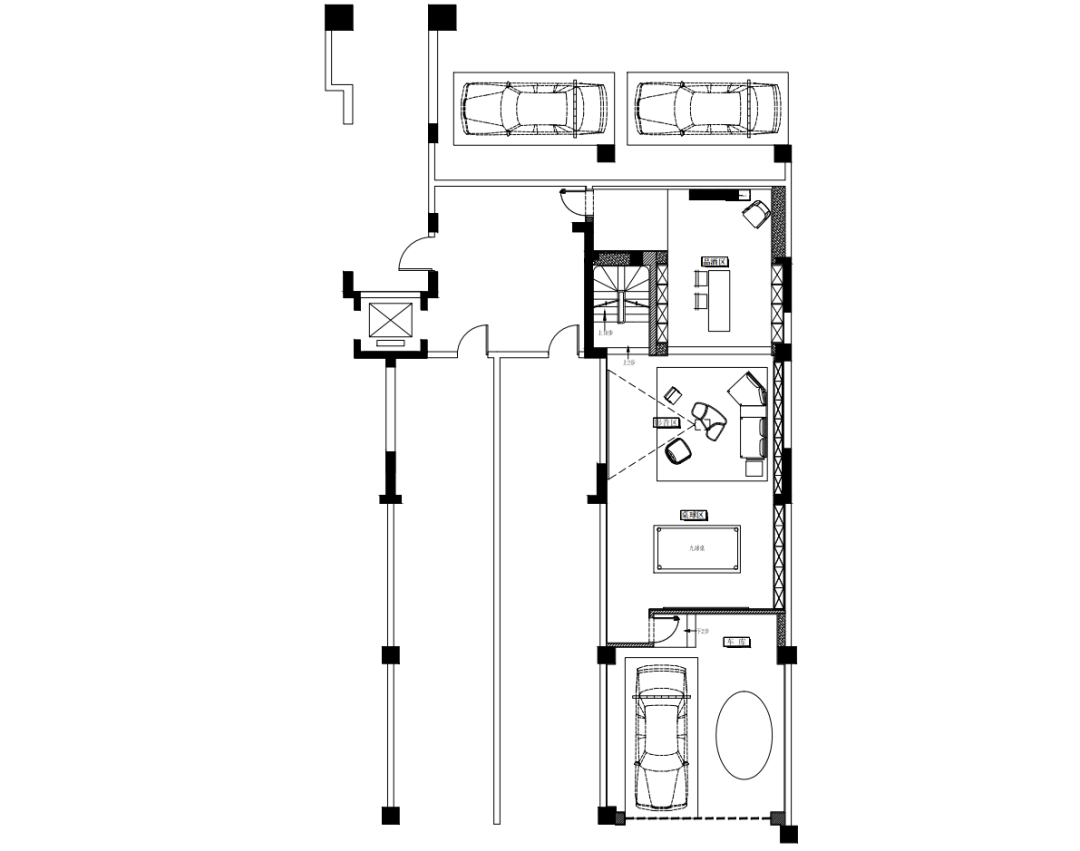
地下一层集具多元功能,藏酒、品读、观影、台球、车库...
雅,在任何时代都是适用,历经时光的打磨,愈加气韵悠长。从绢本到居住空间,《瑞鹤图》跨越了时空,依然装载着诗意的灵魂。
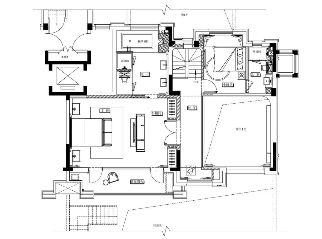
一层平面图
夹层平面图
负一层平面图
项目信息
项目全名:大连新希望锦麟玖玺·底跃样板间
项目地址:辽宁省大连市甘井子西南路与海口路交汇处
软装设计:元禾大千
硬装设计:深朴悦设计
设计时间:2020.06
完工时间:2020.07
空间面积:350m²
甲方单位:新希望地产集团
摄影团队:又与建筑空间摄影——普尤
元禾大千,是一个以艺术为驱动力的软装设计品牌。专注于售楼中心、样板间、酒店、会所等公共空间,以深度、全面、专业的态度提供从空间装饰设计、艺术定制化生产、采购到落地布场、推广宣传等各环节的整体项目设计管理服务。元禾大千诞生自2007年,前身为大千画廊,在空间装饰领域沉淀20余年,目前总部设在重庆,拥有深圳、成都、杭州三家分公司,员工逾200人,项目遍布全国。本着艺术成就空间价值的服务理念,多年来长期与国内知名房地产开发企业共同发展,用艺术化的空间装饰助力项目价值成就。
代表项目
宁波涌潮印销售中心
阳光城翡丽府下叠样板间
长沙建发央著S户型样板间
祥生光明金麟府94户型、123户型样板间
弘阳徐州公园大道销售中心
保利江锦1号 A3、C3户型样板间
客服
消息
收藏
下载
最近


























































