查看完整案例


收藏

下载
本案是位于南京西家大塘的餐饮空间,地点恰好在南朝宫城旧址之上。
北靠玄武湖,南望北阁极,西依古台城,东靠鸡鸣寺,故项目名曰“肆佰捌食肆”。
一楼
文人空间,自然不可少地结合着“儒、释、道”三家的精神指向,对山水形色与世俗生活的追求。
南朝之美,深藏不露,是斑驳背后的单纯,也是青涩伴随的新鲜。
空间公区,设计师以文心所至,古今艺术与生活的相互渗透,设计围绕文人雅集的故事展开,穿越当时生活之美的记忆回廊,历史的生活方式重现于共享空间之中。一边对话,一边重新书写当代精神记忆的新故事。
二楼
南朝印象主色调在简素与丰艳间,斟酌揣摩,度量拿捏。黑色暗纹哑光木饰面衬映取色自南梁张僧繇《雪山行旅图》的抽象油画,以纤秾平衡冲淡。
三楼
“肆佰捌食肆”作为一个承载往昔辉煌岁月与未来无上荣光的舞台,所有动人的情节正在有序上演,所有诗意的场景正被精致呈现。
这场都会文明的流动盛宴,属于建康,更属于南京,属于“肆佰捌食肆”,更属于缔造时代的人们。
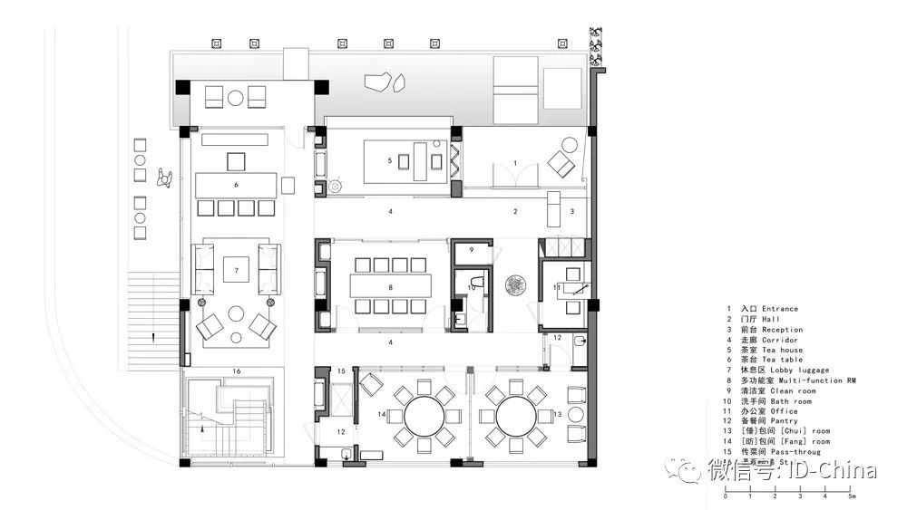
一楼平面图
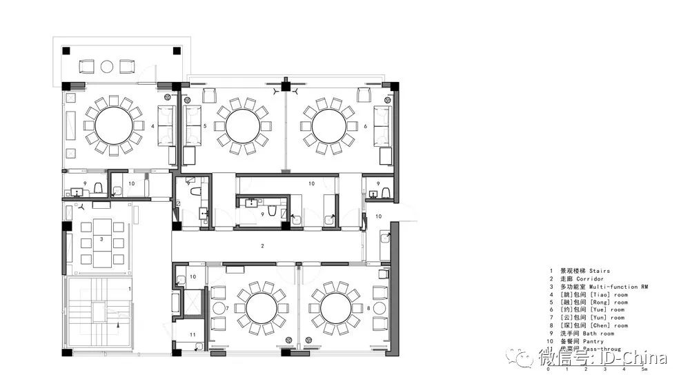
二楼平面图
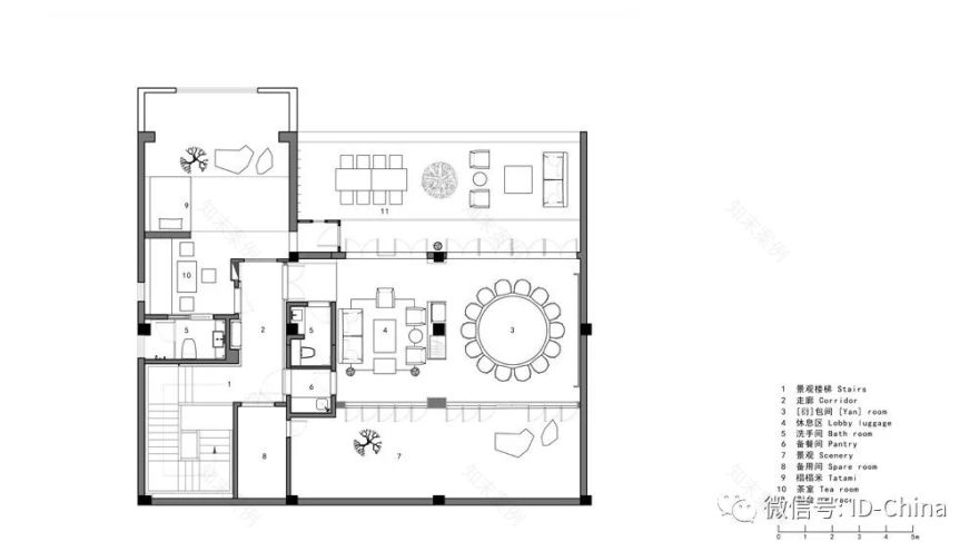
三楼平面图
项目信息
项目名称:肆佰捌食肆
项目性质:餐厅
设计公司:HFD惠风集设计机构
主持设计:王宏风
Matthew
参与设计:李盼飞、丁云、陶岚、张倩倩
品牌策划:杨进
照明设计:维光照明
撰文:杨进
项目摄影:鲁哈哈
使用材料:木饰面、大理石、铜件、艺术涂料
项目地点:南京
项目面积:800平方米
竣工时间:2019年4月
王宏风
HFD
惠风集室内建筑设计
创始人
APHDA
亚太酒店设计协会会员
CIID
高级室内设计建造师
ID活动
室内设计界的焦点、Interior Design China的年度经典赛事——
2019年大师选助手设计新锐&商务合伙人选拔赛
===========征稿启事 ===========
如果你有好的设计案例,优质案例还有机会刊登在美国《室内设计》中文版杂志及室内设计中文网上。建议设计师发小图(格式JPG,像素600*800)优质案例杂志投稿:为原创发声!
本平台发布项目均为设计师及设计机构提供。
客服
消息
收藏
下载
最近



























