查看完整案例


收藏

下载
这套63㎡的两居室公寓位于湖北武汉,改造前是精装交付。屋主通过朋友找到了设计师,主要有两点诉求,一是希望重新规划不合理的厨房布局,二是做软装设计,打造一个轻盈通透有品质感的家。
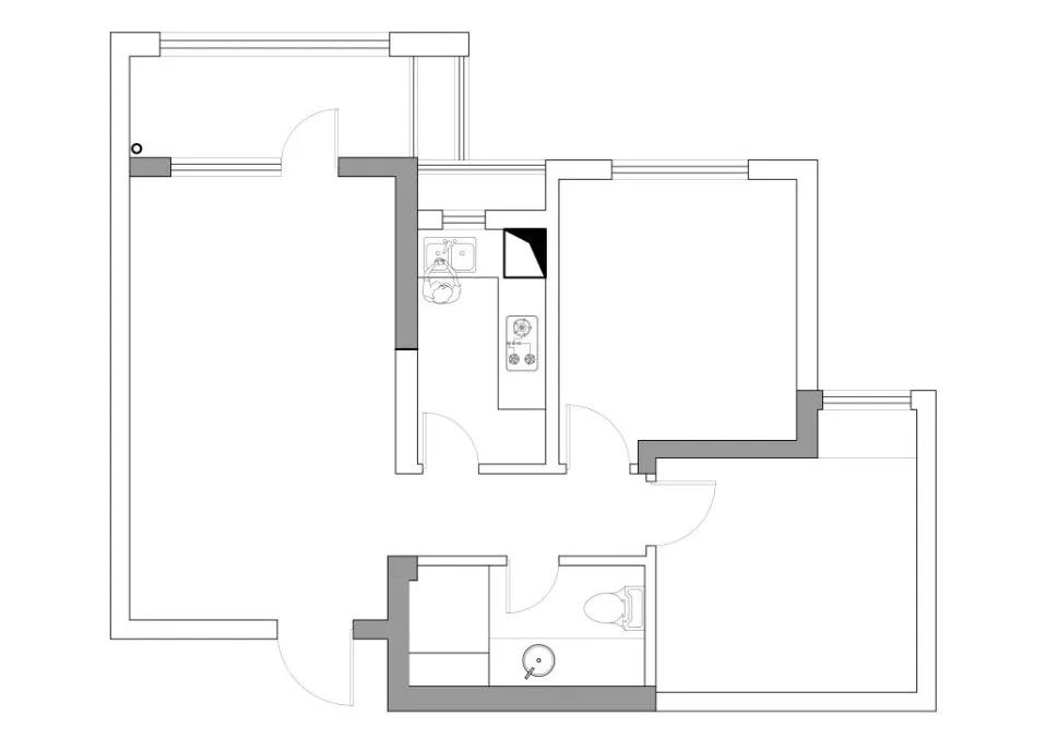
▲原始结构图
结构问题:厨房空间偏小,洗菜-切菜-炒菜施展不开,双开门冰箱也没有地方放,整体动线布局都不合理,难以满足日常备餐所需。
▲平面布局图
设计策略:1、去掉非承重隔墙,做开放式厨房。借用一部分卫生间的面积,放置双开门冰箱,剩余空间还能用作清洁区;
2、充分利用过道空间做功能叠加,备餐区的操作台增加洗漱台盆,可作为干区洗手台使用,干湿分离、一举多得;
3、长达6米的壁柜,整合所有公共空间的收纳,底部悬空设计,弱化体量感,更显轻盈;
4、卧室除了满足屋主当下的需求,小房间还做了衣帽间的储存容量,未来家里有了宝宝,也有足够的玩耍活动空间。
▲全屋配色提取,是屋主喜欢的风格
>>>>改造前
改造前是典型的精装房,厨房狭小,全屋没有任何设计美感,一起来看看改造后的样子吧!
进门一侧,依墙布置了穿衣镜、挂钩、换鞋凳,出门前可以整理着装,下班回家挂外套、包包,坐在凳子上从容换鞋,一切井然有序。
另一边是顶天立地鞋柜,内部嵌入旋转鞋架,收纳功能强大!
▲LDK一体化设计
主沙发:MD
懒人沙发:MUJU
挂画:朝花夕拾art
地毯:青山美宿
去掉移门和不规则非承重矮墙,将阳台包进客厅,大大改善了室内采光,视线畅通无阻,一扫原来的闭塞。
▲白色柜门+悬浮式设计
近6米长的矮柜,整合客餐厅的所有收纳,各种杂物都藏起来,只留下简单装饰,空间干净利落,也方便日常打理。
灯具:NORHOR
餐桌椅:NORHOR
层架:CHONG 翀
定制柜:美维客
厨房做开放式设计,去掉非承重隔墙,改为U型操作台,洗-切-炒动线流畅,宽敞又实用,另一侧借用卫生间面积嵌入双开门冰箱。
整体选用黑白配色,小白砖的铺贴更增一分几何线条美。
干区台盆融入操作台,移动插座方便使用各种小件电器,壁挂层板来自CHONG翀,颜值没得说,可以放牙刷、杯子等。
▲从洗手台看向厨房
男主人有一点强迫症,厨房的每一件小器皿都是精挑细选,不放过任何细节。
主卧延续黑白+深蓝的配色,没有多余装饰,搭配暖橘色床品撞色,简约时尚,更有视觉张力。
床:唤美生活
床品及毛毯:DAISYHOME
花瓶:bestwest旗舰店
重点说一下衣柜的折叠门,可以全部打开,所有衣物一目了然,方便穿搭,适合爱美的女主。
床头柜选择轻便可移动式的款式,不影响柜门开合。
▲床尾的迷你梳妆台
▲干区洗手台外移圆形铁艺梳妆镜,精致小巧又不遮挡视线,黑色款和整体也比较协调。木色柜格可以放一些常用物品,作为补充收纳。
▲从干区看淋浴间,谷仓门不占地方
马桶:杜拉维特
水箱:吉博力
壁挂式马桶+喷水枪,方便日常清洁,上面的柜子收纳屋主囤的纸巾、清洁剂等日用品,底部嵌入灯带,温馨明亮。
洞洞板放多肉,水槽方便手洗小件衣物,洗衣机+烘干机解决洗衣晾晒难题,也不会破坏阳台的美观性。
屋主一直希望阳台能有户外的感觉,因此选用户外木错拼,和客厅的鱼骨拼木地板做区分。
▲白色纱帘+鹅卵石+户外木
儿童房暂时空置,白色柜门+柔粉色拉手,搭配果绿色墙面,清新活泼,为以后有了宝宝进一步改造留出余地。
- 设计师采访 -Q这套案例的设计灵感是什么?
A主要是对于空间重叠功能的思考,小户型的痛点往往就是无法释放更多的空间,所以在设计时会考虑做一些重叠功能区。
Q最满意的空间是哪里,为什么?
A对厨房结构的改造,解决了厨房和卫生间两个区域的日常生活痛点。宽敞的操作区,双开门冰箱也有地方放,过道的双向台面安装洗漱盆,打造一个多功能复合性的生活空间。
一组对比图
▲客厅
▲厨房
设计师:詩婧Designer
文章来源:家的要素jiayaosu
客服
消息
收藏
下载
最近






























