查看完整案例


收藏

下载
简约清新
JD Architects新作,设计越来越趋向于简约风,给人一种清新自然的感觉,没有厚重的压迫感,让空间显得更加开敞,营造更健康的家居环境。
Jakub Dreszler
波兰室内设计工作JD Architects,由Jakub Dreszler创建,精致简约的线条美,致力于设计创新与人性化设计的研究,力求每个作品都有鲜明的个性、与众不同。
Targowa
JD Architects设计的45㎡小户型住宅,一个紧凑的生活空间,主要是白色和木色为主,清爽简约有范,将给人带来一咱清新的感觉。
客厅天花、墙面、地面都属于简单装修,浅灰色的布艺沙发搭配一个小巧的木质茶几,一切都是最好的搭配。
厨房采用半开放式的设计,L型橱柜+木质餐桌+灰木餐椅,加上一盏绿色灯的衬托,营造出一个轻松自在的用餐氛围。
主卧的设计以高级灰+原木为主,光线充足,简约舒适。
极简的浴室配有简约线性元素,营造出一种更广阔空间的视觉,干净整洁的美感。
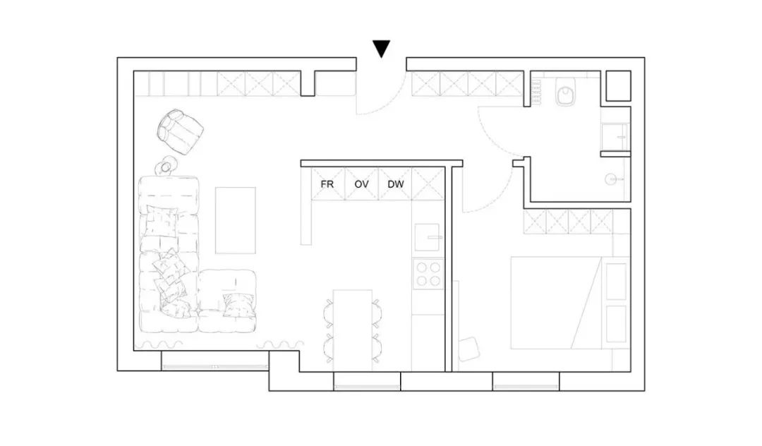
平面图
▽
COMPACT APARTMENT
一个28㎡的紧凑型住宅,设计师充分利用起小小空间的每一寸面积,强调功能需求的同时,注入鲜明个性与大格调。
室内采用明亮的白色,加入一抹绿色,清丽怡人的色系在极简风格设计下,给予空间年轻时尚的气息。
客厅的一个角落设计成厨房,摆上一张简约餐桌,就是一个舒适的餐厨区,也准备了很多的收纳空间,非常方便。
利用可移动书架和电视柜,把卧室和客厅隔开,增加储物空间,这种设计很值得小户型参考。
客厅的一个角落设计成读书角,摆上一张绿色的单人沙发,就是一个美好的休闲区。
卧室以白色为主,绿色点缀,空间虽小,但同时设置了书桌与衣柜。
卫生间里面采用干湿分区,整体上灰白搭配。
GDAŃSK ZAJEZDNIA WRZESZCZ
JD Architects设计一套面积88㎡的公寓,时尚,简约,雅致和优雅,一个富有美学气息的地方。每个空间的处理,都极为简约精致,但又能让人觉得亲切舒适。
内部装饰采用现代风格,采用一种配色方案,营造一种轻盈,舒适的感觉,因此配色方案比较轻巧,还添加了天然的木质。
卧室一定要舒适!设计师根据主人意愿,花很多的心思,整个空间给人一种很安静的感觉,容易带人进入安静放松的状态。
卫生间设计非常高级,水磨石与木材的运用,看起来也是质感炸裂,就是喜欢这种风格,一眼看过去就让人舒服与放松心灵的感觉。
客服
消息
收藏
下载
最近

























































