查看完整案例


收藏

下载
【项目名称】:GAGA 金光华
【项目位置】:中国深圳
【设计公司】:协调亚洲
【设计团队】:李娟、虞音、杨龙虎
【完成时间】:2018
【项目面积】:525平方米
【使用材料】:铝合金、铜、霓虹灯、玻璃
【项目摄影】:协调亚洲
【创意说明】
在消费者追求个性化的年代,空间设计不仅仅是功能性的场所,而是一个融合社交、生活的场景体验,对于培养消费者的忠诚度和传播最大化有极强的作用。本案业主联手红点奖设计团队Coordination Asia打造首家“城市客厅”主题店。这家店让消费者形成一个更为立体的消费体验的同时,也是品牌关于城市社交空间的又一次惊艳探索。
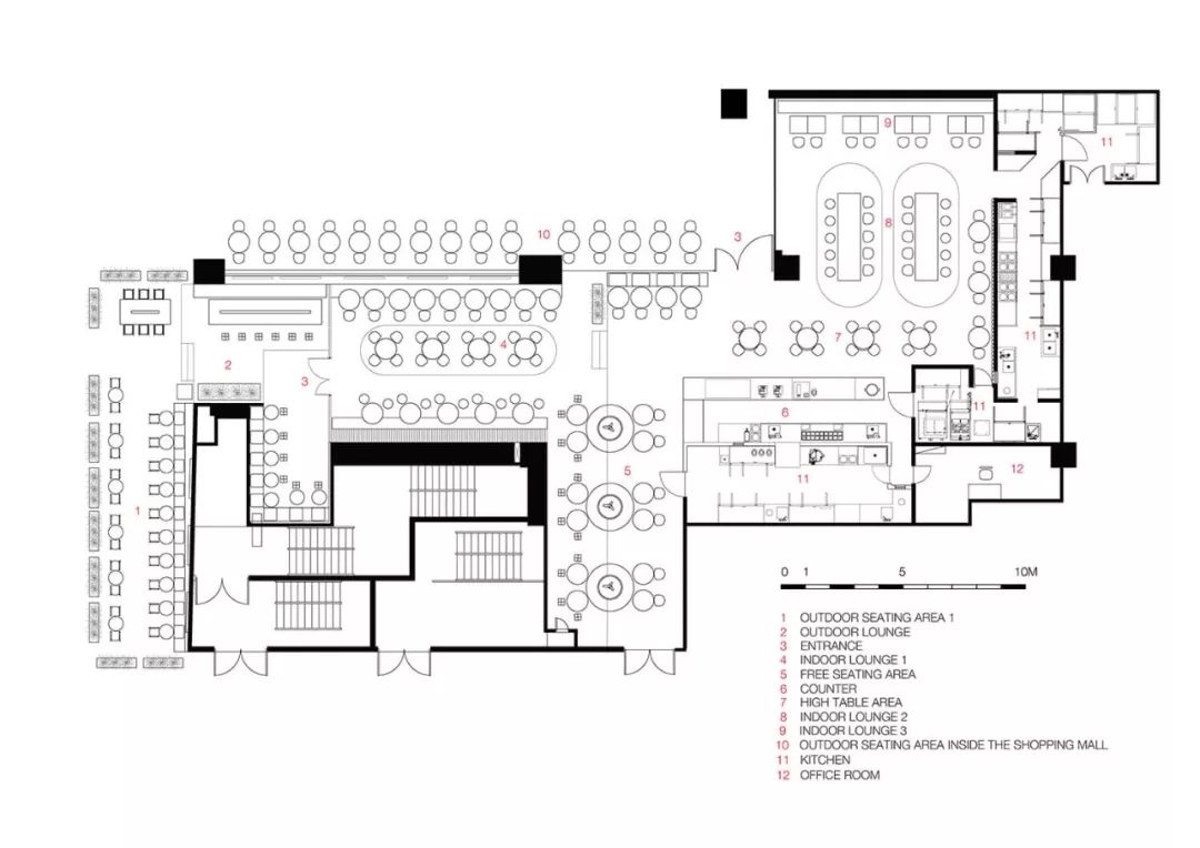
【设计图纸】
【空间简述】
本案仅户外就有约64个座位,这些座位成为空间形象的延申,同时也是一个产品的实时买家秀场,模糊了内外空间的界限,抓住顾客擦肩而过的瞬间,吸引人流的注意。
门面采用类似玄关的设计,透过不算宽敞的通道,让人无法一眼看清店铺里面的环境,然而走进去后,470㎡(室内)的超大空间让人豁然开朗,
错落有致的布置让整体空间不再单一化,店内划分为休闲餐区、高地区和外摆区三大区域,并分别对应为海洋、森林和沙漠三大元素,空间通过家具风格,灯光造型以及夸张的水磨石地面与木地板交替拼接使每个区域都有其独特的氛围与感觉。
海洋的颜色是整个空间的主打色,蓝、蓝绿、绿色,清新而美好。
连接本案室内外空间是白色铝合金波浪形格栅吊顶,澎湃的曲线让
人联想起连绵不绝的海浪,“席卷”了整个空间,充满张力的白色线条,也拉伸了整个空间的视觉效果。
高低错落的区域,自然地把人群分隔开,即便是看上去热闹熙攘,也能在一定程度上保持每个个体的私密性。
空间包含一个抬高的中岛休闲区:两侧以矮桌呼应,长条靠墙软座沙发结合现代化的座椅家具,同时将注意力引向高吧桌与吧椅。靠近蓝色点餐台,引人注目的椭圆形沙发椅为咖啡爱好者提供了舒适自如的等候区。
对于享受舒适的顾客,空间中还另有两个休闲区域拥有舒适的沙发和温馨的照明,营造出如家中客厅般的空间,适合小憩放松,舒展心情;而大长桌则适合团队顾客在这里一边享受美食,一边尽情工作。餐厅内无处不在的抛光古铜色及黑色造型吊灯给空间添上一抹柔和亲密的气氛,而隐藏在天花格栅造型中的LED可调灯光则伴随一天的时光的变换调节着白天,傍晚,入夜后店中的照明体验。
装点空间的大型仙人掌绿植为空间增添了一抹鲜活的色彩及与众不同的质感,而餐桌上的多肉几何玻璃景观造型盆栽成为装饰元素中的细节亮点。墙面装饰元素—涵盖了圆形的镜面,曲线的霓虹灯,以及圆盘形的艺术作品—这些元素与拱形波浪的格栅吊顶相结合,为gaga所关注的年轻数字一代提供了易于分享,广受社交媒体欢迎的拍照环境。
聚焦于年轻,潮流与精致生活的国内年轻客流群体,本案将顾客置身于微风拂面、轻盈柔平静身心的城市绿洲中,构建出一个离深圳繁忙工业港口不远的理想国中的平和宁静的沙滩,这一新店不仅保留了品牌对于设计风格品质的不断追求,优质丰富的餐品质量,更将成为都市生活中必不可少的灵感之源。
时删
除
----------------------------------
:
---------------------------------
客服
消息
收藏
下载
最近































