查看完整案例


收藏

下载
“明月松间照,清泉石上流——王维”
南充凤凰台项目地处顺庆区城市北拓发展的核心位置白土坝,作为南充重点打造的新城,俨然已成为城西最重要的商住区域之一,而本项目就坐落在南充舞凤山公园(在建)内。
依园而建,在设计之初,就取义自然,回归自然。山、石、月色、松林,流水、凤凰回头,通过抽象或具象的现代设计手法提炼,呈现在售楼部中。
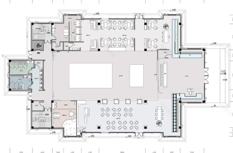
一楼通过横向分割,自然形成前区、中区、后区三个功能区。前区包括形象立面、接待与景观,中区承担主要功能,分为浅谈区、沙盘、深度洽谈区,儿童活动区等。后区则为楼梯间及卫生间。中国画讲究密不透风,疏可跑马,售楼部的动线设计也是欲扬先抑,有收有放,行进中具有一定的节奏感。
进入售楼部,迎面的形象墙入门点题,凤凰台楼盘LOGO用灯光模拟月色,悬于山型之上,背后的造型如山环抱,又像徐徐展开的画卷引人进入。右侧为水晶造型凤凰回头,光影下更显梦幻。山石水景的加入,从进门处就烘托出浓郁的氛围。
进入中区,左右浅谈、深谈区的隔断各自形成了方形、圆形留白,天圆地方,在此呼应。
贯穿至屋顶的造型,是川西民居青瓦坡屋顶的抽象化提炼。
12米挑空,沿着建筑造型顺势做成木梁结构坡屋顶。没有选择复杂而奢华的吊灯,将灯光藏于顶面中,灯即为造型的一部分。
顶面四周环抱一幅山水画卷,在金属格栅的掩映下忽隐忽现,既是造型的亮点,同时承担遮挡二楼办公区域的功能。
两边洽谈区也是尽显心机。柱子都进行了巧妙的处理。浅谈区为造型柜,同时可承担一定收纳功能。
明月松间照,清泉石上流。正如一开始设计时的想法,回看整个设计,材料选择非常精炼。白墙、木纹、石材、灰色瓷砖、金属,设计手法也很纯粹,将自然意向经过具象、抽象地提炼,最终以构成的方式呈现。避免繁复的材料元素堆砌,给人以呼吸,向自然致敬。
售楼部虽为空间的呈现,本质上具有商品的性质,是开放商售楼的主要道具之一,展示性与实用性兼具。既需要帮助开发商更好地销售,也需要给买房业主更好的服务体验。目前的主流售楼部设计或为极简清冷、极具设计感,或奢华豪放、彰显实力与地位。本项目的设计意在取上述二者之优,华而不奢,雅而不俗,找到一个巧妙的平衡,给来客带来舒适的体验。
项目名称:
南充龙湾
·凤凰台
项目面积:2684㎡
项目地址:南充市顺庆区
竣工时间:2019年5月
设计机构:成都久格旭设计有限公司
主案设计师:廖旭
廖旭从事设计师工作已有22年,积累了丰富的设计经验,善于用甲方思维做设计。创立成都久格旭设计有限公司至今,在公司担任主创设计师,设计总监,项目负责人的职务, 擅长设计风格:现代简约风格/新古典风格/新东方风格等。已注册高级室内建筑师CIID会员,中国建筑装饰与照明设计师联盟会员,成都精英设计师联盟会员。
设计师-廖旭
成都久格旭设计有限公司简介
成都久格旭设计有限公司成立于2007年9月11日,由原2005年成立的成都廖旭空间设计事务所发展而来,为专业从事室内建筑装饰装修的设计公司,拥有建筑装饰工程设计专项乙级资质 。以工装设计为主,主要从事楼盘销售大厅、公共区域精装修、样板房、精装房、户型设计、会所、办公室、别墅的室内室外建筑装饰装修设计。与多家知名房地产公司合作,并参与公共区域及精装房、样板房、户型优化等项目的设计。
公司自成立以来,以“精于心、简于形、巧于匠、创于新”为专业服务观念。团队结合20年的工作经验,现有10多名资深优秀中 、高级专业设计人才,95%以上的设计师拥有专业本科毕业学历,主笔设计师均从业近20年,具备独到的审美理念、并积累了丰富的专业知识和设计经验。设计作品在全国各地的参赛中多次获奖。
代表作:
南充凤凰台洋房
开元咨询集团
速递易大楼
万科地产城市之光签约中心
万科天荟签约中心
客服
消息
收藏
下载
最近














































