查看完整案例


收藏

下载
【项目名称】:锦城印象·高新店
【项目地址】:中国·成都
【项目面积】:420㎡
【设计公司】:集嘉设计
【主案设计】:沈嘉伟 JiaWei Shen
【执行设计】:张永川 / 万婧雯
【完成时间】:2020.05
【项目主材】:实木、木饰面、老砖、藤编
【创意阐述】
本案是集嘉设计受委托进行品牌升级改造的第二家锦城印象门店,锦城印象·高新店。项目毗邻高新区in99商业综合体,是锦城印象品牌每日营业额冠军门店,面积最小、上客率最高。
这也是集嘉设计再次与锦城印象合作打造的又一品牌升级店,在不断的探索与协作中与锦城印象品牌经营者有了更深刻的「思想交流与相互认同」。
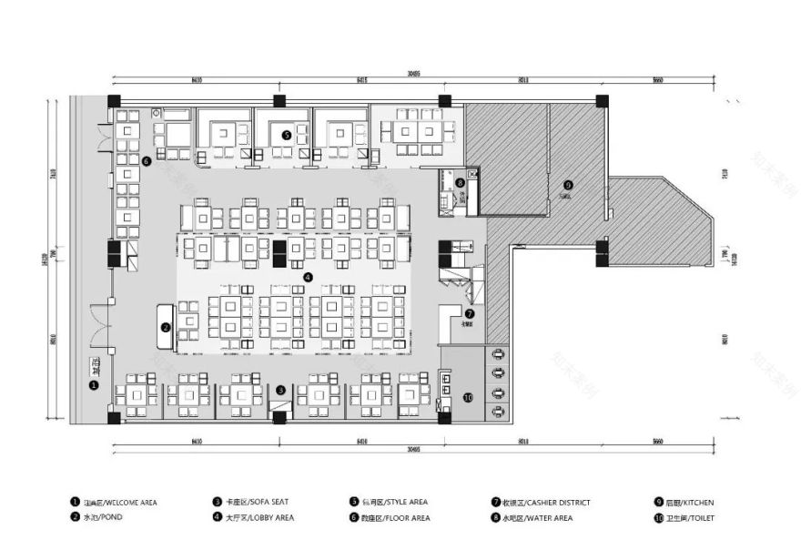
【设计图纸】
【空间简述】
在原有的基础上仅减少了两张不必要餐桌,延续了「空间功能性,最大化空间利用率」。在保证业态和高频效翻台率的同时,设计师利用园林景观的设计逻辑,——「空间越拆越小,空间越隔越大」,在大厅两侧设置了木栅隔断,设计了不同形式的就餐空间。使用与大厅材质统一、形态各异的木质隔断,打造丰富变化的用餐环境;
右侧为独立的包房区域,玻璃窗与竹艺编制活动推拉门相结合,兼顾了私密性与空间的通透性。
认识和发觉品牌本质,保留辨识度,更多的是从「项目本身去挖掘」,让锦城印象品牌特色和四川老牌火锅的形象,引导我们更深入的认识。
设计中尽可能的避免装饰上堆砌的做法,用更精准的材质变化去定义空间。
通过木隔断这种看似单一的手法制造「空间的统一」,搭配家具红/灰的色调,保留了锦城印象「空间辨识度」。
保留特色同时也要满足推陈出新的目的, 融入年轻新潮的氛围。看似密集的木格栅, 采用了「空间顶面透光」的手法, 打造光与影的意境。格栅顶部透光方式将光线引入, 漫散的光影, 使空间层次渲染丰富。火锅热闹的氛围中, 融入光影动势, 使空间更加广阔并带来生机的新鲜感。
时
系删除
:
---------------------------------
在变好看
客服
消息
收藏
下载
最近































