查看完整案例


收藏

下载
LIGHT AND SHADOW
MOVE IN SPACE
THE OLD AND THE NEW CHANGE
IN DAYS
光移影动,新更旧迭
项目类型 | 餐饮
-
本案是集嘉设计受委托进行品牌升级改造的第二家锦城印象门店,锦城印象·高新店。项目毗邻高新区in99商业综合体,是锦城印象品牌每日营业额冠军门店,面积最小、上客率最高。
这也是集嘉设计再次与锦城印象合作打造的又一品牌升级店,在不断的探索与协作中与锦城印象品牌经营者有了更深刻的
「思想交流与相互认同」
。
-
最大化空间利用率
Maximize space utilization
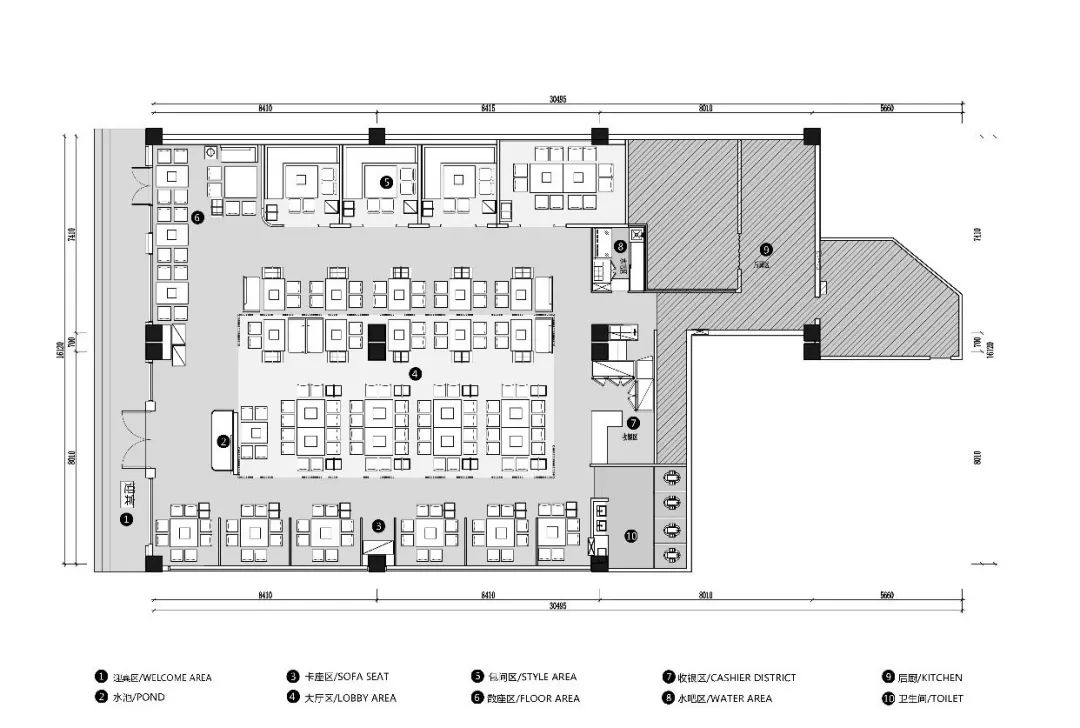
面积仅420㎡,
共设置了34张餐桌,
可供190人就餐,
在原有的基础上仅减少了两张不必要餐桌,
延续了
「空间功能性,最大化空间利用率」
。
在保证业态和高频效翻台率的同时,
设计师利用园林景观的设计逻辑,
——
「空间越拆越小,空间越隔越大」
,
在大厅两侧设置了木栅隔断,
扩大空间视觉效果。
大厅木格栅左右两边,
设计了不同形式的就餐空间。
左侧为卡座区,
使用与大厅材质统一、形态各异的木质隔断,
打造丰富变化的用餐环境;
右侧为独立的包房区域,
玻璃窗与竹艺编制活动推拉门相结合,
兼顾了私密性与空间的通透性。
认识和发觉品牌本质,保留辨识度
Discover essence and retain identification
改造品牌升级项目,
并不是完全打散重构,
更多的是从
「项目本身去挖掘」
,
发觉本质,
精减材质,
让锦城印象品牌特色和四川老牌火锅的形象,
引导我们更深入的认识。
设计中尽可能的避免装饰上堆砌的做法,
用更精准的材质变化去定义空间。
通过木隔断这种看似单一的手法制造
「空间的统一」
,
搭配家具红/灰的色调,
保留了锦城印象
「空间辨识度」
。
光影动势,年轻氛围
Light and shadow move, young atmosphere
保留特色同时也要满足推陈出新的目的,
融入年轻新潮的氛围。
看似密集的木格栅,
采用了
「空间顶面透光」
的手法,
打造光与影的意境。
格栅顶部透光方式将光线引入,
漫散的光影,
使空间层次渲染丰富。
火锅热闹的氛围中,
融入光影动势,
使空间更加广阔并带来生机的新鲜感。
入口
Entrance
ABOUT PROJECT
▲Model 3D
▲Plan View
—————
项目名称 |
Name
:锦城印象·高新店
项目地址 |
Location
:中国成都
Chengdu,China
项目面积 |
Area
:420㎡
主材 |
Main Material
:实木、木饰面、老砖、藤编
完成时间 |
Date
:2020.05
设计公司 |
Design
:集嘉设计
JIJIA Design
主案设计师 |
Interior Design
:沈嘉伟
JiaWei Shen
执行设计师 |
Executive Design
:
张永川
Yongchuan zhang
/ 万婧雯
JingWen Wan
摄影 |
Photographer
:存在建筑
Arch-Exist
项目撰文 |
Project writer
:杨拉蔓
LaMan Yang
ABOUT DESIGNER
沈嘉伟
/JiaWei Shen
集嘉设计JIJIA Design
创始人&设计总监
- END -
编辑 | 大白 校对 | 大白
*本文由集嘉设计JIJIA Design投稿,标题及版式由AXD编辑制作。
如需获取项目相关资料,请联系
集嘉设计JIJIA Design
。
-
点击
“阅读原文”,
关注K计划最新公益活动!
客服
消息
收藏
下载
最近


































