查看完整案例


收藏

下载
【设计单位】:巢羽设计事务所
【项目设计】:王星 梁飞
【项目地点】:中国·江苏
【项目面积】:695㎡
【项目摄影】:AK空间摄影工作室
【主要材料】:原木木饰面,深灰色木饰面,亚麻墙布,仿铜不锈钢,灰白地砖30°斜拼,压花玻璃,水泥砖,
【创意说明】
本案位于苏州,设计师绕过了古韵江南的传统东方意象,透过细致的观察与整合能力,将清新、自然、与时尚的元素相结合,营造出清新雅致的空间,拉近与年轻客户群的距离。
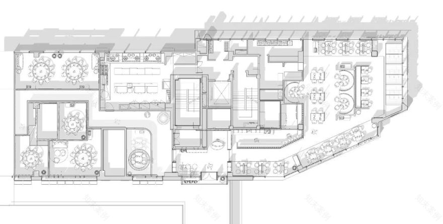
【设计图纸】
▲平面图
▲轴测图
▲局部透视图
【空间简述】
原入口比较扁平,做了双层门套,预留一块门厅区域,强化入口,增加了仪式感。
吧台区域利用吧台作为切入点,把收银,服务,水吧,厨艺展示,菜品展示等功能
融
为一体。
吧台区通过色彩的组合,冷暖对比强调服务功能区位的划分。
卡座区域设计了半开放式的围合,私密感和开放性共生。
散座区域通过屏风,隔断,构架,围合等方式,每个小区域都相对独立。
大厅区域环绕式布局把餐厅分为外圈和内圈,中间环形流线使服务流线简单便捷。
构架式的处理和半透玻璃隔断围合出一处独处的小空间。
包厢区域灯光以功能性点光源为主,强化餐桌就餐场景,弱化环境氛围,”聚”得以体现。
时
系删除
----------------------------------
:
---------------------------------
客服
消息
收藏
下载
最近




















