查看完整案例


收藏

下载
向心而居
To the heart
当我们称赞一把椅子或是一幢房子美时,我们其实是在说,我们喜欢这把椅子或这幢房子向我们暗示出来的那种生活方式。——阿兰·德波顿
温柔中的梦中情房
自贡名筑设计
"生长于野,安于室"
当温暖的色调与灯光烘托家的温馨时,一天的疲惫在进入家的一瞬间全部消散,剩下的是温柔与平静...
本案屋主为年轻小两口居住,要求三房改两房,有独立衣帽间,尽可能多的收纳空间。空间调性要时尚,简约,高颜值。我们通过结构改造、色彩、灯光、软装搭配呈现出奶油色系的温柔空间。
无主灯的设计让空间视觉更干净更纯粹,客餐厅一体布局规划,让空间更整体。弧形门洞、弧形吊顶增强空间流动感,线条更丰富有视觉延伸的效果。
自然光线洒落在每一个角落,每一处都是温柔的氛围。
墙面波纹板造型与落地灯摆件、挂画的形态呼应,让空间更有格调。干净的色彩,仿佛时间慢了下来,带走了都市的喧嚣...
过道看餐厅电视墙区域,材质的区分让功能与空间分区但又不打破整体性。
白色岩板餐桌干净有质感,昌迪加尔椅柚木与藤的材质加上独特的形态,在空间以及餐厅提升了简约时尚的氛围。卡座设计让入户的空间更开阔,旁边加上储物柜满足收纳。
延续简约的设计理念,厨房门洞取消了常规门套,运用不锈钢进行收口处理。弧形门洞让厨房空间更有生活仪式感。
悬空的书桌,让空间更简洁干净时尚。
卧室是休憩放松的地方,是释放疲惫灵魂的场所,有木质的温馨,有回归宁静雅致的高级灰,让人放松。我们将另一个卧室改造成衣帽间,让主卧成为集洗漱、休憩、收纳为一体的多功能空间,满足了实用性与私密性。
△平面图
项目地址 | 四川 自贡 金域翡翠
项目面积 | 102 平
空间调性 | 简约 柔美
主案设计 | 名筑设计-王谦
服务模式 | 全案设计+半包施工
品牌支持 | 芬琳漆 瑞士卢森地板 芒果瓷砖
空间摄影 | 龙武
钢铁森林里的梦幻住宅
武汉逅屋一舍设计
“清澈之地,小两口的慵懒宅”
屋主人为小两口,张小特和 Bella8、9 年前在墨尔本呆过一阵子,对于那里随性、恣意的慢生活,当时还无法适应,觉得像养老。时间推移,他们经常会怀念起那段时间的状态。“如果回到家中能让人沉静得下来,一切变得简单,思绪不再紧绷。”他们这样想着。
这个家就像一支插在水里的植物,根部清晰分明,在清澈的水里一碰,马上泛起一阵阵涟漪。
△平面图
所在城市|湖北武汉
项目地址|联泰香域水岸
项目面积|140㎡
项目设计|逅屋一舍
项目施工|逅屋一舍
圆·境
成都璞珥空间设计
避世娴静的一隅空间
此次业主是一对年轻夫妻,女业主热情而有活力,对生活充满了想法与期待,男业主宁静而沉稳,作为在企业中拥有绝对话语权的他,时刻保持着冷静与理智。品茶、阅读、冥想……看似对立的二人,却因为有着相同的爱好,气场都变得“平衡”起来。设计师以家为介质,为他们的生活带来了些许“诗书茶韵”。
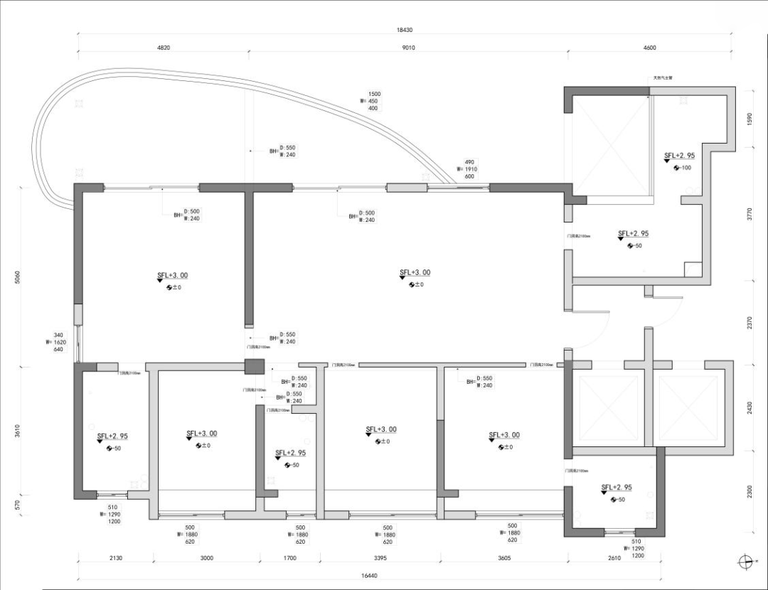
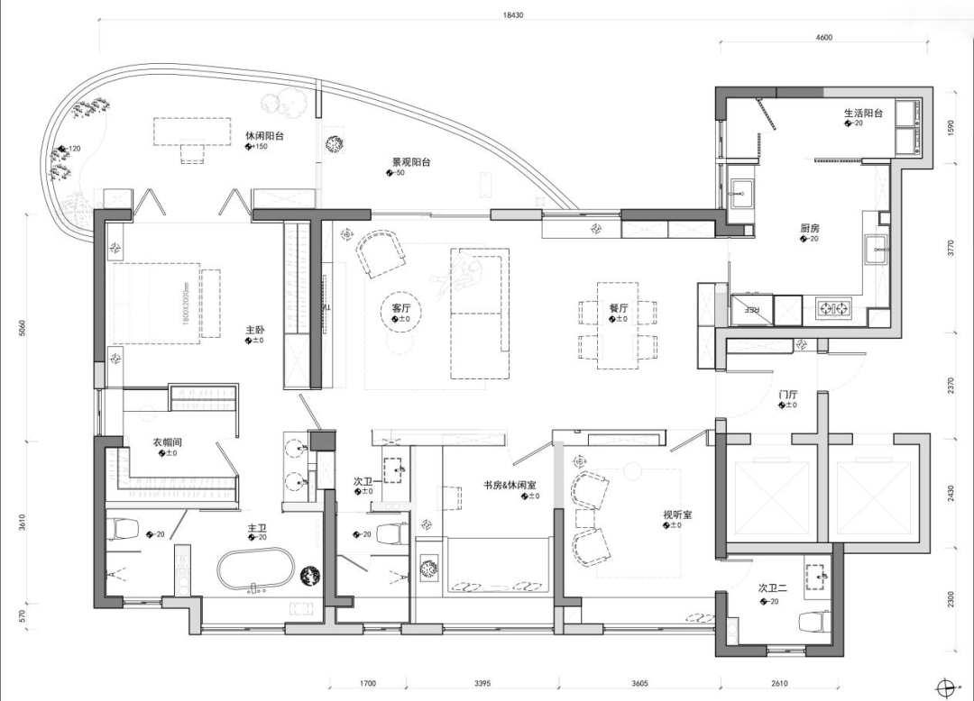
△平面图
原始户型是典型的四室两厅格局,因为只有夫妻二人居住,所以不用太多卧室,但想要主卧是一个大套间。另外男业主想要一间独立的书房,女业主想要一间视听室……结合屋主的需求,设计师合理规划了空间布局。
△平面布置图
- 设计师将主卧设计成一个行走自由的大套间,拥有独立的衣帽间和四分离卫生间;
- 给夫妻两人一人一间“书房”;
- 同时全屋设计了许多开架,用于展示女业主的收藏品。
客厅与餐厅空间连通,整体以白色和灰色为基底,搭配温润木色做装扮,营造纯粹、放松的生活氛围。
东西的朝向使得整体空间通透,白天采光充足,落地窗将庭院景色与远方的风景引入室内,悄然拉近了人与自然的距离,让人一回家就得到舒缓,沉浸生活。
客厅电视机去中心化,定制电视柜用移门做隐藏式设计,推开移门,可以窝在沙发里看上一部精彩电影,关闭移门,还可展示柜内书籍或工艺品,格调尽显。
部分墙面使用了艺术漆涂刷,因其最后所呈现的不确定性纹理感,变幻的光线穿过梦幻帘,映射到墙面,家好像也有了生动的表情。那股缓缓运动着的气息,似人心魂。
壁炉的设置给家营造温暖的氛围感,跳动的火焰让人感受到热情和积极的人生态度。
走廊一侧是白色与木色的墙板和同色的隐藏门,空间延伸性强,同时巧妙地以颜色将客厅与餐厅分割,使空间更有层次感。
在考虑地板、墙壁等要素时,也大量采用自然的材质与没有刻板造型的修饰方式。木地板渗透着温润而自然的气质,其交错的纹理触感,会随着时间愈发润泽,富有生命力。
餐厅一侧仿若展厅的开架,陈列屋主从各地收藏的器物,满足了屋主喜欢收藏的小爱好。
餐桌上的圆球形灯具是女业主的最爱,柔和的光线托温煦的用餐情景。
同时,餐桌背后的墙面被利用来做收纳空间,顺便将厨房的门一并隐藏。
将设备间面积缩小,厨房整体面积扩大,尽可能将功能设施做到完备,再用木格栅做镂空的隔断,用光影为烹饪空间增添一丝兴味。
原始的主卧太小,打通旁边的次卧,让卧室、衣帽间、卫生间、休闲阳台,共同围合成了一个大套间,动线流畅,在家也有“总统套房”的体验感。
休闲阳台地面整体抬高,与卧室内部以屏风移门相隔。合起移门,可完全隔绝采光,营造安稳的睡眠空间;推开移门,卧室空间瞬间扩大三分之一,开阔而通透。
同时休闲阳台作为多功能区域又可以做女业主的茶室和书房,闲时插花、品茗、阅读,一书一茶,让居家生活充满仪式感,为心情放松减压。
此外,在分隔的墙上我们设置了一个圆窗,它与一墙之隔的客厅由此建立了连接。
两个卫生间都扮演着中立的角色,主卫以岩板铺贴墙面,穿插原木质感的架子与百叶窗,品质与品味有了双重的保障;飘窗台上的木质灯具为卫浴空间增添了一丝活力。
给喜静的男业主一间独立的书房用来办公和冥想,简单到仅有榻榻米、书桌、座椅,以及一片与书桌相连可以放书的木台。与其说木百叶掌控着室内的明暗,不如说是他可以更游刃有余地与自我相处。
主卧一侧,我们将相邻的一个小房间并做衣帽间。衣帽间以开架为主,方便挂衣服、放包;梳妆台与卧室以玻璃窗相隔,两人在梳妆的时候也能有很好的互动性。
为喜欢追剧的女业主规划的视听室,好让两个沉浸在各自世界里的人互不打扰。带有一个卫生间,追剧时上厕所也不用走太远,等将来有了小孩还可以做儿童房。
项目名称 | 李瀛/璞珥空间设计
项目地址 | 四川成都
建筑面积 | 174㎡
设计时间 | 2020.10
完成时间 | 2021.08
装修花费 | 130 万元
如您需要设计更多高清案例收录于 2022 高清案例大全中
客服
消息
收藏
下载
最近










































































