查看完整案例


收藏

下载
“我不是从理论定义的出发点来做建筑。我致力于做建筑,盖建筑物,期望达到尽善尽美。” ——彼得.卒姆托。“乡建”这个词仿佛一夜之间炙手可热,随着乡村建筑迅猛发展,各种各样的乡建理论众说纷纭,百家争鸣。我们反而更喜欢瑞士建筑家彼得.卒姆托的这句话。相信去过瓦尔斯浴场的人无不为之震撼,然而你却看不到一点瑞士民居的形式感。但这一点儿也不影响瓦尔斯浴场成为一座传世的经典之作。正是基于这样的理念,我们设计了莫干山叠云度假酒店,希望在莫干山脚下盖一座美丽的房子。
"I don’t do the building from the point of view of the theoretical definition. I am committed to building, building, hoping to achieve perfection. “——Peter Zumthor.The word “township construction” seems to be hot overnight. With the rapid development of rural buildings, various theories of rural construction are diverse and contending. We love more Swiss architects Peter Zumthor’s this sentence. I believe that the people who have been to the Waals bathhouse are all shocked, but you can’t see a sense of the form of the Swiss dwellings. But this does not affect the Waals bath as a classic. It is based on this idea, we designed the Mogan Mountain stack cloud Resort Hotel, hope to build a beautiful house at the foot of mo.
▼堆叠的盒子,a box-stacking game
民居群,整个村落都建在一个狭长的山坳中。从自然环境到地理位置都得天独厚。原建筑建于上世纪80年代,砖木结构的老房子早已破败不堪,因原建筑与边上民居是连体建造,邻居也都住在里面,而业主希望对其推倒重建。设计师从各方面因素考虑,把新建筑造在远离邻居的另一侧,靠近东边的竹林,对建筑与环境做了新的构思。当下的乡村早已建满了欧式小农居,与我们日益进步的审美有那么一些格格不入。
The whole village dwellings, built in a narrow col. Both from the natural environment to the geographical position are unique. The original building was built in the last century, in 80s, the old brick house already dilapidated, because the original building and on the edge of houses are conjoined construction, neighbors also live there, and the owners hope for its reconstruction. From various factors, the designer made the new building far away from the other side of the neighbourhood, near the bamboo forest in the East, and made a new idea of the architecture and the environment. The current countryside has been built up with European and small farmers, which are so incompatible with our progressive aesthetic.
▼建筑外貌,exterior view
设计师希望这个建筑具有当代性与前瞻性,而不是裹挟在乡村建造的潮流中。新的建筑用途是要做为一间度假酒店来使用,每个房间都要有景致与阳光。在有限的占地面积上要建造出一间有8个房间,功能齐全的小型度假酒店。房子依地势而建,架在山脚下,面朝群山而立。长条形的BOX叠加而起,错落有致。酒店的名字“叠云”也是因此而来,一层层叠加到云端。因建筑背靠茶山,设计师把底层留做车库与厨房以抬高建筑的高度,增加日常使用区域的采光。看似简单的BOX叠加,其内部的动线还是经过严谨思考的,各种不同的房型满足客户的不同需求。混凝土色的外立面材质,给建筑增加了几分冷峻感,在众多的民宅中格外显眼,独特而又不突兀。静静的藏于这历史悠久的莫干山小镇中,犹如山水间的一座雕塑。建筑到室内一次性完成,避免了很多建筑与室内衔接不上的尴尬,项目历时两年,直至今日的成品所见。
The designers hope this building has a contemporary and prospective, rather than in the village built in the trend of coerced. The new architectural use is to be used as a resort hotel, and every room has a view and sunshine. In the limited area, a small resort hotel with 8 rooms and full functions should be built. The house was built on the ground and stood at the foot of the mountain, facing the mountains. The long strip of BOX is superimposed, and it is wrong. The name of the hotel is the superposition of the cloud, which is superimposed on the clouds. Because of the building designers in the bottom left back Dasan, as a garage with the kitchen to raise the height of the building, increase the daily use of regional lighting. The seemingly simple BOX stack, its internal circulation or after careful consideration, various Fangxing to meet the different needs of customers. The concrete coloured facade material has added a few cool sense to the building, especially in the many houses, unique and unobtrusive. Quietly hidden in this long history of the town of Mogan Mountain, like a landscape between a sculpture. The building is completed in one room at one time. It avoids the embarrassment of many buildings and indoor connections. The project lasted for two years, until the finished product is seen today.
混凝土外墙增加建筑的冷峻感,the concrete wall contributes to a cold aesthetic
▼与竹林相映成趣,communication with the bamboo forest
室内设计沿用建筑工业风的气质。一楼的公区,强烈的黑白灰色调,冷冷的工业感。裸露的水泥材质与黑色钢板,渐变马赛克和谐的相处在同一个空间里。吧台除了做为接待空间以外,也是餐厅与咖啡吧的操作区,这是一个多功能空间。餐厅与客厅中间,一整面黑色的钢板墙体很好的区分功能,又相互可以无界限的互动。墙中间还放有一个酒精壁炉,冬日里点上一炉火光,一冷一暖,温度刚刚好,开part和聚会都毫无压力。墙上挂的超现实主义油画,增添了一点点空间的神秘感。无论四季如何变幻,坐在室内遥望满山景色,喝上一杯咖啡,不失为一种情趣所至。室外配还有露天泳池,夏日里度假的必备良品。
The interior design follows the architectural style of the building industry. The first floor of the public District, strong black and white gray tone, cold industrial sense. The bare cement is in the same space as the black steel plate, and the gradual mosaic of the mosaic. In addition to serving as a reception space, the bar is also the operating area of the restaurant and coffee bar, which is a multi-functional space. In the middle of the dining room and the dining room, a whole black steel plate wall has a very good distinguishing function, and there is no boundary interaction. There was an alcoholic fireplace in the middle of the wall, a fire light on the winter day, a cold and warm, just a good temperature, and no pressure to open part and party. The surrealistic painting on the wall adds a sense of mystery to a little bit of space. No matter how four changes, the sitting room overlooking the mountain scenery, drink a cup of coffee, and is a kind of taste. There are outdoor swimming pools and a good holiday in summer.
黑白灰色调冷冷的工业感,the color of black, white and grey contribute to a industrial atmosphere
▼吧台做为接待空间和餐厅与咖啡吧的操作区,the bar table act as both reception and operation table for bar
▼黑色的钢板墙体区分功能空间,a black steel wall divided the place into different functions
▼餐厅和客厅,the living and dining room
通过钢板楼梯我们来到二楼的客房区,客房共8间。统一协调的工业风混搭设计,每间房间都用不同的“云”命名,观云、过云……不同的房型,不一样的景致,也带来不一样的心境。暖灰的马来漆墙面,顶面、地面都采用实木地板,配上橙色的皮质床靠背,工业风浓重的吊灯。这一切并无违和感,反而显得相得益彰。
Through the steel plate staircase, we come to the two-floor room area with 8 rooms. A unified and coordinated design of industrial wind and Mashup, each room is named after different “clouds”. Warm gray Malay varnish wall, top surface. The ground uses solid wood floors, with orange corticoad backrest, and heavy industrial chandeliers. All of this is no sense of violation, but appear to complement each other.
▼暖色调客房1,the warm tone bedrooms 1
客房2:与景观对视,bedroom 2: view connections with the nature
▼客房3,bedroom 3
LOFT房间是最大一间客房,可供亲子与家人一起入住。黑色极简的楼梯贯穿上下,在相互保有私密性的同时又可以相互走动,增添气氛。卫生间白色的色调,干净简练。直面竹林,可以享受泡澡沐浴时的野趣。夏日的夜里满天星辰,呼吸着山间清润的空气,能忆起童年的种种趣事。度假酒店的感受,大抵因是如此吧!
LOFT房间是父母陪伴孩子入住的最大房间。黑色极简风格的楼梯贯穿上下,在保持彼此隐私的同时,可以自由穿梭并增添氛围。卫生间的白色调干净简洁。面向竹林,可以在野外享受沐浴。夏夜星空下的夜晚,呼吸山间的湿润空气,可以回忆起各种各样有趣的童年。度假酒店的感觉如此浓郁,正是因为有了它。
LOFT房间上层卧室,the bedroom on the upper level of the loft room
▼黑色极简的楼梯贯穿上下,the black stairs connects the floors
▼卫生间,bathroom
每个时代的生命力不同,它都有自我的节奏。在不断的变化中,显得十分顽强。设计亦是一种,无论建筑设计还是室内设计,都能适应这个变化,并不断的去完善与创新。在城市化洪流的今天,逃离都市,隐与山水,已成为都市一族的生活新常态。
The vitality of each era is different, and it has the rhythm of self. In constant change, it is very tenacious. Design is also a kind, both architectural design and interior design, can adapt to this change, and continue to improve and innovation.In today’s urbanized flood, the escape of the city, the hidden and the landscape, has become a new normal life for the city’s family.
▼酒店的夜幕十分,night in the hotel
▼模型图,model
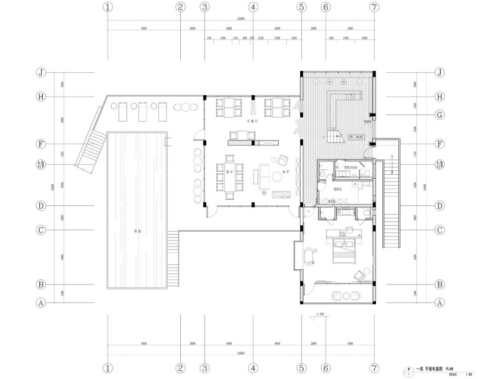
一层平面图,the first floor plan
▼二层平面图,the second floor plan
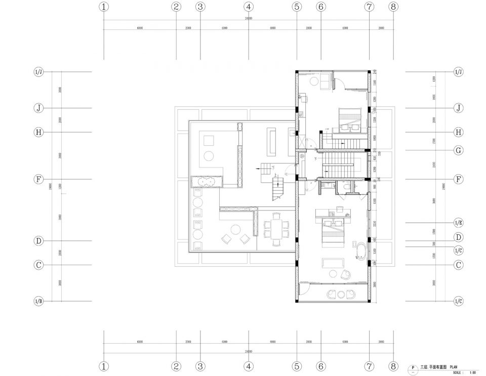
三层平面图,the third floor plan
项目名称:莫干山叠云度假酒店
建筑设计:ZW建筑设计工作室
室内设计:ZW建筑设计工作室
地点:德清.莫干山
面积:600㎡
设计机构:ZW建筑设计工作室
主创设计:周伟
团队设计:照夜白 程玲 雪花
完成时间:2017.10
摄影:贾方 唐徐国
Name of the project: Mogan Mountain DIEYUN Resort Hotel
Architectural design: ZW architecture design studio
Interior design: ZW architecture design studio
Location: Deqing. Mogan Mountain
Area: 600 square meters
Design agency: ZW architecture design studio
Creative design: Zhou Wei
Team design: Zhao Ye Bai Cheng Lin Xue Hua
Completion time: 2017.10
Photography: Jia Fang Tang Xu Guo
客服
消息
收藏
下载
最近


























