查看完整案例


收藏

下载

翻译
together with Paris based architecture studio
, have been announced as winners of a two-stage restricted competition for the renovation and extension of the events hall at the City of Romainville in Paris, France.
This competition organized by the Municipality of Romainville, aims to diversify the set of activities provided to its inhabitants and equip the town with a contemporary, flexible space. With an innovative spatial response to the brief and conversion of the building and its exterior surroundings into a vibrant social environment, EMBT + Ilimelgo, were chosen to helm the project.
Start of construction is planned for 2018.
The project we are proposing is the result of our reflection on the challenges of the program, the urbanism of the town of Romanville but also on improving the quality of life and imagining a positive impact this new equipment can contribute to the future of the neighbourhood.
We focused on the context and the relation that the new event and modular halls could establish with the foyer, the avenue Paul Valliant Courtier, and the garden with its view to the former quarries.
From an urban point of view our proposal focuses on two main strategies:
- Renovating the front façade of the building, creating more transparency, and offering a view to the garden.
- Creating a dialogue between the extension of the building and the pedestrian path leading to the back of the site and the children’s playground.
By means of a historical study of the site, we came up with the conclusion that the existing event hall should be more visible and more easily appropriated by the town’s residents.
Such a public establishment would require a generous and visible entry.
Furthermore, the program includes a playground which should be accessible to everyone. Therefore, the main building should create a direct passage to the playground in the back of the plot.
The aim of this idea is to change the nature of the current building called ‘salle des fêtes’ into an entrance space, creating a dialogue between the street as a public space, the semi-public garden and the more private space of the halls and work areas. This is achieved by the permeability of the main façade, allowing glimpses of the garden and the landscape of the ancient quarries.
Relieved of its current use, the previous ‘salle des fêtes’ changes its programme and transforms into an extension of the public space, becoming a place of meeting as well as a threshold space. The transparent façade creates a visual connection to the garden in the back. Half of the building serves now as an open air transitional space to the playground in the back, while the other houses the foyer of the new event hall.
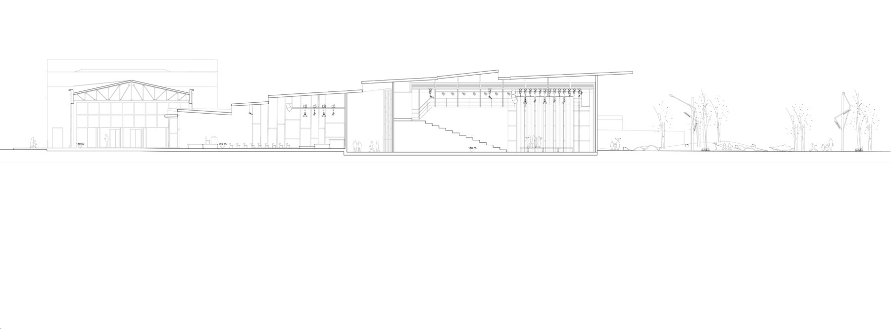
The extension side of the project constitutes of the event room and the modular room. Its aim is to focus on the relation between these new elements, the garden and the landscape, as we identified the latter as the most important asset this site has to offer.
The extension also comprises a prolongation of the east wing of the building. This new volume will be placed at the east edge of the plot and houses the offices and logistic spaces necessary for the functioning of the two halls. As these two halls are placed in the centre of the garden, the west side remains an open-air landscape. Furthermore, this arrangement establishes a visual connection to the playground of the Anatole France School, which makes the garden look even more ample.
The path between the Paul Vaillant Couturier Avenue and the playground at the end of the plot is the leading thread throughout the project. A walk through the landscape of the garden crosses a variety of slopes and ramps following the natural layout of the terrain, as well as the different inclinations of the facades.
To maximize the use of the outdoor space, a small plaza has been placed between the modular hall and the event hall, which allows for some events to take place outside.
Finally, the playground has been placed on a slanted topography to the west of the site, towards the elementary school, and on the paved area north-west, thus creating a complex small-scale landscape.
1. Dialogue between the restored elements and the extension.
A dialectic understanding of balance and tension when it comes to the relationship between the old and the new guided our response to the brief. The expression of this conceptual choice manifests in the renovation of the industrial hall, on the one hand, and the construction of the event spaces, on the other.
The selection of elements to preserve and restore is dictated by their distinctive character. We analysed the regulating and compositional orders of the existing building, a process explained in detail in the memorandum.
Additionally, we decided to give new life to the façade towards the Paul Vailland Courtier Avenue while keeping to its original character. We maintain the original brick pillars in their full height, as well as the top concrete attic. The façade’s different levels of enclosure (between glass, perforated metal cladding and entirely open areas), play on the idea of transparency.
As for the two individual halls, their multifaceted silhouette is divided into large triangular panels, cut following the outline of a chestnut leaf. The facades and roofs of these structures help form a built landscape within the natural landscape of the garden.
2. A functional layout
Our idea was to restore the current event space to its original function of covered hall, displaying its entire volume and original structure. This new vital space formally articulates the entire project, as well as functionally organising the access to different elements of the program.
On the one hand, the access to the kids’ future playground is set under a large hall, corresponding to half of the surface of the current event room. This hall distributes the visitors towards the garden, the house of philosophy, and potentially to a local association, as previously demanded in the client.
The other half of the existing building’s hall space becomes a foyer connected to the ticket office, a bar, and the event and modular halls. The management offices are on the first floor, overlooking the interior double height. In continuation of the east wing of the existing building, additional office and technical spaces, as well as the artists’ corner, are located on two floors. They irrigate the performance halls with the material supplies they require, while remaining out of sight for the public.
The access to the logistics needed to be continuous, efficient and discreet. Therefore, we preferred using the possible passage on the west of the elementary school for the supply vehicle access.
# # #
Palais des Fêtes de la ville de Romainville - City of Romainville’s Events Hall
October 2017
Location: Romainville, París (FR)
Client: Municipality of Romainville
Lead architect: Miralles Tagliabue EMBT
Associate architect: Ilimelgo
Design team: Vincenzo Larocca, Alessia Apicella, Ana Otelea, Marzia Faranda, Andrea Marchesin, Valentina Frigeni, Sara Mucciola, Marco Loretelli, Yasmine Fahmy.
Scenography: Tourny
Landscape design: Land’Act
Acoustique: AVLS
Bet: EPDC
Area: 2600 m2
Budget: 5 M€
客服
消息
收藏
下载
最近




















