查看完整案例


收藏

下载

翻译
Cloud Valley Hub is a mixed-use scheme comprising meeting rooms, exhibition space, retail, offices and amenities.
The building is located in the heart of Cloud Valley, a new e-commerce district on the outskirts of Ningbo. The building’s initial role was to market and promote the Cloud Valley district, signifying the start of development while expressing the spirit of a new emerging economy.
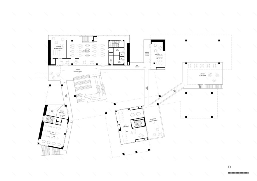
Due to the challenging site conditions, Studio Woodroffe Papa raised the meeting rooms and exhibitions spaces off the ground, connected by a ring of circulation around a central courtyard. On the ground floor, retail, restaurants and amenities are arranged as a series of pavilions that populate an urban landscape with gardens and plazas where people can meet and interact.
Studio Woodroffe Papa proposed this arrangement to challenge, in a playful way, typical notions of Chinese object making and use of public space. The distinction between inside and outside is blurred and a multi-levelled landscape with different sized plazas, courtyards, terraces diversifies the social and circulation spaces.
The material expression of the building enhances these differences further: the two lower levels are clad in dark metal profile. Above, the continuous floor to ceiling glazing and silver profile metal suggest a hovering ‘cloud’.
The combination of built form and open space fosters a feeling of community and enhances the user experience. The creation of a hard landscape across the site with pockets of soft, green spaces embedded in the surface sets up a flexible environment where visitors can gather for formal and informal events. The landscape uses natural materials – timber decking and natural stone – that will change in appearance over time.
客服
消息
收藏
下载
最近


























