查看完整案例


收藏

下载
该项目是巴塞罗那的新体育中心,由AIA、Barceló Balanzó Arquitectes和Gustau Gili Galfetti三家事务所共同设计,醒目的便民设施为城市创造了新的公共空间。设计方案利用半地下空间,有效地解决了在高密度环境的有限地块中建造一栋大体量建筑的问题。建筑体积、百叶遮阳、交叉通风等设计降低了能耗,获得了LEED(能源与环境设计先锋绿色建筑评价体系)的金牌认证。
The team made up of AIA, Barceló-Balanzó Arquitectes and Gustau Gili Galfetti designs Camp del Ferro, Barcelona’s new sports centre, a visually striking amenity that brings public space to the city. The density of the location, the limited dimensions of the site and the large scale of the brief—the problems tabled by the commission—are counteracted by a useful design solution that consists of semi-undergrounding the facility. Decisions such as the volume of the building, the use of lattice walls for solar protection and the existence of cross ventilation serve to minimize energy requirements and earn LEED Gold certification.
▼建筑鸟瞰,aerial view © Simón García
2015年,AIA事务所的建筑师Albert Salazar Junyent和 Joan Carles Navarro、Barceló Balanzó Arquitectes事务所的建筑师Antoni Barceló和 Bárbara Balanzó以及负责施工的Gustau Gili Galfetti合作的设计方案赢得了由BIMSA巴塞罗那市政基础设施工程部发起的竞赛。该项目于2017年开始施工,占地面积为7237㎡。目前刚刚落成,成为圣安德鲁区新的便民设施,设有三个室内运动场,以及一个与运动场紧密相连的公共空间,更加便捷可达。考虑到需要在高密度环境的有限地块中建造功能复杂的大体量建筑,设计团队权衡利弊后决定将体育中心的大部分空间置于半地下,并通过功能布局确保了良好的采光、自然通风和疏散可达性。这种半地下的形式还为自身以及街区和城市带来了显著的好处,不仅减少了巨大体量造成的视觉冲击,还创造了城市公共空间,激活了周围环境。这片自由的区域起到重要作用,很好地解决了复杂地块的可达性问题。
▼总平,site plan © AIA + Barceló Balanzó Arquitectes + GGG
The project by architects Albert Salazar Junyent and Joan Carles Navarro (partners at AIA), Antoni Barceló and Bárbara Balanzó (members of the Catalan practice Barceló-Balanzó arquitectes) and the architect Gustau Gili Galfetti for the construction of the Camp del Ferro municipal facility in the Sagrera neighbourhood (Barcelona) won first prize in the public competition announced by BIMSA in 2015. Construction of the work, with a surface area of 7,237 m2, began in 2017. Now, recently inaugurated, it provides the Sant Andreu district with an amenity that includes three sports courts and a public space that improves accessibility and connection with the new infrastructure.Given the large volume required by the extensive functional brief of the Camp del Ferro in relation to the limited dimensions of the site and the density of nearby buildings, the team of architects, after weighing the advantages and disadvantages, decided to semi-underground much of the sports complex. This intervention, by means of section mechanisms, ensures good lighting, natural ventilation and ease of access or evacuation of the lower areas. It is also a design decision that brings notable benefits to the amenity, the neighbourhood and the city, since, apart from reducing its visual impact, it generates a public space that acts as an urban foyer for the complex and facilitates movement around it. This free area is essential, comfortably addressing the issue of access and the complicated urban fabric of the enclave.
▼正立面,main facade © José Hevia
建造追溯传统记忆,选用当地工厂、仓库和工坊中常见的砖材。由于财政紧缩政策,当地大多数建筑的墙体直接构成外表皮,不附加多余的装饰元素。该项目的外立面选用耐久性良好的砖材,将不同样式和颜色的砖以虚实交替的形式砌筑成不透明、半透明和全透明的墙体。
The chosen construction process recovers the memory of local traditions by using a material such as brick, very common in the old neighbouring factories, warehouses and workshops. Adopting the criteria of austerity of resources and means, in much of the building the construction system itself constitutes the finish, avoiding superposed elements. The same goes for the façades of bare brick, a material that ensures good aging and long life. At the same time, with the aim of lightening the whole in all of its façades, the design alternates empty and full, opaque, translucent and transparent parts, and bricks of different formats and colours.
▼侧立面,side facade © Simón García
▼外观,红砖虚实交替 © José Hevia
external view,red brick alternating empty and full
▼从室外看向入口门厅,view to the entrance hall from exterior © José Hevia
▼细部,details of facades © José Hevia
建筑布局清晰,包括分布在上下两层的运动场、排布在中心的服务和储藏等小尺度空间、交通空间以及设备用房,形成了容纳不同大尺度空间的紧凑形体。
The organization of the different areas of the brief is very clear in the longitudinal section of the building and in the floor plan, involving not just the superposition of the sports courts, but also the arrangement of a central volume containing all the smaller scale elements (services and storage, etc.), communications (vertical and horizontal) and installations. This is a compact volume that separates large-scale elements in the floor plan.
▼入口层,entrance floor © Simón García
▼底层运动场,lower sports court © José Hevia
▼上层运动场,upper sports court © José Hevia
体育中心的半地下部分促进了能源与环境的和谐统一。首先,暴露在室外的表面积减少,整体的热惰性增大,从而使室内温度波动相对恒定。其次,大量玻璃窗和天窗外覆盖红砖百叶和植被,有效的控制了自然光,使运动场免受直射光的影响。然后,不同空间通过交叉通风和分层排布形成了自然热控机制。能源生产系统利用可再生能源,优化了水资源的使用和消耗,建造与设计中应用合理利用能源的高效技术,将建筑的能耗降至最低。
Finally, one more deliberate and intrinsic consequence of semi-undergrounding part of the building that houses the Camp del Ferro sports centre is the energy and environmental gain. Firstly, as the exposed surface decreases, the thermal inertia of the whole increases. Secondly, much of the surface enjoys controlled natural light thanks to large glazed openings and skylights protected by brick lattices and plant species that prevent direct sunlight and glare in the sports courts. Then the morphology and the situation of the different spaces that make up the building employ cross ventilation and stratification as the natural mechanisms of heat control. Renewable energies are harnessed for the energy production systems, the use and consumption of water are optimized, efficient techniques for rational energy use have been implemented and, in its construction and design, the building’s ecological footprint is reduced to a minimum.
▼底层平面,lower floor plan © AIA + Barceló Balanzó Arquitectes + GGG
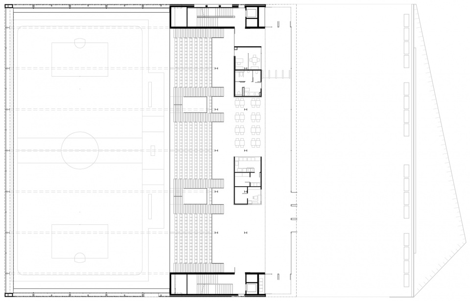
▼入口层平面,entrance floor plan © AIA + Barceló Balanzó Arquitectes + GGG
▼上层平面,upper floor plan © AIA + Barceló Balanzó Arquitectes + GGG
© AIA + Barceló Balanzó Arquitectes + GGG
客服
消息
收藏
下载
最近

















