查看完整案例


收藏

下载
来自
Kadarik Tüür Architects
Appreciation towards
Kadarik Tüür Architects
for providing the following description:
来自爱沙尼亚的Arcwood by Peetri Puit公司致力于工程木材的生产,包括层压木和CLT板等,其中很大一部分是为客户专门定制。Arcwood的新工厂于2016年在爱沙尼亚南部的Põlva建立。
Arcwood by Peetri Puit is an Estonian company that produces engineered wood products from laminated wood to CLT panels with a big part of the work being custom made orders. Their new factory, opened in 2016, is located in Põlva, southern Estonia.
▼项目概览,general view ©Kadarik Tüür Architects
公司最初打算建造两座独立的建筑,包括办公楼和一座简洁的工厂。随着项目的推进,这两座建筑被合为一体,其中办公楼为公司员工和工厂工人们提供了一个美观的公共入口。一系列圆柱在正门处构成了独特的景观,并一直延伸至庭院内部。
Initially, the intention was to build two separate buildings – an office and a simple factory building. During the work process, those two merged together with the office block acting as a presentable entrance for both employees of the office as well as workers of the factory. Cylindrical columns in front of the door create a unique landscape that continues in the courtyard.
▼一系列圆柱在正门处构成了独特的景观,cylindrical columns in front of the door create a unique landscape ©Kadarik Tüür Architects
▼柱廊细节,detailed view ©Kadarik Tüür Architects
▼柱廊夜景,night view of the columns ©Kadarik Tüür Architects
建筑整体均采用木头建造——层压木材用于主要的承重结构,CLT板则用于墙壁,所有的结构都清晰可见。外部的木制元素通过一层玻璃立面来抵御日晒和风雨的侵袭,营造出一个半户外半室内的空间,员工们可以将其用作阳台。
The entire complex was constructed out of wood – the main load-bearing construction is made from laminated timber while CLT panels are used for walls. All of the structures are displayed and visible. Exterior wood elements are protected from the sun, wind and rain with a double facade made out of glass. This creates a half exterior half interior space that can be used by the employees as a balcony.
▼外部的木制元素通过一层玻璃立面来抵御日晒和风雨的侵袭 ©Kadarik Tüür Architects
exterior wood elements are protected from the sun, wind and rain with a double facade made out of glass
▼结构细部,structural details ©Kadarik Tüür Architects
▼圆柱细部,column detailed view ©Kadarik Tüür Architects
木材作为主题贯穿了整座建筑,包括办公室和工厂区域的室内空间。裸露的木制结构创造出温暖亲切的氛围,改变了生产设施通常带给人的冷清印象。天窗位于办公台的正上方,为封闭的工厂引入了一些自然光线。
Wood is a primary theme throughout the complex, it continues in the interior architecture, in the office block, as well as in the factory part of the building. Bare wood construction elements create a warm and friendly interior space in the usually cold and empty production facility. Skylights, located right above the workstations, let in some natural light to the closed factory.
▼办公区域大厅,office lobby ©Kadarik Tüür Architects
▼楼梯,stairs ©Kadarik Tüür Architects
▼工厂区域,factory interior view ©Kadarik Tüür Architects
▼建筑夜景,night view of the building ©Kadarik Tüür Architects
▼办公楼柱廊夜景,view to the colonnade by night ©Kadarik Tüür Architects
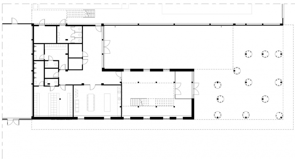
▼一层平面图,plan 1F ©Kadarik Tüür Architects
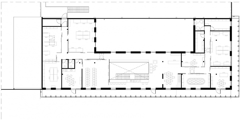
▼二层平面图,plan 2F ©Kadarik Tüür Architects
Client: Peetri Puit Oü
Year: 2014-2016
Status: Built
Locaction: Põlva, Estonia
Size: 8800m2
Team:
Aleksei Petrov;
Priit Hamer
; Krista Kohv
; Harri Kaplan;
Ott Kadarik
; Mihkel Tüür
Interior design:
Kadri Tamme
; Liis Saarnak;
Harri Kaplan
Engineering:
Laur Lõvi
; Indrek Mäe
Builder:
Vilcon Ehitus Oü
客服
消息
收藏
下载
最近


















