查看完整案例


收藏

下载

翻译
The project is located in Tianshan Road, the new commercial boulevard in Hongqiao, one of Shanghai’s high activity districts. It is surrounded by brightly lit shopping malls built this century. This development replaces and expands on the existing state run cinema centre on the site. The project was the subject of three rounds of invited competition over 5 years before BAU was contracted to design the project.
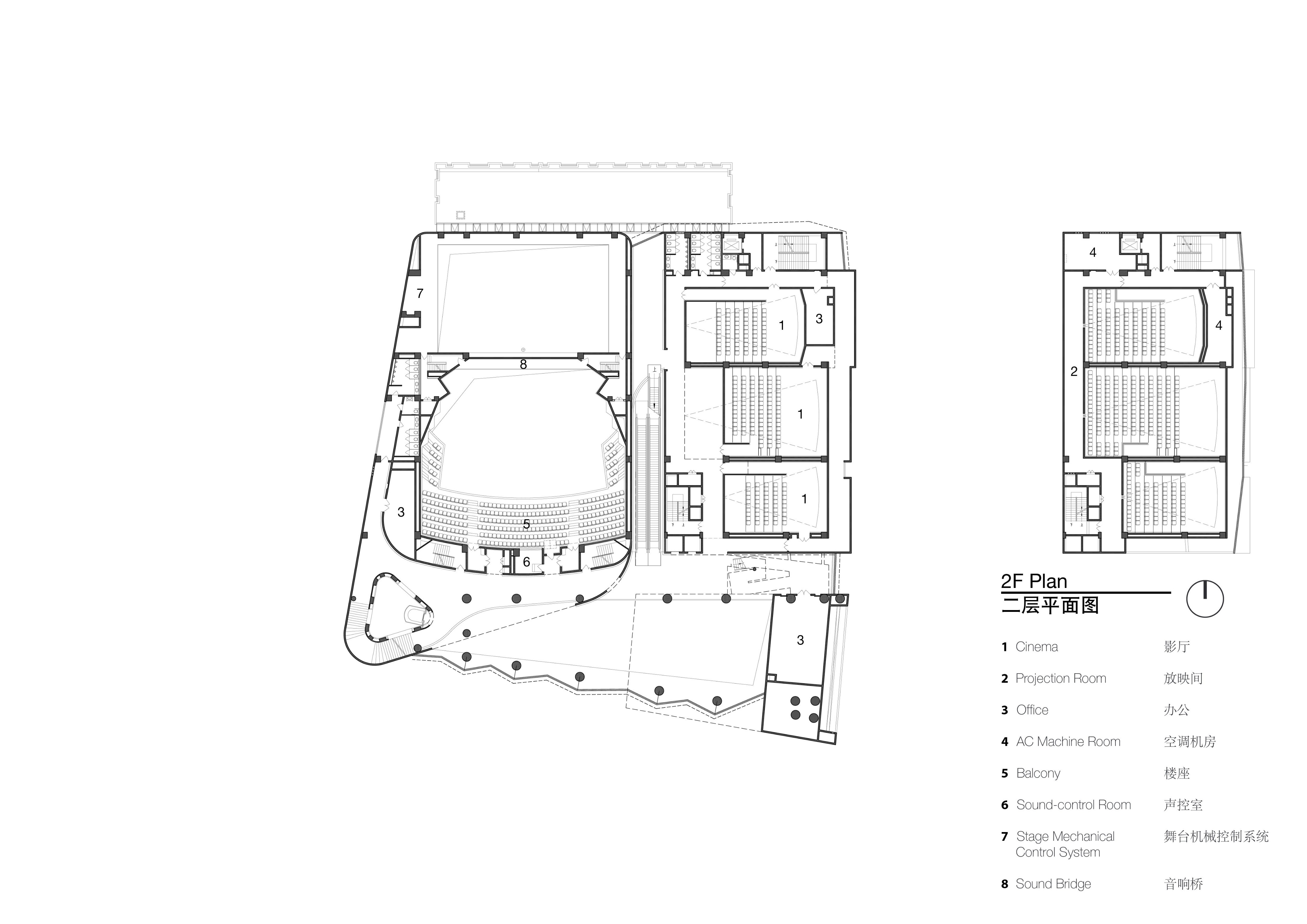
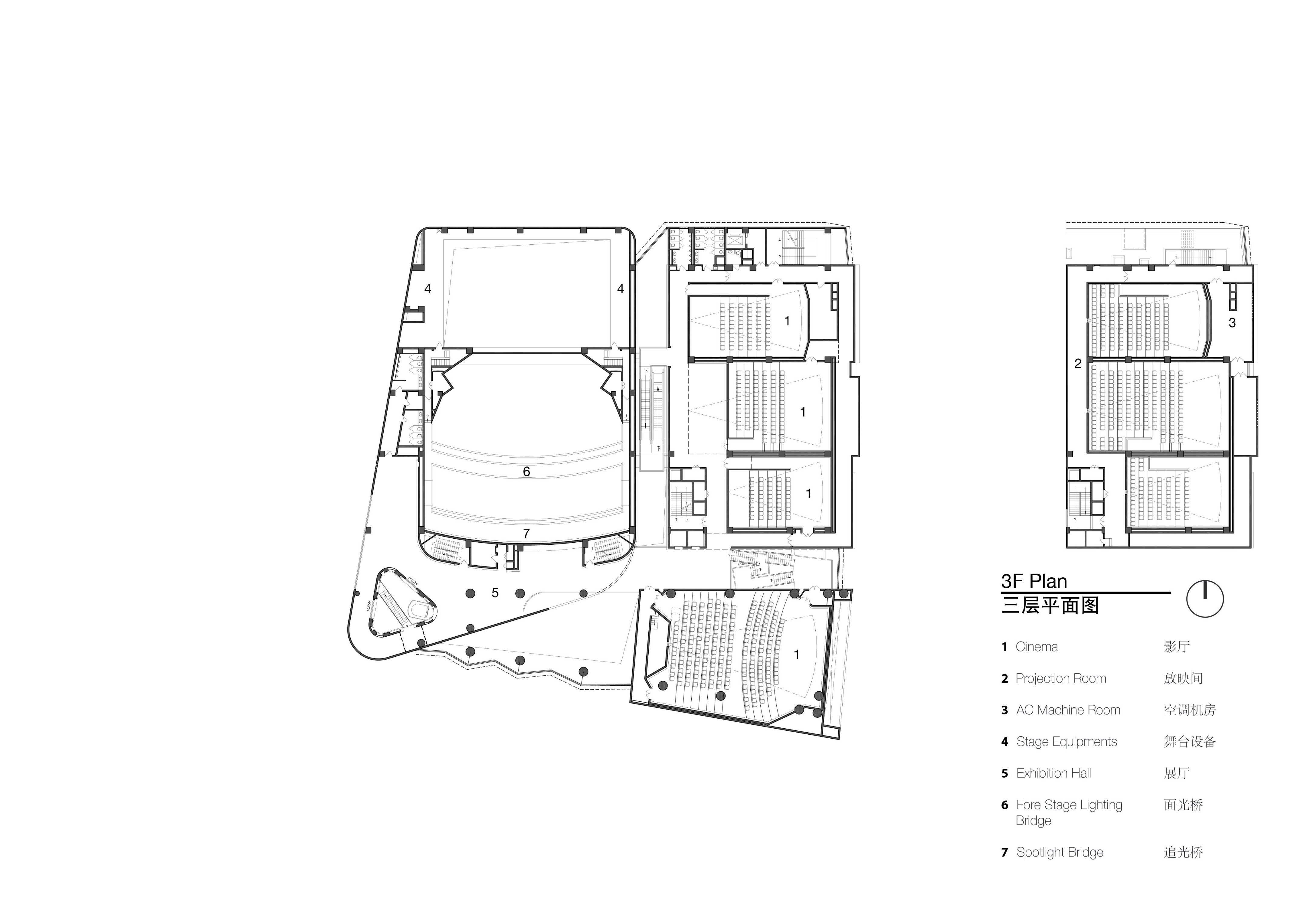
This project includes both traditional and modern programs of mass entertainment: theatre (1000 seats) and cinema (seven of various capacities). Usually seen as separate programs and increasingly supported by distinctly different user groups, this project presents the opportunity for the two different programs and variable patrons to engage. Articulating the programs as separate objects and linking them via an enclosed plaza creates an in-between-space in which the differences between the programs are enhanced, the potential for cross-patronage is maximised, and cross-fertilisation between the performing arts is encouraged.
The theatre is developed as a stone monolith (a traditional material for a traditional program) with rounded articulation and a theatrical staircase. The cinemas are an ensemble of stacked metal boxes (a 20th Century material for a 20th Century program), the largest of which is suspended above the street corner. The enclosed plaza or mixing-lobby has ticket offices, café, flexible exhibition and event space, and open views to the external plaza and streetscape, also designed by BAU.
Type: Theatre + Cinema Complex
Project Status: Completed 2016. Design commencement 2006.
Location: No.888 Tianshan Road, Changning District, Shanghai, China
Year: 2006-2016
Client: Shanghai Changning Cultural Bureau Area: 14,300sqm
Program: 1000-seat theatre x1; 7 cinemas (264 seat x1, 172 seat x2, 105 seat x1, 95 seat x2, 44 seat x1), café x2, offices, 50 lot underground parking x 1
Sustainability: China MOHURD 2 Green Stars Accreditation
Architecture : Jiang Han, Song Hui, Luo Huaili, Liu Shuai, Rong Yu, Steve Whitford, James Brearley
Landscape: Robin Armstrong, Luo Li, Chen Qi, Li Shu Yun, Xiong Juan
Interior Design: Zou Yu Hai, Emma Rytoff
Interior Architect: BAU + Shanghai Jianke Architectural Design Institute Co., Ltd
Documenting Architect and Engineer: Qingdao Times Architectural Design Co., Ltd
Acoustic Consultant: Shanghai Research Institute of Building Science Group
Lighting Consultant: Shanghai KEEY Lighting Co., Ltd.
Theater Stage Tech: Zhejiang Dafeng Industry Co., Ltd.
Cinema Tech: Shanghai Paradise CineTech Co., Ltd.
Building contractor: Jiangsu Guangyu Construction Group
Photographer: Shu He
客服
消息
收藏
下载
最近












































