查看完整案例


收藏

下载
该项目是为五口之家设计的面积为1300M²的住宅,建筑总占地面积1.3公顷,其东边和北边拥有良好的视野,可以远眺大海。场地的两方面地理条件决定了建筑的位置朝向:一方面房屋的背面地块较高,这里也是主要的出入口;而最好的视野的方向是北边和东边,但也是建筑朝向最不利的方向。
▼建筑的屋顶,从街道上刚好可以被看见,the roof of the house being visible from the moment of accessing the property from the street
▼住宅的东边和北边可以远眺大海,the east side and the north side of the house overlook the sea.
On a plot of 1.3ha oriented north and east with good views over the sea, the plan is for a 1300m2 building with a program for a family of five, with complementary spaces for guests and home service.The geographic situation of the plot conditions the location of the house in two aspects: the access from the street is in the back at the higher level of the plot, and the best views are towards the most unfavorable orientations, north and east.
▼建筑概览,exterior view
在这种情况下,房子以一个不规则的布局展开,建筑师设计了一个大天井式入口, 如同一个过滤器,将房屋与街道和较低的地势相隔离,并分隔了房屋本身和入口花园,整个建筑位于场地靠近大海的位置。住宅被设计成带两翼的形态,采用入口大厅相互连接,主楼梯也被安置在其中。卧室朝北,这里拥有绝佳视野去眺望附近的海滩,同时也有一个面向南边的天窗,形成第二个自然采光入口,休息室、餐厅和厨房朝东,可以俯瞰大海。在较低的楼层,住宅配有服务区,以及一个客房,一个游泳池,运动的空间,如桑拿和健身室,以及其他休闲区域,如酒窖和品酒室。
▼住宅入口,与街道相分隔,the residential entrance is separated from the street.
From this circumstance the house deploys an irregularly shaped layout that creates a large access patio, isolated from the street and at a lower level, acting as a filter between the entrance garden and the core of the house, which is located on the lowest level of the plot, closer to the sea. The house then is distributed in two wings connected by the entrance hall, where the main stairway is also located. The bedrooms, facing north, but with excellent views of the nearby beach have also a south oriented skylight which provides a second entry of daylight, while the lounge, dining room and kitchen, are facing east and overlooking the open sea. On the lower floor there is the service area, as well as a guests room, a pool with complementary spaces like a sauna and a fitness room, and other leisure areas like that include a cellar and a wine tasting room.
▼建筑以一个不规则的布局展开,the house deploys an irregularly shaped layout
▼住宅被设计成带两翼的形态,采用入口大厅相互连接,the house then is distributed in two wings connected by the entrance hall
▼整个建筑的几何形状充分体现了“地形”条件,并与花园的其余部分相结合,the overall geometry awards the house with a “topographical” condition in continuity with the rest of the large existing garden.
由于住宅的位置在地势较低的区域,建筑的屋顶成为了第五个立面,这是该建筑最重要的部分,从街道上刚好可以被看见。整个建筑的几何形状充分体现了“地形”条件,并与花园的其余部分相结合。住宅中最主要的朝向和视角部分是在白天活动的区域,客厅和餐厅从入口进入,步行经过内部游泳池庭院,视觉上将客厅的中心空间设置在人工泳池和大海之间。
▼整个建筑由细长的倾斜钢柱支撑,the house supported by thin inclined steel pillars
▼墙壁和天花板由裸露的混凝土建造,walls and ceilings are made of exposed concrete
With the location of the house in the lower part of the plot, the roof of the building becomes a fifth facade, perhaps the most significant one, covered in cooper and being visible from the moment of accessing the property from the street. The overall geometry awards the house with a “topographical” condition in continuity with the rest of the large existing garden.The most significant part of the house, regarding orientation and views is the day-zone area. the living room and dining room are accessed from the entrance by walking around an inner pool-courtyard that visually sets the central space of the living room between two sheets of water, the artificial pool and the sea.
▼入口大厅中的主楼梯,the main staircase in the entrance hall
▼二层的休息室,the lounge in the upper floor
▼朝东的餐厅和厨房,dinning room and kitchens facing the east
▼厨房区域,kitchen view
▼客厅可以俯瞰大海,the living room overlooking the sea.
▼客厅的中心空间设置在人工泳池和大海之间,the central space of the living room between two sheets of water, the artificial pool and the sea
住宅配有宽敞的玻璃,因为作为一个夏季住宅,与周围花园和大海的视觉联系是其需要优先考虑的因素。整个建筑由细长的倾斜钢柱支撑,在截面和高度上与邻近的松林几乎相同。其墙壁和天花板由裸露的混凝土建造,用厚木板、Carrara大理石和灰色花岗岩混合浇铸其上。屋顶采用铜制饰面,包裹着两个建筑主体,并延伸到入口庭院,形成了一个半回廊式的区域,该区域如同沿着走廊的一个开放式的车库。
▼卧室朝北,同时拥有面向南边的天窗,the bedrooms facing north have also a south oriented skylight
▼卧室拥有绝佳视野去眺望附近的海滩,the bedroom with excellent views of the nearby beach
▼厨卫空间细节,the details of bathroom and kitchen
The house is generously glazed as it is a summer residence in which priority was given to the physical and visual connection with the surrounding gardens and the sea. It is supported by thin inclined steel pillars, similar on section and height to the neighboring pinewoods. Walls and ceilings are made of exposed concrete, casted with wood planks, alternating with Carrara marble and gray granite. The roof covered with copper, wraps the two main volumes and extends around the access patio, forming a semi cloister- like area along with the porch designed as an open garage.
▼用厚木板构筑的过道空间,corridor space with wood planks
▼裸露混凝土饰面的楼梯空间,staircase made of exposed concrete
▼空间之间相互渗透,spaces penetrate and merge with each other
▼建筑夜间效果,the building in the night
▼泳池夜间效果,the pool in the night
▼场地平面图,site plan
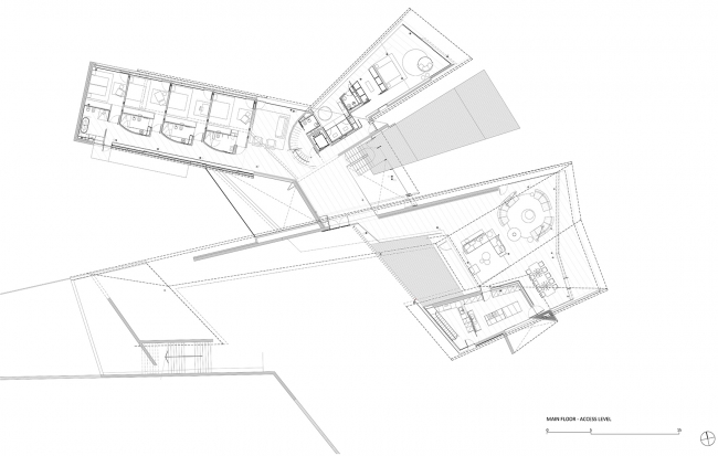
▼首层平面图,plan level 1
▼2层平面图,plan level 2
▼立面图,the elevation
Architects:Fuses-Viader Arquitectes (Josep Fuses, Joan M. Viader)
Project team:Carla Arruebo, Silvina Mayer, Jordi Serra, Josep Ribes, Dolors Bosch, Pilar Arbonés.
Interior design:Montserrat Nogués Arquitecte
Structural engineering:Blázquez-Guanter Arquitectes SLP
Quantity surveyor:Jaume Vila
Photography:Duccio Malagamba
Location: Avinguda d’Andorra, 15. Sant Antoni de Calonge – Spain
Built area: 1.380 sqm
Site area: 13.200 sqm
Project: 2007
Construction: 2008-2011
客服
消息
收藏
下载
最近








































