查看完整案例


收藏

下载
来自
小大建筑设计事务所
Appreciation towards
kooo architects
for providing the following description:
设计项目是一间提供无农药茶叶的茶馆,位于中国杭州。
The project we designed is a teahouse that specially provides non-pesticide tea, it located in Hangzhou, China.
▼茶馆外观,overview ©Kano Eiichi
杭州是有名的龙井茶产地,在西湖边就可以看到陡峭的茶山,山上散布着一片片梯田。我们因此联想到把这梯田的气魄带进茶馆内。
Hangzhou is one of the famous production areas of Long Jing tea. Those steep tea hills can be seen on the edge of the West Lake. In those tea hills, many pieces of terraces farming are scattered around the hills. Inspired by terrace fields, we though we can bring these great landscapes into this design program tea house.
▼室内设计以西湖边茶山上的梯田为意象,the design was inspired by the terrace fields in tea hills on the edge of West Lake ©Kano Eiichi
▼将梯田的气魄带入茶馆,the landscape of terrace fields was brought into the tea house ©Kano Eiichi
商品的展示柜由用意大利产的灰姑娘色大理石和有透明感的波纹玻璃板组装的小柜子以不规则的高低差组合在一起做成,营造出杭州山水的风景特色。
The designed furniture for teahouse like display case which has local landscape feature. The materials we used includes the Cinderella color marble which is Italy made, combined with corrugated and misty glass pane to make separate cabinet, then group theirs with different height level into display cases.
▼展示柜使用了大理石和波纹玻璃,marble and misty glass pane were used in the display case ©Kano Eiichi
▼营造杭州山水的风景特色,a Hangzhou-styled landscape ©Kano Eiichi
▼茶台细部,detailed view of the tea table ©Kano Eiichi
大圆桌的直径为6.2m,桌面使用人工大理石层层堆砌,呈现出梯田一般缓和的起伏。在桌面凹槽内注入水,随着高低深浅的差异,将看到水的颜色也产生渐变。在人口密集的商业中心里,为了让客人能在喝茶的这片刻中享受充足的空间的余地,所以有了这样距离感的设计。
The diameter of the round table is designed into 6.2m. And table’s surface was made up by overlaying pieces of artificial marble, which presents gradual fluctuation of terrace farmings. then injected water into the groove in surface of the table. With the different height level of the groove in the table, the color of water is different. The project located in the commercial and populated city, so we are trying to use this distance design in order to let people enjoin enough space.
▼人工大理石圆桌,round table made of artificial marble ©Kano Eiichi
▼注满水的桌面,the groove in the surface filled with water ©Kano Eiichi
▼VIP茶室,VIP tea room ©Kano Eiichi
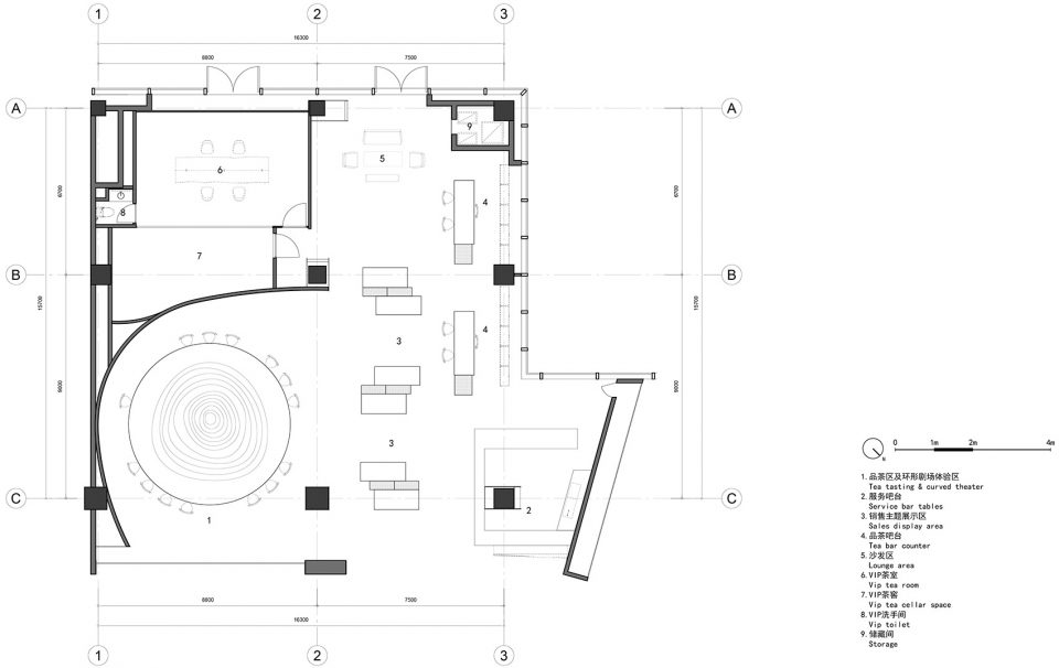
▼平面图,plan
Project name: TEA MASTER
Architect’s Firm: kooo architects
Project location: WenyixiRoad969, Hangzhou, China
Completion Year: 2018
Gross Built Area (square meters or square foot): 140sqm
Lead Architects: KOJIMA SHINYA
Other participants: KITAKAMI KOTARO, HONGDI LIN, ZHIJUN WANG
Clients: EARTH & PEOPLE TEA STORE
(eg. collaborators, clients, consultants, etc):
Photo credits: Kano Eiichi
客服
消息
收藏
下载
最近















