查看完整案例


收藏

下载
序言-空间诞生的时刻
Introduction – the birth of space
空间出现的时刻到底是客观的逻辑建立,还是在时间的变化中由主观的反思性介入而浮现出来,在事务所的日常思考中,这成为我们的核心性讨论。在之前完成的留云草堂这一项目中,我们试图将心理的图解直接生成了空间的核心结构逻辑。今年,我们得到一个机会,去探讨改造设计的这另一种思路,即如何与时间对话。
Space is a logic, or by subjective intervention in the change of time, this becomes the core of our discussion in the office everyday thinking. In this project, we tried to directly generate the core structure and logic of the space. This year, we’ve got an opportunity to explore another way of renovation: how to talk with time.
▼空间概览,overview
背景-120年老厂区的历史如何被“再呈现”?
Background – how does the history of the old factory area be “represented”?
中车1897文创园位于北京丰台区的二七机车厂内,整个百年厂区的生产区域整体逐步将改造为巨大文创园区,普罗建筑被委托进行示范区的整体建筑改造和规划,未来整体开发将遵循示范区的改造思路和原则进行大范围的推广。C19号厂房位于启动区核心,被计划改造成第一个示范展示中心。这些老房子们见证了工业化的辉煌和转变。历史是抽象的,甚至是符号化的,但是我们觉得原始的空间意图却是能感知的,能表达的。这些老房子在建造时意图是明确的,而新的功能植入则表现了新的使用的意图,新意图如果能够尽量的容纳老的历史的意图的继续存在,在我们看来,即是改造对原始建筑历史的有态度的“再呈现”。
Zhongche 1987 park is located in Beijing fengtai 27 locomotive plant, the entire factory production area as a whole will be gradually transformed into a huge park. PROJECT was commissioned to renovate the demonstration area. Development future will follow the demonstration area renovation. No.C19 plant is located at the core of the start-up area and is planned to be transformed into the first demonstration center.These old houses witnessed the glory and transformation of industrialization. History is abstract, even symbolic, but we feel that the original spatial intention is perceptible and expressive. These old houses are built in a clear intention, and the new function shows the intention of the new. If the new can accommodate the old, in our view, it is a “representing” which transformation had done to the history of original architecture.
▼C19厂房原始照片,the existing factory
思考-原始建筑的空间意图?
Thinking – the space intention of the original building?
原始建筑是一栋高大的生产车间,有着极为明亮宽敞的空间感,这让我们意识到这个厂房的高度和气质实际在诉说着他自己的独特历史-即外部的世界在不断变化,而我是一个观察着这个世界的不变的场所,我的历史感造就了与现实世界的脱离,所以我在现实的外部存在着。从建筑物的角度,我们要处理一个“室内”的空间,而从空间意志的角度,我们必须要面对它“意义上的外部”这一现实。
Original building is a large production workshop, which has a very bright and capacious dimension, this let us realize that the plant was recounting his own unique history – a changing of the external world. It watched the constant world, with its history getting away from the real world, and existed in the external reality. From the building angle, we have to deal with an “indoor” space, and from the perspective of space, we have to face the reality of “external meaning”.
▼C19厂房改造后外部照片,exterior view after renovation
设计-如何创造“意义上的外部”
Design – how to create “Exterior of meaning”
为了实现这个“外部”的感受,首先我们就把空间的形式感知放在第一位,而功能放在第二位,即空间的形式将使用者关注点放到空间自己的意图诉说上,而不是功能诉求上。这样,我们希望呈现的老空间的意图就不会被新的功能的意图所淹没。
In order to realize the “external” feeling, at first we took the space perception in the first place, and function in the second place, which means the space will be focused on telling intentions, rather than on the functional demands. In this way, the intention of the old will not be drowned out by the intention of the new.
▼空间生成图解,diagram of space
建筑的功能要求被很明显的分成了两个同样重要的部分,一部分是针对外部活动使用,即举办发布会,展览等需要多数人聚集的活动空间,另一部分是作为展示中心自己的功能,即园区项目展示,洽谈,工作人员办公,会议等。这两部分从空间的使用要求上其实存在着对立,公共活动部分要求尽量的开敞,大空间,而展示洽谈办公则希望相对私密。这就形成了具体设计中最大的问题,即如何让两部分共存在一个连贯的空间中,但却互不干扰,同时,每个部分空间都能感受到这部分功能是整个厂房的核心空间,而不被硬性分割成两部分。
Building functional requirements were clearly divided into two equally important parts: one part is used for external activities (conference, exhibition and activity space), the other part is as a function of demonstration center (project demonstration, negotiations area, office staff, conferences, etc). The two parts are opposite in the use of space, the public activity part requires as far as possible open, big space,while negotiation area and office need to be private. It’s one of the biggest problems in the design: how to make the two parts together, but no mutual interference, at the same time, each part of the space can feel the two parts are cores of the space, not divided into two parts.
▼环形流线图解,diagram of circulation
通过对位老建筑上部的天窗和底部前后贯通的两个原始入口,首先我们在“壳”内植入了一个十字型,然后以这个十字形为基准生成了改造后的空间形式。从整体上看,这个植入的部分是一个有着一个中心盒子的连续步行系统。通过这个系统,人们可以从一层拾级而上到达二层,从二层再走到三层,从三层再回到一层,形成一个完全不重复的环形流线。而这个环形步行体系就体现出了作为展示中心的功能,即人们可以通过不同层面的环形浏览去体验原始建筑在不同高度所产生的不同空间变化。在这个环形体系上,分布着不同的功能。
First of all, after thinking about the roof and entrance, we implanted a cross in the “shell”, and then generate a modified form of space based on the cross. Overall, the implantation is part of a continuous walking system with a central box. Through this system, people can go from first floor to the second, and to the third, and from the third to the first floor, thus a completely non-repetitive loop was formed. The circular pedestrian system reflects the central function, in which people can experience the different height of space changes. Different functions are in this circular system.
▼中心剖面研究模型,central section study model
两部分主要的功能被垂直分区。一层为公共路演区,二三层为展示洽谈办公区。路演区为一个三层通高的中部空间,作为座位的大楼梯从天空上倾泻而下,上面正对着屋顶中部的天窗。这部分感受到新植入的空间包裹着原始的旧空间,成为了原始空间的“意义上的外部”。在楼梯对面可以看到一条环形的白色物体悬浮于厂房的中部。它与原始厂房的墙面完全脱开,边缘处用金属网衔接,空气在其缝隙中自由流通,夜晚到来,这个白色的异质物就像漂浮在老建筑的外壳里,同时它又是人们使用整个空间的线索和发动机。盒子上面有条形的开口隐约看到内部的景象,白色物体上下都露出原始厂房的墙体,在这里,感觉厂房作为一个整体,将植入的物体包裹起来,再次形成了“意义上的外部”。
The two main functions are vertically partitioned. The first floor is a public roadshow area, and the second and third floor show the negotiation office area. The roadshow area is a three-floor height space, and large stairs pour down from the middle of the roof. This part feels that the newly implanted space is encased in the original old space and becomes the “Exterior of meaning ” of the original space. On the other side of the stairs you can see a circular white object suspended in the middle of the plant. It separates with the old metope, edge connected with metal net, air flow freely in the gap. In the evening, the heterogeneity of white like floating in the old building’s shell, at the same time, it is the engine for people in the whole space.
一层公共路演区是一个三层通高的中部空间,the firstflooraccommodates a three-storeypublic roadshow area
▼休息区,sitting area
▼作为座位的大楼梯从天空上倾泻而下,large stairs pour down from the middle of the roof
▼屋顶中部的天窗,a huge skylight in the middle of the roof
▼中庭,atrium
二三层连续的空间被巨大暴露的原始厂房结构屋顶和中部的一个布满开口出风口的白色舱体所定义。在这个联系的空间中感受不到任何一层的感受,而是完全被原始厂房的屋顶和墙壁包裹,中间的舱体盒子暗示了我们在盒子的“外部”,同时通过盒子上的洞口我们看到下方路演区的开敞景象,我们又感到相对于下面的开敞,我们处在上面的一个盒子的“内部”。在连续步行体系上。这样的感受在反复交叠着,不断提醒着我们去思考这个空间存在的意图,思考工业的历史在老房子的空间中留下了如何的精神。
An opening bar on the box let see the scene of internal. White object let show the wall the original factory, here feel plant as a whole to wrap implanted object, and thus it became “Exterior of meaning “again. The two or three successive layers are defined by the large exposed original factory roof and the white cabin is set with air outlet. The continuous walking system constantly reminding us to think about the purpose of this space, and think about the history of industry in the space of the old factory.
▼二层展示洽谈办公区,the negotiation office area on the second floor
▼巨大的白色舱体定义出空间,the space is defined by a huge white “cabin”
▼细部,detailed view
▼从二层看向大楼梯,stair view from the second floor
连续的二三层空间,acontinuous space on the upper floors
▼三层洽谈区,meeting area on the third floor
顶层中庭视角,atrium view from the top floor
技术反思-如何实现改造的美学
Technical reflection – how to achieve the aesthetics of renovation?
1.设备:为了保持原始屋顶三角桁架的干净的结构美感不被走动的管线和机破坏,我们将空调的机械设备和管线等都集成在中间盒子中。
2.结构:由于老建筑自己的结构体系非常固定且脆弱,由于工期速度的要求,我们新植入的部分结构使用了钢结构。钢结构柱子与老墙体脱开1米,避免与老结构基础打架。新建楼板与老建筑墙体完全脱开,避免二次伤害以及对原建筑结构加固带来的高额费用。
3.材料:在空间中我们使用了一些折叠拉门,由于使用了聚碳酸酯板的轻质材料,这些拉门可以在举办大型活动的时候完全拉开,其模糊的表面特性增强了与老砖墙之间的疏离感。
4.混合现实技术:为了在改造项目中完全真实的模拟改造部分在原始空间中的真实感受,普罗建筑在国内率先使用了AR增强现实技术来模拟并指导空间改造的方案。通过AR技术的辅助,我们将设计方案在真实的项目厂房内进行投射,模拟真实的使用流线和场景,观察设计方案在真实的环境下所感受到的空间尺度与美学感受,从而反馈回电脑中进行再次的调整与论证。
▼交通空间,circulation
1. Equipment: in order to maintain the clean structure aesthetic of the original roof truss, make sure structure not damaged by the moving pipeline and machine, we integrate the mechanical equipment and pipeline of the air conditioner in the intermediate box.
2. Structure: due to the very fixed and fragile structure of the old building, due to the requirement of the speed of construction, the steel structure is used in the new part of the structure. Steel structure column and old wall to remove 1 meter, avoid to fight with the old structure foundation. The new floor slab and the old building wall are completely removed to avoid the secondary injury and the high cost of the original construction.
3. Material: we used some folding sliding door in the space, with the use of polycarbonate plate lightweight materials. When large-scale activities are held, the sliding door can be completely open. The surface properties of the fuzzy enhancement and the alienation between the old brick wall.
4. Mixed reality technology: in order to simulate transformation in a renovation project, and to meet true feelings in the original space, PROJECT took place in the use of the AR augmented reality technology to simulate the transformation plan and guide space. Through the AR technology, we will design scheme in real project, simulate the real use of lining, and looking for design scheme in the real environment of space scale and aesthetic feeling, thus feedback adjustment and demonstrates once again back to the computer.
▼原始屋顶三角桁架的简练结构被保留下来,the clean structure aesthetic of the original roof truss was maintained
启示Revelation
改造建筑本质上是在跟时间对话。空间的逻辑服务于与原始空间存在意志和意图的尊重与挖掘。新空间的诞生时刻始于诸如对内外部关系的充分思考,发展于使用与体验中的场所解读与认知,终于对材料与结构的感性建构。C19的改造或许成为我们改造设计上的一个转折点。
Renovation is essentially a conversation with time. The logic of space serves to respect and exploit the will and intention of the original space. The birth of new space begins with the full consideration of internal and external relations, the development of the use and experience of the site interpretation and cognition, finally the material and structure of the perceptual construction. The transformation of C19 may be a turning point in our design.
▼聚碳酸酯板的轻质材料带来现代的感受,the use of polycarbonate plate offers a contemporary touch to the old factory
▼模型,model
▼剖透视图,perspective section
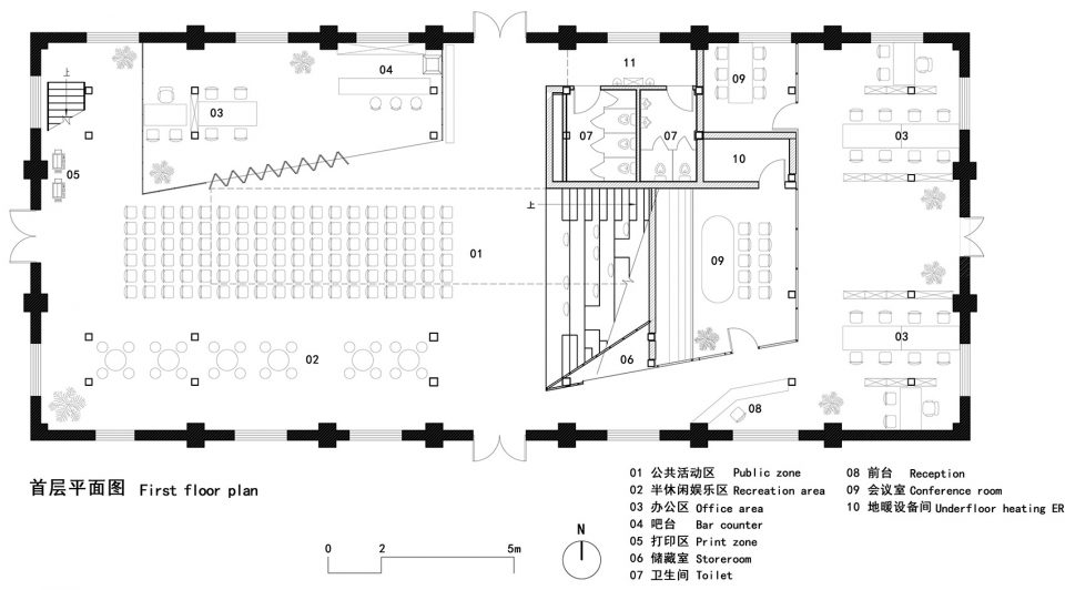
一层平面图,first floor plan
▼二层平面图,second floor plan
三层平面图,third floor plan
项目地点:北京市丰台区
项目性质:厂房改商业办公
设计周期:2017.12—2018.1
建造周期:2018.1—2018.3
设计单位:普罗建筑
主持设计师:常可,李汶翰,刘敏杰
设计团队:姜宏辉,张昊,赵建伟,林旺铭,冯攀遨
摄影:孙海霆
Location:Fengtai, Beijing, China
Function: Factory renovate into commercial office building
Design period: Dec 2017-Jan 2018
Construct period: Jan 2018-Mar 2018
Design Company: PROJECT
Leading architects: Chang Ke, Li Wenhan, Liu Minjie
Design group: Jiang Honghui, Zhang Hao, Zhao Jianwei, Lin Wangming, Feng Panao
Photograph: Sun Haiting
客服
消息
收藏
下载
最近


































