查看完整案例


收藏

下载

翻译
Il progetto della nuova sede della Scuola di Formazione Professionale Victory
a Vicenza nasce dal recupero di uno spazio industriale dismesso in stato
di abbandono. Situato alle porte di Vicenza e al centro di un asse stradale
strategico, il progetto ha riqualificato interamente l’area residenziale
circostante.
La scuola è cresciuta nell’arco di un anno di lavori, nello stretto dialogo tra
i progettisti e la Committenza. senza mai perdere di vista gli obbiettivi principali:
funzionalità, eleganza ed equilibrio.
Il centro sviluppa prevalentemente percorsi di istruzione che impegnano
la fascia dell’obbligo scolastico e in parte attività di formazione e aggiornamento
per adulti che operano o intendono entrare nei campi di attività specifici.
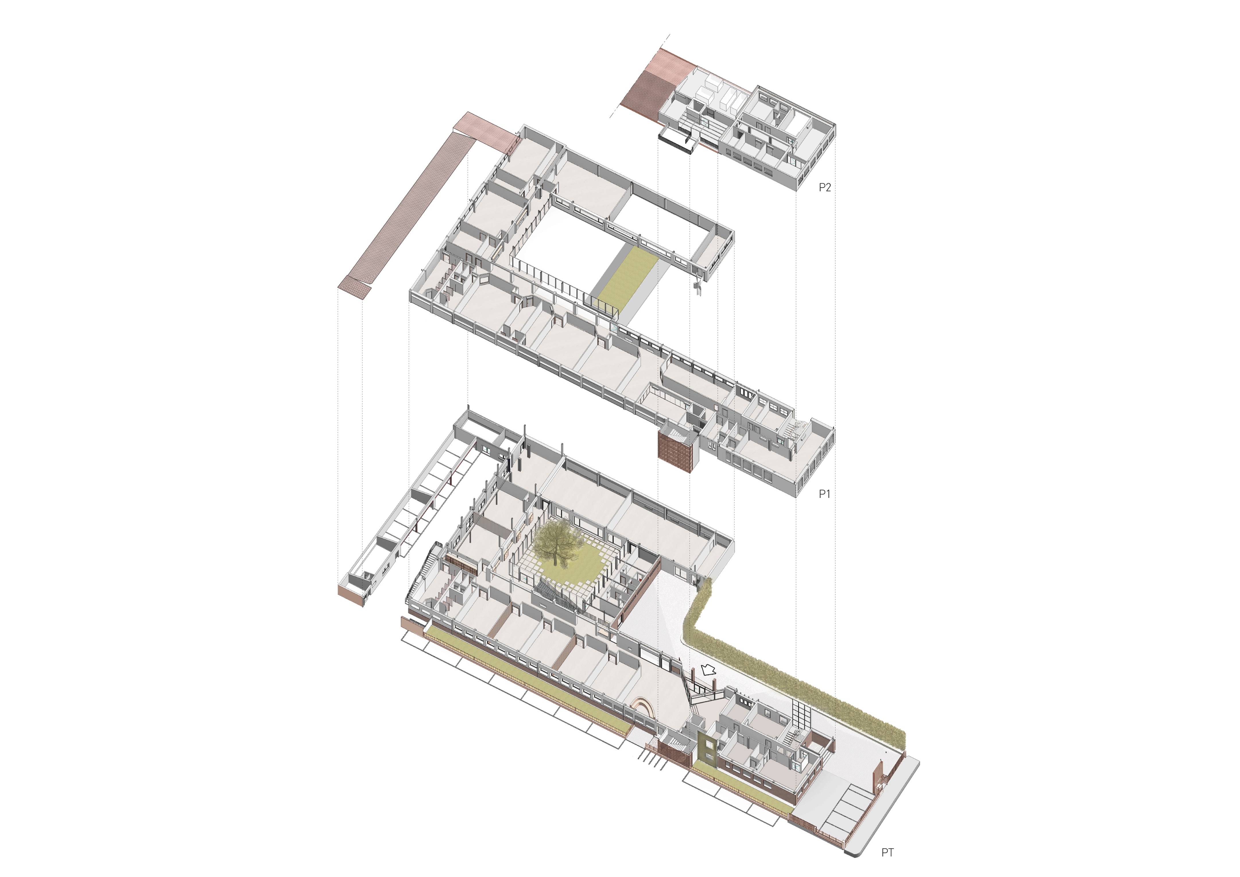
Il progetto ha previsto il riutilizzo funzionale dell'edificio esistente,
conservando la sagoma e la volumetria attuale, con un ampliamento nella corte
centrale.
Gli spazi interni sono stati svuotati quasi totalmente mantenendo struttura,
pareti e copertura e prevedendo l’adeguamento ai parametri strutturali
e sismici e la riqualificazione energetica complessiva ai fini della massima
riduzione dei consumi.
Al centro del progetto è stata realizzata una nuova struttura leggera di acciaio e
vetro per la circolazione tra gli spazi delle aule e i laboratori sui due piani.
Quello che prima era il parcheggio degli operai della fabbrica è stato trasformato
nello spazio intimo e raccolto di una corte verde con un ciliegio al centro,
accessibile dagli studenti per la ricreazione e gli eventi estivi.
Per chiudere la corte è stato aggiunto il corpo basso degli spogliatoi della palestra,
la cui copertura è stata coperta con un verde spontaneo di licheni visibile dalle
vetrate del primo piano, che muta le colorazioni a seconda delle stagioni.
L’edificio è stato interamente rivestito all’esterno da un cappotto isolante ignifugo
e da mattoni in laterizio faccia vista.
Un colore dal tono violaceo richiama elementi degli spazi esterni e interni
generando un fil rouge che termina (o nasce) nell’atrio centrale, definito da un gioco
di volumi rivestiti in resina che si fondono con la pavimentazione.
客服
消息
收藏
下载
最近

















