查看完整案例


收藏

下载

翻译
BIT Sports Center in Beijing
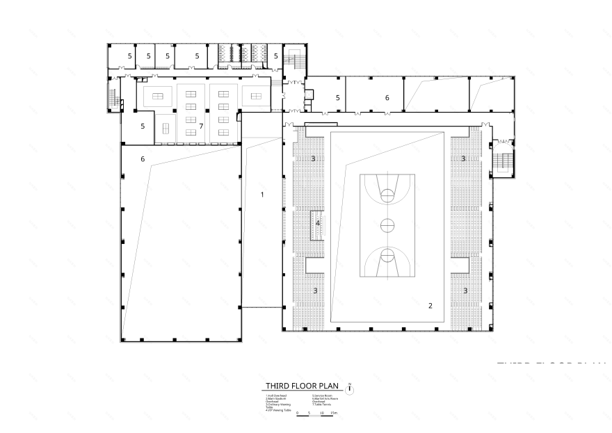
Located in Liangxiang, the satellite city of Beijing, the BIT Sports Center, along with the BIT Stadium, frame an entrance to the new BIT campus. The sports center adds about 15,692 square meters athletic space to the school, includes a 3000 seats basketball stadium, a 10 lanes swimming pool, a gymnasium, a martial art space, and rooms for boxing, taekwondo, table tennis, etc.
BIT is a university focused on military science. The project continues Leonardo Da Vinci’s dialogue on the interdisciplinary discourse between science, architecture and art. After researching on related art and history of material science, the project draws inspiration from Da Vinci’s flying machine, as well as the geometry of trajectory parabola widely used in military science. Accordingly, two sets of parametric surfaces are created to suspend in the air as the roof for the building. The topological volume framed by the two curve layers are constructed through space frame structurally and covered by standing seam roofing from above and aluminum curtain wall system from below. Aluminum are used over roof, cantilever and facade to give a uniform tone to the building and to response to the industrial aesthetic in military science.
As the Renaissance man in Da Vinci’s time understood intellects as polymaths excelled both in body and mind, the BIT sports center aims for a “multidimensional open campus” that builds students’ body and mind simultaneously and meanwhile, encourages intercollegiate dialogues among students. By doing that, the architecture creates spatial permeability in both urban and architecture scales, through plan and section. The basketball hall, located at the south east corner of the building, merges the play field with major artery and street life, while the swimming pool at the west is linked to campus central square. Besides urban scale connections, as the seating for basketball hall is elevated for one floor, the programs beneath it are all interconnected and also well connected to the exterior. A horizontal physical and visual permeability, from street to campus, is established at the ground floor. An enclosed entrance promenade, cut between swimming pool and basketball hall, connected north and south campuses together. In the section, the top of basketball seating at the third floor has a large window overlooking the entrance hall and the swimming pool across the hall, as well as the campus beyond the swimming pool. At second, third and fourth floors, the programs behind the swimming pool—taekwondo, table tennis and testing center—all have different apertures into the swimming pool and also share the skylight from the swimming. With transparent interface, vertical permeability is achieved by nesting programs within one and another in section.
Client: Beijing Institute of Technology
Location: Beijing, China
Category: Sports Center
Architecture and Interior Design: Atelier Alter Architects PLLC
Architect of Record: China IPPR International Engineering Co., Ltd.
Design Consultant: Beijing Hanhua Architectural Design Co.Ltd
Design Principal: Yingfan Zhang, Xiaojun Bu
Architecture Design Team: Zhenwei Li, Kai Qin, Ping Jiang, Wei Huang, Tongwei Liu, Dehu Du, Jiahe Zhang, Ran Yan, Lairong Zheng, Jiaming Mei, Lidong Song, Xiaoxiao Zhao, Jingshi Zhang, Bida Wei, Wei Xiong, Weidi Chen, Xiaoqing Guo, Xueyun Da, Bo Huang, Leilei Ma, Hui Cao
Structure: China IPPR International Engineering Co., Ltd.
MEP: China IPPR International Engineering Co., Ltd.
Interior Design: Atelier Alter Architects
Landscape Architect: China IPPR International Engineering Co., Ltd.
Curtain Wall Consultant: PAG Façade Systems Co., Limited
Lighting Consultant: Jingyunyoujin Lighting Technology (Beijing) Co., Ltd,Zhongchen Yuanzhan (Beijing) Lighting Design Co., Ltd,
Acoustic Consultant: China IPPR International Engineering Co., Ltd.
Construction Management: Beijing Zhongjing Hengji Engineering Management Co., Ltd
General Contractor: Beijing Construction Engineering Group CO. Ltd (BCEG)
Interior Contractor: Beijing Senghongli Engineering Co., Ltd.
Curtain Wall Contractor: Shandong Sky Screen Group Corporation
Manufacturers: Hoofovens Architecture System (Guangzhou) Co., Ltd., Taitong Construction Co., Ltd ., Beijing Borongsheng Industry and Trade Co., Ltd.
Cost: $23,449,011
Area: 168,907.3 SF 15692 sqm
Project Completion: 07.2019
Photography: Weiqi Jin, Highlite Images, Atelier Alter Architects
Images: Courtesy of Atelier Alter Architects
客服
消息
收藏
下载
最近





























































































