查看完整案例


收藏

下载

翻译
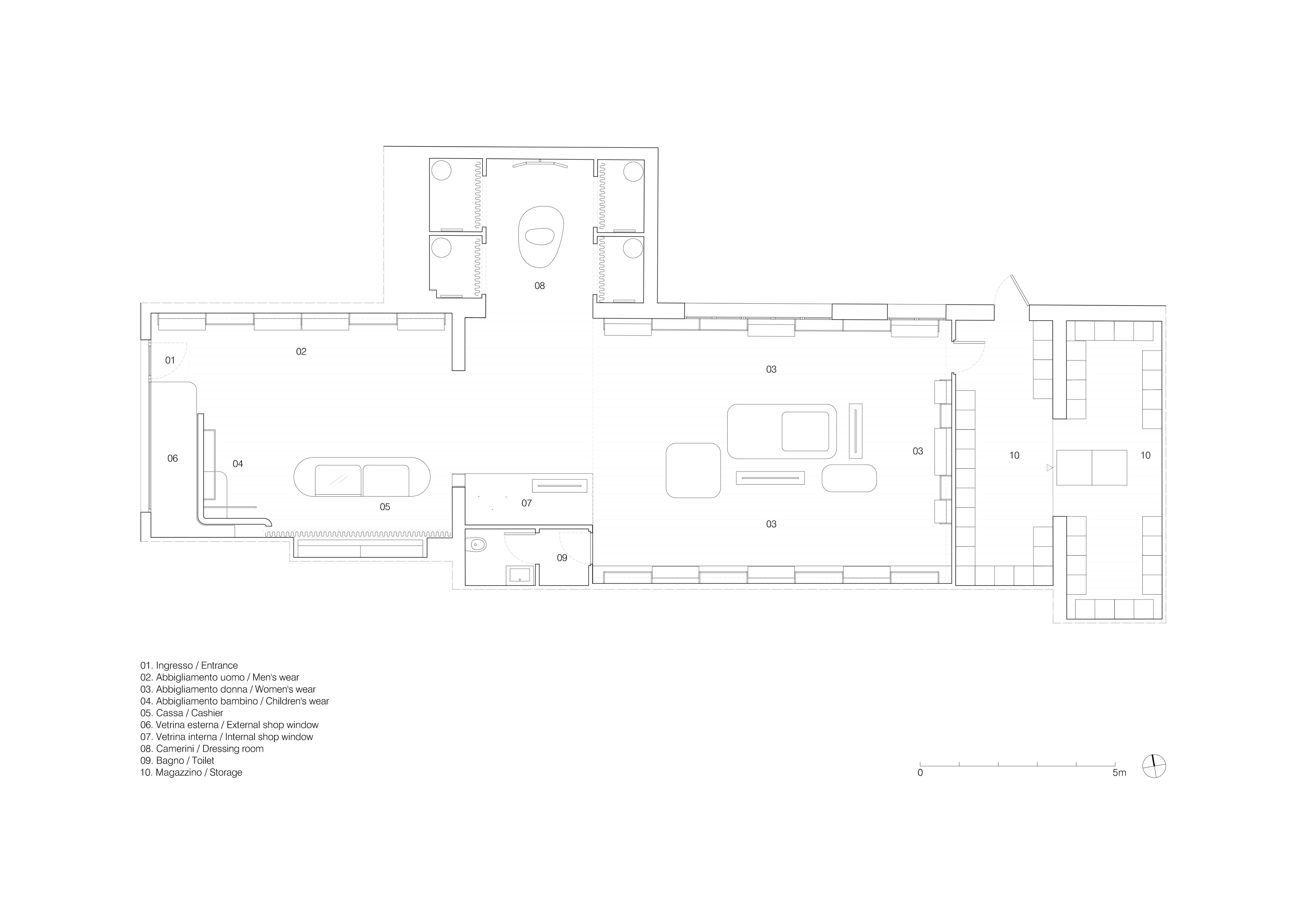
Il progetto del nuovo Calibro ShopStore nasce dalla volontà di riappropriarsi di un edificio artigianale dismesso al fine di donargli nuova vita e continuità storica. Una piccola vetrina esterna, chiusa sul retro, nasconde gli ampi interni che si svelano istantaneamente appena varcata la soglia d’ingresso in un susseguirsi di ambienti caratterizzati da differenti spazialità che si snodano attorno alle quattro “isole distributive” in doghe di di rovere, in un continuo dialogo tra le parti.
The project intention for theCalibro Shop Store is to retain the integrity of the historic edifice, whilst seamlessly integrating the building’s story into the new design. A small shop window conceals the volume of internal space inside. This private entrance gives way to a large internal area, each space effortlessly flowing into the next. All are centred around four solid Oak islands,the concept is to create an easy ongoing dialogue between each part.
客服
消息
收藏
下载
最近




















