查看完整案例


收藏

下载

翻译
Architects:SML Arquitectos
Area :256224 ft²
Year :2020
Photographs :Cristóbal Palma
Lead Architects :Franco Somigli, Sebastián Mundi, Nicolás Gallo
Technical Inspection : Victor Villarroel
Structural Engineering : Vladimir Urzua
City : Quilicura
Country : Chile
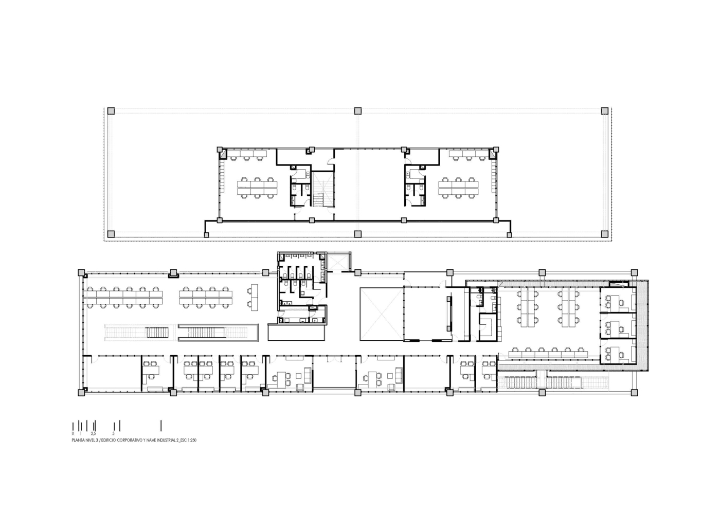
The project consisted of designing a factory to manufacture products for the mining industry with production bays and a corporate building following three main guidelines:
1. The design should allow for modifications and expansions.2. The chosen construction system should be a rapid and efficient construction system.3. The project should reflect the company’s standards and principles and evoke the mining sector in the choice of materials given that this is a corporate building.
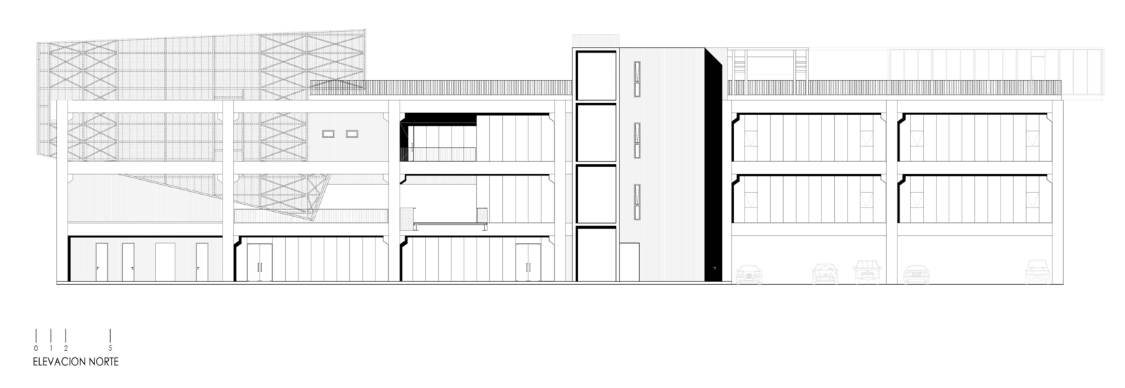
The answer to these three guidelines was a complex that consists of three large production bays behind a main four-story building conceived of as a regular grid using a structure of prefabricated concrete columns and beams. The grid serves as the base of the various spaces, which are laid out within this structural system and organized, though with a certain level of tension, through this Cartesian order.
In order to respect the geometric plasticity of the prefabricated system, rather than covering it, we left the main structural principles of the system exposed along with the columns, beams, scaffolding, and rigid concrete knots. The intermediate spaces produced between the various parts of the layout and the structure give rise to multiple spaces. Some of these are exterior terraces and others are double- and triple-height open spaces.
These same interstices allow for the possibility of future expansion, which will always be regulated within the concrete grid, maintaining the project’s original logic. Glass, wood, Corten steel, and copper are the main materials used, and they contrast with the nudity of the concrete structure, offering transparent and cozy spaces for those who work here and evoking the raw materials used in the mining sector. The building thus tells the company’s story in a certain sense.
▼项目更多图片
客服
消息
收藏
下载
最近

























